Kiadó lakás, H510433
Budapest VI. kerület, Belső VI., Andrássy út

260 000 Ft

680 €

  • 65m²
  • 2 szoba
  • 2. emelet

Andrássy úton 2 szobás, külön bejárattal!

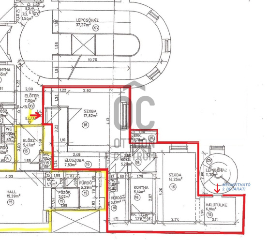
VI. district Andrássy út, next to Nagymező utca, on the 2nd floor of a wonderful building with elevator, a 65 sqm furnished, good condition apartment is for rent! The entrance opens directly from the staircase, rooms: 2 rooms with separate entrances, kitchen, bathroom, toilet in a separate room, hall, balcony. The windows of the apartment and the balcony overlook the quiet inner courtyard. There is no corridor in front of the windows, so there is no walking in front of them. Heating with gas convector, common cost 21,000 HUF. Small animals are allowed, smoking is only possible on the balcony. Deposit 2 months' rent.
Excellent public transport options: tram 4,6, metro M1 (Opera), bus 105, 210, trolleybus 70, 78 in the immediate vicinity of the apartment.
The distribution of the rooms is particularly advantageous for tenants who would like to live in two well-separated rooms.
Excellent location, great opportunity, I highly recommend it!

Regisztrációs szám

H510433

Az ingatlan adatai

Értékesités
kiadó
Jogi státusz
használt
Jelleg
lakás
Építési mód
tégla
Méret
65 m²
Bruttó méret
65 m²
Terasz / erkély mérete
1,7 m²
Fűtés
gázkonvektor
Belmagasság
390 cm
Lakáson belüli szintszám
1
Tájolás
Dél-kelet
Lépcsőház típusa
zárt lépcsőház
Állapot
Átlagos
Homlokzat állapota
Kiváló
Lépcsőház állapota
Kiváló
Építés éve
1874
Fürdőszobák száma
1
Fekvés
udvari
Bútorozott
igen
Közös költség
21000
Víz
Van
Gáz
Van
Villany
Van
Csatorna
Van
Lift
van

Helyiségek

hálószoba
17.82 m²
hálószoba
14.25 m²
fürdőszoba
5.13 m²
konyha-étkező
5.14 m²
wc
1 m²
előszoba
7.83 m²
erkély
1.78 m²
közlekedő
5.28 m²
kamra
1.79 m²
Ruczek Krisztina
Ruczek Krisztina

Hitelszakértő

Irodánk kínálatából - VI. kerület - Ó utca

kiadó házrész

Index image
28

eladó lakás

Index image
39

eladó lakás

Index image
12

eladó családi ház

Index image
Elérhető Otthon Start hitellel
19

eladó családi ház

Index image
Elérhető Otthon Start hitellel
32

eladó lakás

Index image
Elérhető Otthon Start hitellel
24