78 900 000 Ft
206 000 €
- 49m²
- 2 szoba
- 2. emelet
Jó állapotú 2 szobás lakás szép belső udvar
VI. kerület Diplomatanegyede és Terézváros határán a Szív utcában egy 1950 körül épült 5 emeletes, liftes, szépen karban tartott, téglaház II. emeletén eladó egy a tul.lap szerint 49 de a valóságban 52 m2-es, 2 szobássá alakított amerikai-konyhás, jó állapotú, dny-i tájolású, utcára néző, kombi gáz cirkó fűtésű lakás.
A lakás 2010-ben esett át egy komplett felújításon, amikor kialakították a jelenlegi hálószobát és az amerikaikonyhás nappalit. A villanyvezetékek és a lakásban a vízvezetékek is cserélve lettek a fürdőszoba teljes burkolat cseréjével együtt. A külső és belső nyilászárók megmaradtak az eredetiek de fel lettek újítva.
A lakás közös költsége korlátlan vízfogyasztás mellett és a belső felújítás költségeivel megnövelt 35 000 forint.
A ház belső homlokzata felújításra került az elmúlt évek során és szép zöld udvar került kialakításra. A lakóközösség kedves és csendes. A ház anyagi helyzete stabil, képviselete jól végzi a feladatait.
A lakás megközelíthetősége tömegközlekedéssel ideális a 72-es troli Szinyei-Merse utcai és az M1-es kisföldalatti továbbá a 105-ös, 210-es, 210B és az éjszakai 979-es buszok KLodály köröndi megállóinak közelségének köszönhetően.
A zöld területek és parkok pedig lehetőséget biztosítanak a kikapcsolódásra és a szabadidős tevékenységekre. Ez a lakás nem csupán egy ingatlan, hanem egy lehetőség arra, hogy otthonra találjon egy olyan környezetben, amely támogatja az aktív, fiatalos életstílust.
Ne hagyja ki ezt a páratlan lehetőséget, hogy egy frissen a piacra került, jól alakítható otthonra tegyen szert Pest egyik legdinamikusabban fejlődő részén!
Célunk, hogy ügyfeleink számára a legmagasabb színvonalú, személyre szabott lakáshitel-megoldásokat nyújtsuk, maximális kényelmet és biztonságot garantálva. Bankfüggetlen hitelcentrumunk szakértői az ország összes bankjának és hitelintézetének ajánlatait versenyeztetik, díjmentesen, hogy Ön a legkedvezőbb feltételekkel juthasson lakáshitelhez. Tapasztalt munkatársaink az Ön igényeihez igazodva, előre egyeztetett időpontban, akár munkaidőn túl is rendelkezésére állnak, hogy minden kérdésére megnyugtató választ adjanak és segítsék Önt a döntésben.
A lakás 2010-ben esett át egy komplett felújításon, amikor kialakították a jelenlegi hálószobát és az amerikaikonyhás nappalit. A villanyvezetékek és a lakásban a vízvezetékek is cserélve lettek a fürdőszoba teljes burkolat cseréjével együtt. A külső és belső nyilászárók megmaradtak az eredetiek de fel lettek újítva.
A lakás közös költsége korlátlan vízfogyasztás mellett és a belső felújítás költségeivel megnövelt 35 000 forint.
A ház belső homlokzata felújításra került az elmúlt évek során és szép zöld udvar került kialakításra. A lakóközösség kedves és csendes. A ház anyagi helyzete stabil, képviselete jól végzi a feladatait.
A lakás megközelíthetősége tömegközlekedéssel ideális a 72-es troli Szinyei-Merse utcai és az M1-es kisföldalatti továbbá a 105-ös, 210-es, 210B és az éjszakai 979-es buszok KLodály köröndi megállóinak közelségének köszönhetően.
A zöld területek és parkok pedig lehetőséget biztosítanak a kikapcsolódásra és a szabadidős tevékenységekre. Ez a lakás nem csupán egy ingatlan, hanem egy lehetőség arra, hogy otthonra találjon egy olyan környezetben, amely támogatja az aktív, fiatalos életstílust.
Ne hagyja ki ezt a páratlan lehetőséget, hogy egy frissen a piacra került, jól alakítható otthonra tegyen szert Pest egyik legdinamikusabban fejlődő részén!
Célunk, hogy ügyfeleink számára a legmagasabb színvonalú, személyre szabott lakáshitel-megoldásokat nyújtsuk, maximális kényelmet és biztonságot garantálva. Bankfüggetlen hitelcentrumunk szakértői az ország összes bankjának és hitelintézetének ajánlatait versenyeztetik, díjmentesen, hogy Ön a legkedvezőbb feltételekkel juthasson lakáshitelhez. Tapasztalt munkatársaink az Ön igényeihez igazodva, előre egyeztetett időpontban, akár munkaidőn túl is rendelkezésére állnak, hogy minden kérdésére megnyugtató választ adjanak és segítsék Önt a döntésben.
Regisztrációs szám
H510286
Az ingatlan adatai
Értékesités
eladó
Jogi státusz
használt
Jelleg
lakás
Építési mód
tégla
Méret
49 m²
Bruttó méret
52 m²
Fűtés
Gáz cirkó
Belmagasság
350 cm
Tájolás
Dél-nyugat
Lépcsőház típusa
függőfolyosó
Állapot
Jó
Homlokzat állapota
Jó
Lépcsőház állapota
Jó
Környék
jó közlekedés, központi
Építés éve
1950
Fürdőszobák száma
1
Fekvés
utcai
Közös költség
3
Víz
Van
Gáz
Van
Villany
Van
Csatorna
Van
Lift
van
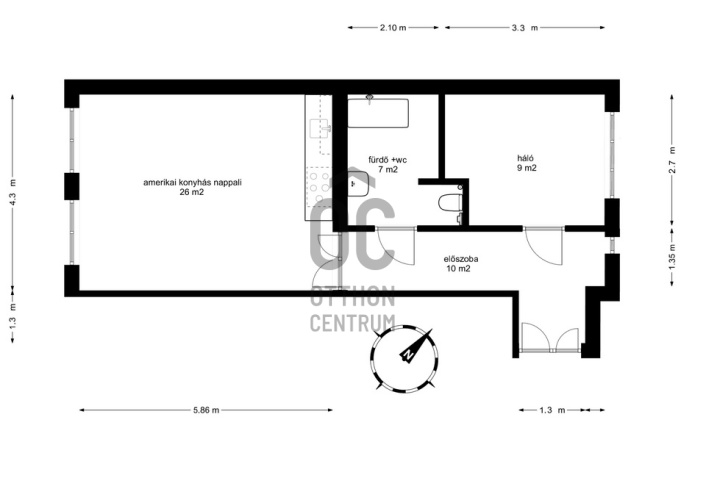
Helyiségek
nappali-konyha
26 m²
hálószoba
9 m²
fürdőszoba-wc
7 m²
közlekedő
10 m²
Pongó Miklós
Hitelszakértő