190 000 000 Ft
494 000 €
- 200m²
- 7 szoba
Tágas, kényelmes családi otthon Halásztelek legszebb utcájában – parkosított kerttel és remek közlekedéssel!
Eladó Halásztelek egyik legszebb, legcsendesebb utcájában egy kiváló állapotú, 2 szintes, tágas családi ház, amely 840 m²-es, gyönyörűen parkosított telken fekszik.
Ez az otthon a kényelemről, a térszeretetről és a nyugodt családi életről szól – ide tényleg csak beköltözni kell!
A körbejárható ház szuterénnel (garázs, tárolók) és beépített tetőtérrel rendelkezik, így minden családtag megtalálhatja benne a saját életterét.
A nappali központi éke a cserépkályha, ami meleg, otthonos hangulatot teremt, míg a konyhából és nappaliból a nagy hátsó teraszra léphetünk, ahol kellemes pihenőkert és automata öntözésű, fúrt kútról táplált kert vár.
Az emelet világos, tágas – három hálószobával, gardróbbal, két fürdőszobával, két terasszal és egy hangulatos pihenősarokkal.
A 10 cm-es homlokzati szigetelés, a klíma és a modern nyílászárók gondoskodnak a komfortos mindennapokról.
A kert, amit imádni fog:
Gondozott zöld udvar, kerti sütögető, fásszín, háztáji tároló és teljes körű intimitást nyújtó növénysáv – a nyugalom igazi szigete!
KIVÁLÓ KÖZLEKEDÉS ÉS INFRASTRUKTÚRA
Budapest 20–25 perc alatt elérhető az M0-ás autópályán
Buszmegálló 3 perc sétára, közvetlen járatok a fővárosba és Szigetszentmiklósra
Iskola, óvoda, orvosi rendelő, gyógyszertár, boltok (Aldi, Lidl, Spar) 5 percen belül
Főbb jellemzők:
2 generáció számára is alkalmas
2 szint külön gáz és villanyórával felszerelt
2 szint + szuterén + beépített tetőtér
840 m² parkosított telek
Cserépkályha, több terasz, klíma
Automata öntözőrendszer fúrt kútról
10 cm homlokzati szigetelés
Rendezett, zöldövezeti környezet, barátságos szomszédság
Ez az ingatlan nem csak egy ház – hanem egy valódi otthon, ahol a tágas terek, a zöld környezet és a nyugalom tökéletes harmóniában találkoznak.
Ne maradjon le róla – hívjon most, és nézzük meg együtt ezt a családok számára tökéletes, szerethető otthont Halásztelek szívében!
Eladó Halásztelek egyik legszebb, legcsendesebb utcájában egy kiváló állapotú, 2 szintes, tágas családi ház, amely 840 m²-es, gyönyörűen parkosított telken fekszik.
Ez az otthon a kényelemről, a térszeretetről és a nyugodt családi életről szól – ide tényleg csak beköltözni kell!
A körbejárható ház szuterénnel (garázs, tárolók) és beépített tetőtérrel rendelkezik, így minden családtag megtalálhatja benne a saját életterét.
A nappali központi éke a cserépkályha, ami meleg, otthonos hangulatot teremt, míg a konyhából és nappaliból a nagy hátsó teraszra léphetünk, ahol kellemes pihenőkert és automata öntözésű, fúrt kútról táplált kert vár.
Az emelet világos, tágas – három hálószobával, gardróbbal, két fürdőszobával, két terasszal és egy hangulatos pihenősarokkal.
A 10 cm-es homlokzati szigetelés, a klíma és a modern nyílászárók gondoskodnak a komfortos mindennapokról.
A kert, amit imádni fog:
Gondozott zöld udvar, kerti sütögető, fásszín, háztáji tároló és teljes körű intimitást nyújtó növénysáv – a nyugalom igazi szigete!
KIVÁLÓ KÖZLEKEDÉS ÉS INFRASTRUKTÚRA
Budapest 20–25 perc alatt elérhető az M0-ás autópályán
Buszmegálló 3 perc sétára, közvetlen járatok a fővárosba és Szigetszentmiklósra
Iskola, óvoda, orvosi rendelő, gyógyszertár, boltok (Aldi, Lidl, Spar) 5 percen belül
Főbb jellemzők:
2 generáció számára is alkalmas
2 szint külön gáz és villanyórával felszerelt
2 szint + szuterén + beépített tetőtér
840 m² parkosított telek
Cserépkályha, több terasz, klíma
Automata öntözőrendszer fúrt kútról
10 cm homlokzati szigetelés
Rendezett, zöldövezeti környezet, barátságos szomszédság
Ez az ingatlan nem csak egy ház – hanem egy valódi otthon, ahol a tágas terek, a zöld környezet és a nyugalom tökéletes harmóniában találkoznak.
Ne maradjon le róla – hívjon most, és nézzük meg együtt ezt a családok számára tökéletes, szerethető otthont Halásztelek szívében!
Regisztrációs szám
H509830
Az ingatlan adatai
Értékesités
eladó
Jogi státusz
használt
Jelleg
ház
Építési mód
tégla
Méret
200 m²
Bruttó méret
262 m²
Telek méret
840 m²
Fűtés
Gáz cirkó
Belmagasság
275 cm
Lakáson belüli szintszám
2
Tájolás
Dél-nyugat
Állapot
Jó
Homlokzat állapota
Jó
Pince
Önálló
Környék
csendes, zöld
Építés éve
2000
Fürdőszobák száma
2
Garázs
Benne van az árban
Garázs férőhely
1
Víz
Van
Gáz
Van
Villany
Van
Csatorna
Van
Többgenerációs
igen
Tároló
Önálló
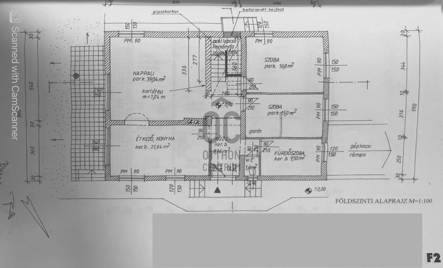
Helyiségek
előszoba
8.36 m²
wc
1.6 m²
fürdőszoba
9.5 m²
konyha-étkező
21.64 m²
nappali
39.04 m²
szoba
16.8 m²
szoba
15 m²
terasz
40 m²
lépcsőház
6.84 m²
közlekedő
28.82 m²
fürdőszoba-wc
5.43 m²
gardrób
8.15 m²
szoba
12.89 m²
szoba
17 m²
szoba
10.16 m²
terasz
21.3 m²
terasz
14 m²
garázs
20 m²
tároló
42 m²
Joó Krisztina
Hitelszakértő