data_sheet.details.realestate.section.main.otthonstart_flag.label
For sale new construction semi-detached house,
U0049199
Ráckeve
108,000,000 Ft
302,000 €
- 126m²
- 4 Rooms
Újépítésű ikerház Hatalmas telekkel a duna mellett – Ráckeve, II-es lakás
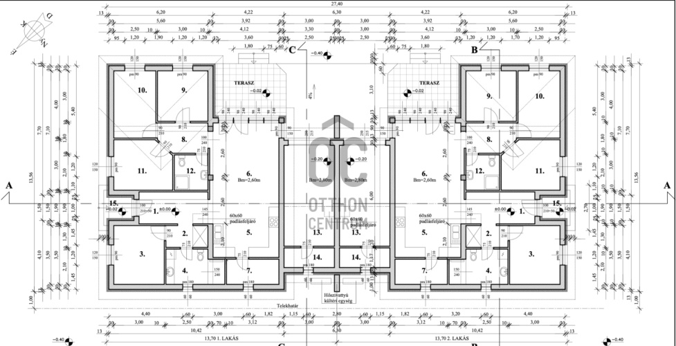
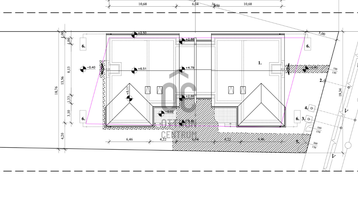
Ráckeve kedvelt, újépítésű környékén, eladó egy 126 m²-es, földszintes, 4 szobás ikerházi lakás. Az ingatlan a legmodernebb energetikai elvárásoknak megfelelően épül, a II-es lakáshoz egyedülálló módon kb. 2000 m²-es saját telekrész és garázs tartozik. A hatalmas terület méretéből adódóan kiválóan alkalmas gazdálkodásra, saját gyümölcsös vagy konyhakert kialakítására, de akár műhely, nagy méretű tároló vagy szabadidős sportpálya (pl. teniszpálya) elhelyezésére is tökéletes választás.
A 126 m²-es hasznos alapterületen egy tágas, amerikai konyhás nappali, 4 különnyíló hálószoba, 2 fürdőszoba, kamra és egy kényelmes, 18 m²-es garázs kapott helyet. A nappaliból közvetlen kijárás nyílik a 12,9 m²-es zöldre néző teraszra. Az ingatlan Ráckeve egyik legkeresettebb részén található. Duna-part mindössze 100 méterre, tökéletes esti sétákhoz vagy horgászathoz. HÉV állomás, buszmegálló és a Tesco is kényelmes 5 perces sétával elérhető. A környék csendes, újépítésű házakkal körbevett aszfaltozott utca. 3 méter széles közös használatú út a garázsig. A két ingatlan igényesen, teljesen elkerítetten kerül átadásra, a II-es lakás a garázs vonalában plusz egy kapuval szeparált.
- Szigetelés: 15 cm-es grafitos homlokzati szigetelés a minimális rezsiköltségért.
- Nyílászárók: 7 légkamrás, dupla üvegezésű ablakok, melyek elektromos redőnyök fogadására elő vannak készítve.
- Fűtés/Hűtés: Modern hőszivattyús rendszer padlófűtéssel, házanként 1 db inverteres klíma (további klímakiállások minden szobában biztosítva).
- H tarifas villanyórák, 3X32 amper
- Biztonság: Kiépített riasztórendszer-előkészítés, elektromos nagykapu és elektromos garázskapu.
A belső burkolatok még választhatóak, így saját ízlésére formálhatja új otthonát!
- Hidegburkolatok: 8.000 Ft/m²-ig
- Laminált padló: 6.000 Ft/m²-ig
A II-es lakás ára: 108.000.000 Ft (kb. 2000 m² terület tartozik hozzá)
Az I-es lakás ára: 99.000.000 Ft ( 360 m² területtel)
Finanszírozás: Az ingatlan megvásárlásához legalább 25-30% önerő szükséges. Hiteltanácsadásban és ügyintézésben irodánk teljes körű segítséget nyújt.
Ne maradjon le róla! A kivitelezés minőségi, a helyszín pedig garancia az értékállóságra.
A 126 m²-es hasznos alapterületen egy tágas, amerikai konyhás nappali, 4 különnyíló hálószoba, 2 fürdőszoba, kamra és egy kényelmes, 18 m²-es garázs kapott helyet. A nappaliból közvetlen kijárás nyílik a 12,9 m²-es zöldre néző teraszra. Az ingatlan Ráckeve egyik legkeresettebb részén található. Duna-part mindössze 100 méterre, tökéletes esti sétákhoz vagy horgászathoz. HÉV állomás, buszmegálló és a Tesco is kényelmes 5 perces sétával elérhető. A környék csendes, újépítésű házakkal körbevett aszfaltozott utca. 3 méter széles közös használatú út a garázsig. A két ingatlan igényesen, teljesen elkerítetten kerül átadásra, a II-es lakás a garázs vonalában plusz egy kapuval szeparált.
- Szigetelés: 15 cm-es grafitos homlokzati szigetelés a minimális rezsiköltségért.
- Nyílászárók: 7 légkamrás, dupla üvegezésű ablakok, melyek elektromos redőnyök fogadására elő vannak készítve.
- Fűtés/Hűtés: Modern hőszivattyús rendszer padlófűtéssel, házanként 1 db inverteres klíma (további klímakiállások minden szobában biztosítva).
- H tarifas villanyórák, 3X32 amper
- Biztonság: Kiépített riasztórendszer-előkészítés, elektromos nagykapu és elektromos garázskapu.
A belső burkolatok még választhatóak, így saját ízlésére formálhatja új otthonát!
- Hidegburkolatok: 8.000 Ft/m²-ig
- Laminált padló: 6.000 Ft/m²-ig
A II-es lakás ára: 108.000.000 Ft (kb. 2000 m² terület tartozik hozzá)
Az I-es lakás ára: 99.000.000 Ft ( 360 m² területtel)
Finanszírozás: Az ingatlan megvásárlásához legalább 25-30% önerő szükséges. Hiteltanácsadásban és ügyintézésben irodánk teljes körű segítséget nyújt.
Ne maradjon le róla! A kivitelezés minőségi, a helyszín pedig garancia az értékállóságra.
Registration Number
U0049199
Property Details
Sales
for sale
Legal Status
new
Character
house
Construction Method
brick
Net Size
126 m²
Gross Size
156 m²
Plot Size
1,955 m²
Size of Terrace / Balcony
12.9 m²
Garden Size
1,955 m²
Heating
heat pump
Ceiling Height
265 cm
Orientation
South-East
View
Green view
Condition
Excellent
Condition of Facade
Excellent
Neighborhood
quiet
Year of Construction
2026
Number of Bathrooms
2
Condominium Garden
yes
Garage
Included in the price
Garage Spaces
1
Water
Available
Gas
On the street
Electricity
Available
Sewer
Available
Storage
Independent
Distance to Waterfront
200 meters
Rooms
other room
7.79 m²
entryway
3.25 m²
room
10.5 m²
bathroom
6.75 m²
open-plan kitchen and dining room
13.25 m²
living room
17.84 m²
pantry
4.68 m²
corridor
5 m²
room
10 m²
room
10 m²
room
9 m²
bathroom
4.2 m²
garage
18 m²
boiler room
3.5 m²
entryway
1.86 m²
terrace
12.9 m²
Joó Krisztina
Credit Expert