105 000 000 Ft
272 000 €
- 73m²
- 3 szoba
- 2. emelet
Étkező+ konyha+ nappali + 2 külön nyíló szobás, jó állapotú panellakás eladó Rómaifürdőn!
Új tulajdonosát keresi a III. kerületben, Rómaifürdőn, a Pók utcai lakótelepen egy 73 m2-es, nappali + 2 külön nyíló szobás, világos, jó állapotú panellakás, karbantartott társasházban. Ha zöld és csendes, jó infrastruktúrával rendelkező, nagyon népszerű környéken szeretné megtalálni új otthonát, ezt feltétlenül nézze meg!
KÖRNYÉK és KÖZLEKEDÉS:
- Budapest III. kerülete, Rómaifürdő, Pók utcai lakótelep
- Kiváló infrastruktúrával és közlekedéssel rendelkező, nagyon szerethető környék.
- A lakástól néhány perce elérhető minden, ami a hétköznapokhoz szükséges.
- A 106, 134, 34-es buszok megállója 8 perc, a H5-ös hév 9 perces sétatávolság.
- 10 perces körön belül bölcsőde, óvoda és iskola, orvosi rendelő, gyógyszertár is rendelkezésre áll.
- A bevásárlást a közelben található Auchan, Príma, Spar, Lidl és Aldi biztosítja.
- A Csillag Center Bevásárlóközpont 15 perc gyalog.
- A Római part Budapest egyik legszebb része, ami pár perces sétával elérhető.
TÁRSASHÁZ:
- 1990-es évek elején épült, 4 szintes panel épület.
- Műszakilag rendszeresen karbantartott, gondozott társasház.
- Lépcsőháza tiszta és rendezett.
- Lakóközössége kulturált, csendes, vegyes korosztály.
LAKÁS:
- Második emeleti, 73 m2-es, 3 szobás, világos és tágas terekkel rendelkező ingatlan.
- Műszakilag és esztétikailag is jó állapotú lakás
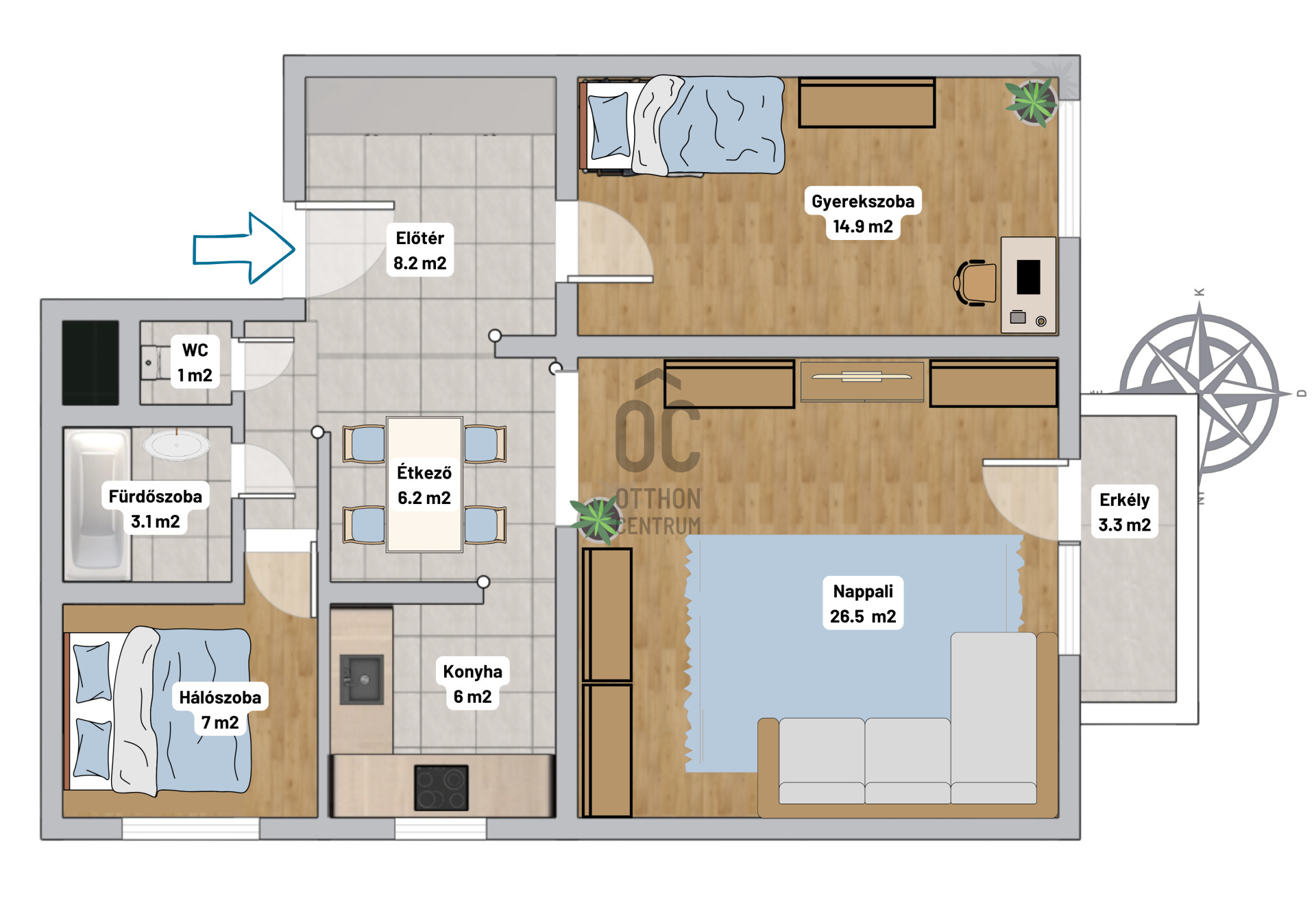
- Elosztása: előszoba-közlekedő, konyha+étkező, nappali, 2 szoba, fürdőszoba, WC.
- A nappali tájolása déli, a lakás világos és logikusan bútorozható terekkel rendelkezik.
- A szobák mindkét oldalon fákra és zöldre néznek, nincs közvetlen szembe szomszéd.
- A lakásban több nagy méretű beépített szekrény segíti a helykihasználást és tárolást.
- A konyha gépiesített, beépített bútorokkal ellátott
- A szobák laminált parkettával, a közlekedő, konyha, fürdőszoba járólappal burkolt.
- Fűtése távfűtés egyedi mérés nélkül, a hűtést klíma biztosítja.
- Közös költsége 14.140 Ft/hó, víz és villanyfogyasztás egyedi mérés alapján fizetendő.
-A lakáshoz tartozik egy közös tároló, illetve a lakás előtti lépcsőház rész is privát, szeparált területtel rendelkezik
AZ INGATLAN MEGTEKINTHETŐ:
- Személyesen
- Online személyes bejelentkezéssel
FINANSZÍROZÁSBAN – ONLINE IS – SEGÍTÜNK!
✅ Bank-független hitelcenterünk díjmentesen versenyezteti az összes bank és hitelintézet ajánlatát.
✅ Önnek csak annyi a dolga, hogy egyeztet munkatársunkkal, majd kiválasztja a hosszú távon is legkedvezőbb konstrukciót.
✅ Szakértőink 20 év tapasztalattal, fogyasztóbarát lakáshitelekkel, babaváró hitellel és teljes körű CSOK Plusz és OTTHON START program ügyintézéssel várják.
✅ Időpont-egyeztetéssel munkaidő után is elérhetők.
Kérdéseire szívesen válaszolok, kérem hívjon bizalommal!
Új tulajdonosát keresi a III. kerületben, Rómaifürdőn, a Pók utcai lakótelepen egy 73 m2-es, nappali + 2 külön nyíló szobás, világos, jó állapotú panellakás, karbantartott társasházban. Ha zöld és csendes, jó infrastruktúrával rendelkező, nagyon népszerű környéken szeretné megtalálni új otthonát, ezt feltétlenül nézze meg!
KÖRNYÉK és KÖZLEKEDÉS:
- Budapest III. kerülete, Rómaifürdő, Pók utcai lakótelep
- Kiváló infrastruktúrával és közlekedéssel rendelkező, nagyon szerethető környék.
- A lakástól néhány perce elérhető minden, ami a hétköznapokhoz szükséges.
- A 106, 134, 34-es buszok megállója 8 perc, a H5-ös hév 9 perces sétatávolság.
- 10 perces körön belül bölcsőde, óvoda és iskola, orvosi rendelő, gyógyszertár is rendelkezésre áll.
- A bevásárlást a közelben található Auchan, Príma, Spar, Lidl és Aldi biztosítja.
- A Csillag Center Bevásárlóközpont 15 perc gyalog.
- A Római part Budapest egyik legszebb része, ami pár perces sétával elérhető.
TÁRSASHÁZ:
- 1990-es évek elején épült, 4 szintes panel épület.
- Műszakilag rendszeresen karbantartott, gondozott társasház.
- Lépcsőháza tiszta és rendezett.
- Lakóközössége kulturált, csendes, vegyes korosztály.
LAKÁS:
- Második emeleti, 73 m2-es, 3 szobás, világos és tágas terekkel rendelkező ingatlan.
- Műszakilag és esztétikailag is jó állapotú lakás
- Elosztása: előszoba-közlekedő, konyha+étkező, nappali, 2 szoba, fürdőszoba, WC.
- A nappali tájolása déli, a lakás világos és logikusan bútorozható terekkel rendelkezik.
- A szobák mindkét oldalon fákra és zöldre néznek, nincs közvetlen szembe szomszéd.
- A lakásban több nagy méretű beépített szekrény segíti a helykihasználást és tárolást.
- A konyha gépiesített, beépített bútorokkal ellátott
- A szobák laminált parkettával, a közlekedő, konyha, fürdőszoba járólappal burkolt.
- Fűtése távfűtés egyedi mérés nélkül, a hűtést klíma biztosítja.
- Közös költsége 14.140 Ft/hó, víz és villanyfogyasztás egyedi mérés alapján fizetendő.
-A lakáshoz tartozik egy közös tároló, illetve a lakás előtti lépcsőház rész is privát, szeparált területtel rendelkezik
AZ INGATLAN MEGTEKINTHETŐ:
- Személyesen
- Online személyes bejelentkezéssel
FINANSZÍROZÁSBAN – ONLINE IS – SEGÍTÜNK!
✅ Bank-független hitelcenterünk díjmentesen versenyezteti az összes bank és hitelintézet ajánlatát.
✅ Önnek csak annyi a dolga, hogy egyeztet munkatársunkkal, majd kiválasztja a hosszú távon is legkedvezőbb konstrukciót.
✅ Szakértőink 20 év tapasztalattal, fogyasztóbarát lakáshitelekkel, babaváró hitellel és teljes körű CSOK Plusz és OTTHON START program ügyintézéssel várják.
✅ Időpont-egyeztetéssel munkaidő után is elérhetők.
Kérdéseire szívesen válaszolok, kérem hívjon bizalommal!
Regisztrációs szám
H509796
Az ingatlan adatai
Értékesités
eladó
Jogi státusz
használt
Jelleg
lakás
Építési mód
panel
Méret
73 m²
Bruttó méret
76 m²
Terasz / erkély mérete
3 m²
Fűtés
mérés nélküli, központi fűtés
Belmagasság
263 cm
Lakáson belüli szintszám
1
Tájolás
Dél
Panoráma
Zöldre néző panoráma
Lépcsőház típusa
zárt lépcsőház
Állapot
Jó
Homlokzat állapota
Jó
Lépcsőház állapota
Jó
Környék
csendes, jó közlekedés, zöld
Építés éve
1991
Fürdőszobák száma
1
Fekvés
kertre néző
Közös költség
14000
Víz
Van
Villany
Van
Csatorna
Van
Tároló
Közös
Vízpart távolsága
több mint 500 méterre
Helyiségek
előszoba
6.5 m²
ebédlő
7.3 m²
konyha
6.7 m²
nappali
27.5 m²
hálószoba
6.2 m²
dolgozószoba
13.6 m²
fürdőszoba
2.7 m²
wc
0.8 m²
erkély
3 m²
Medovarszki Andrea
Hitelszakértő