Elérhető Otthon Start hitellel
Eladó lakás, H508749
Érd, Parkváros

59 900 000 Ft

155 000 €

  • 54m²
  • 3 szoba
  • földszint
Kiemelt megbízás

HÁROMSZOBÁS LAKÁS PARKVÁROSBAN!

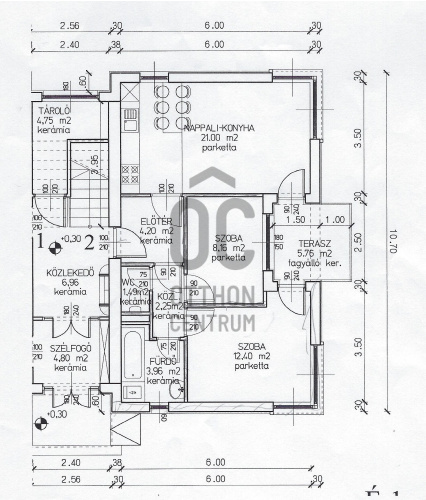
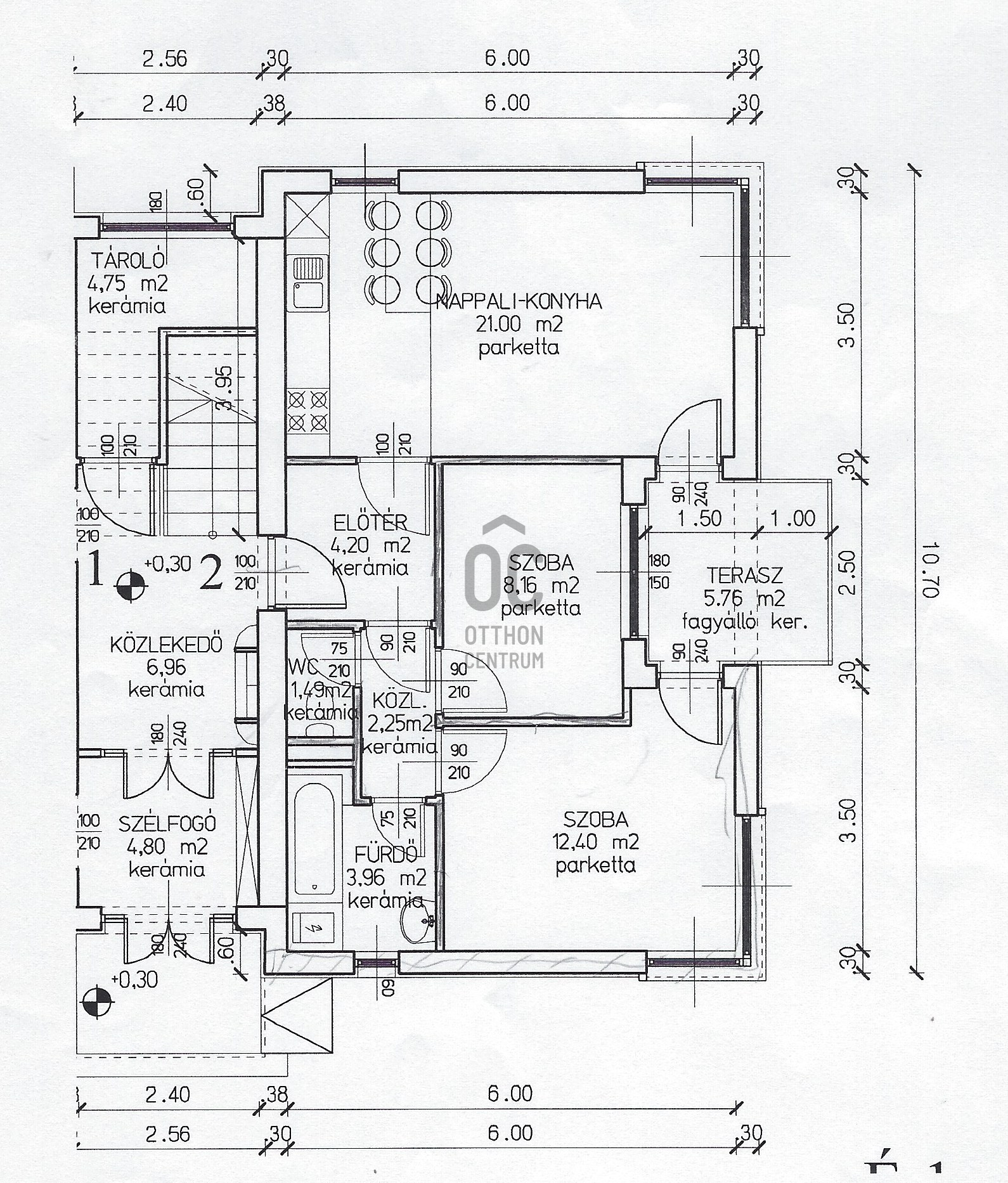
Érden a Bem térhez közel, a PÁRALIGET lakóparkban eladó egy 54 nm-s, HÁROMSZOBÁS FÖLDSZINTI LAKÁS, terasszal és parkolóval.
A lakópark egy zsákutcában található, nincs átmenő forgalom.
A lakás déli tájolásának köszönhetően, nagyon világos.
A társasház 2008-ban épült.
A fűtését házközponti gázkazán biztosítja, radiátoros hőleadással.
Rezsije nagyon kedvező.
A LAKÁS NEM HITELEZHETŐ!
Lokáció:
Bem tér, buszmegálló, Interspar, kávézó, posta, gyógyszertár, orvosi rendelők, óvoda, iskola 5-10 perc sétatávolságra található. M7-es, MO-ás autópálya szintén pár perc!
További kérdés vagy megtekintés esetén várom megtisztelő jelentkezését!

Regisztrációs szám

H508749

Az ingatlan adatai

Értékesités
eladó
Jogi státusz
használt
Jelleg
lakás
Építési mód
tégla
Méret
54 m²
Bruttó méret
60 m²
Terasz / erkély mérete
5,7 m²
Fűtés
mérés nélküli, központi fűtés
Belmagasság
260 cm
Tájolás
Dél
Lépcsőház típusa
zárt lépcsőház
Állapot
Homlokzat állapota
Lépcsőház állapota
Környék
csendes, jó közlekedés, zöld, központi
Építés éve
2008
Fürdőszobák száma
1
Fekvés
kertre néző
Közös költség
6000
Víz
Van
Gáz
Van
Villany
Van
Csatorna
Van

Helyiségek

előszoba
4.2 m²
wc-kézmosó
1.5 m²
fürdőszoba
3.96 m²
konyha-étkező
8 m²
nappali
13 m²
szoba
12.4 m²
szoba
8.16 m²
erkély
5.76 m²
Váczi Zsófia
Váczi Zsófia

Hitelszakértő

Irodánk kínálatából - Érd - Bem köz

for sale family house

Index image
data_sheet.details.realestate.section.main.otthonstart_flag.label
20

for sale row house

Index image
data_sheet.details.realestate.section.main.otthonstart_flag.label
18

for sale new construction semi-detached house

Index image
7

for sale new construction semi-detached house

Index image
7

for rent new construction apartment

Index image
22

for sale family house

Index image
data_sheet.details.realestate.section.main.otthonstart_flag.label
19

for sale family house

Index image
17

for sale apartment

Index image
10

for sale family house

Index image
16