279 900 000 Ft
739 000 €
- 290m²
- 5 szoba
LUXUS ÉS MODERNITÁS ETYEK SZÍVÉBEN ÚJ ÉPÍTÉSŰ ÁLOMOTTHON ELADÓ
Eladásra kínálunk Etyek egyik legkedveltebb részén, a Boti úton egy minden igényt kielégítő, prémium kategóriás, új építésű családi házat. Az ingatlan a modern építészet és a funkcionális elegancia tökéletes ötvözete, ahol a minőségi anyaghasználat és a tágas terek garantálják a maximális kényelmet.
Főbb paraméterek:
Helyszín: Etyek, Boti út 87.
Telek területe: 2091 m², falusias lakóövezetben (Lf-5).
Összesített szintterület: 387 m².
Lakóterület (földszint): 160,7 m².
Pince és garázs: 85 m².
Teraszok és külső terek: Az ingatlant tágas fedett és nyitott teraszok veszik körül, melyek biztosítják a közvetlen kapcsolatot a kerttel.
Belső kialakítás (Földszint - 160,7 m²):
A ház szíve a hatalmas, 70 m²-es amerikai konyhás nappali és étkező, amely tökéletes helyszín a családi és baráti összejövetelekhez.
3 különnyíló, kényelmes hálószoba (9,5 m² - 14,3 m²).
Gyakorlatias megoldások: két gardróbszoba, külön zuhanyzó és egy tágas fürdőszoba.
Világos előszoba és közlekedők.
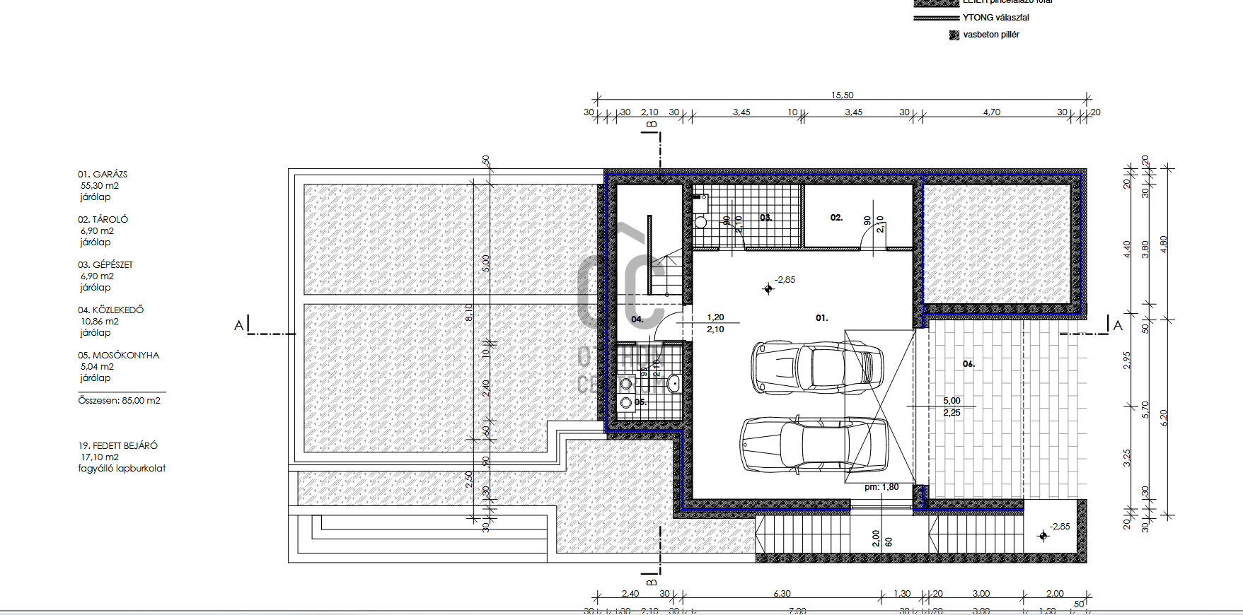
Alsó szint és technológia (Pince - 85 m²):
A pinceszinten található a kétállásos, több mint 55 m²-es garázs, amely bőséges helyet biztosít az autók számára.
Külön gépészeti helyiség és tároló az optimális rendszerezésért.
Mosókonyha és közlekedő a napi kényelemért.
A pince zsalukő falazattal, vízszigeteléssel és külső hőszigeteléssel ellátott.
Műszaki tartalom és extrák:
Az ingatlan a legmodernebb technológiákkal és első osztályú anyagokból épült:
Falazat: 30 cm vastag YTONG teherhordó falak külső hőszigetelő vakolatrendszerrel a kiváló energetikáért.
Szerkezet: Monolit vasbeton födémek és pillérek, vasalt sávalapozás.
Burkolatok: Minőségi járólapok a közös helyiségekben és a vizesblokkokban, elegáns parketta a hálószobákban.
Biztonság: Földrengésbiztos szerkezet és szigorú tűzvédelmi előírásoknak való megfelelés (REI-66).
Környezet:
Az ingatlan falusias környezetben, 50%-os minimális zöldfelületi mutató mellett épült, így garantált a nyugalom és a természet közelsége.
Ez a ház nem csupán egy ingatlan, hanem egy életérzés. Ha minőségi, modern otthont keres Etyek legszebb részén, ne keressen tovább!
Várom megtisztelő hívását a megtekintéssel kapcsolatban!
Eladásra kínálunk Etyek egyik legkedveltebb részén, a Boti úton egy minden igényt kielégítő, prémium kategóriás, új építésű családi házat. Az ingatlan a modern építészet és a funkcionális elegancia tökéletes ötvözete, ahol a minőségi anyaghasználat és a tágas terek garantálják a maximális kényelmet.
Főbb paraméterek:
Helyszín: Etyek, Boti út 87.
Telek területe: 2091 m², falusias lakóövezetben (Lf-5).
Összesített szintterület: 387 m².
Lakóterület (földszint): 160,7 m².
Pince és garázs: 85 m².
Teraszok és külső terek: Az ingatlant tágas fedett és nyitott teraszok veszik körül, melyek biztosítják a közvetlen kapcsolatot a kerttel.
Belső kialakítás (Földszint - 160,7 m²):
A ház szíve a hatalmas, 70 m²-es amerikai konyhás nappali és étkező, amely tökéletes helyszín a családi és baráti összejövetelekhez.
3 különnyíló, kényelmes hálószoba (9,5 m² - 14,3 m²).
Gyakorlatias megoldások: két gardróbszoba, külön zuhanyzó és egy tágas fürdőszoba.
Világos előszoba és közlekedők.
Alsó szint és technológia (Pince - 85 m²):
A pinceszinten található a kétállásos, több mint 55 m²-es garázs, amely bőséges helyet biztosít az autók számára.
Külön gépészeti helyiség és tároló az optimális rendszerezésért.
Mosókonyha és közlekedő a napi kényelemért.
A pince zsalukő falazattal, vízszigeteléssel és külső hőszigeteléssel ellátott.
Műszaki tartalom és extrák:
Az ingatlan a legmodernebb technológiákkal és első osztályú anyagokból épült:
Falazat: 30 cm vastag YTONG teherhordó falak külső hőszigetelő vakolatrendszerrel a kiváló energetikáért.
Szerkezet: Monolit vasbeton födémek és pillérek, vasalt sávalapozás.
Burkolatok: Minőségi járólapok a közös helyiségekben és a vizesblokkokban, elegáns parketta a hálószobákban.
Biztonság: Földrengésbiztos szerkezet és szigorú tűzvédelmi előírásoknak való megfelelés (REI-66).
Környezet:
Az ingatlan falusias környezetben, 50%-os minimális zöldfelületi mutató mellett épült, így garantált a nyugalom és a természet közelsége.
Ez a ház nem csupán egy ingatlan, hanem egy életérzés. Ha minőségi, modern otthont keres Etyek legszebb részén, ne keressen tovább!
Várom megtisztelő hívását a megtekintéssel kapcsolatban!
Regisztrációs szám
DHZ090329
Az ingatlan adatai
Értékesités
eladó
Jogi státusz
használt
Jelleg
ház
Építési mód
tégla
Méret
290 m²
Bruttó méret
290 m²
Telek méret
3 299 m²
Terasz / erkély mérete
113,6 m²
Fűtés
egyéb
Belmagasság
330 cm
Lakáson belüli szintszám
1
Tájolás
Észak-nyugat
Állapot
Kiváló
Homlokzat állapota
Kiváló
Építés éve
2025
Fürdőszobák száma
2
Fekvés
udvari
Víz
Van
Gáz
Van
Villany
Van
Csatorna
Van
Helyiségek
nappali-konyha
77 m²
előszoba
7 m²
fürdőszoba-wc
6 m²
szoba
10 m²
gardrób
5.1 m²
szoba
11 m²
közlekedő
14.4 m²
szoba
14.35 m²
gardrób
8.75 m²
fürdőszoba-wc
10.5 m²
lépcsőház
7.35 m²
veranda
41.6 m²
terasz
32 m²
terasz
40 m²
közlekedő
10.86 m²
szoba
5 m²
Váczi Zsófia
Hitelszakértő