Elérhető Otthon Start hitellel
Eladó sorház,
H508312
Budakeszi, Központ, Fő utca
58 000 000 Ft
151 000 €
- 51,5m²
- 3 szoba
- földszint
Fedezd fel álmaid otthonát Budakeszi szívében – 3 szobás kertkapcsolatos lakás vár!
Képzeld el, hogy egy olyan otthonra találsz, ami nemcsak a mindennapjaidat, hanem az életedet is megváltoztatja!
Ez a frissen felújított, 51,5 nm-es, háromszobás lakás Budakeszi központjában, a Fő utcán vár rád, és mindent megad, amire egy fiatal felnőttnek szüksége lehet. Az ingatlan kiváló állapotban van, így azonnal költözhető, és tehermentes, így gyorsan birtokba veheted és a OSP hitelt is feltudod használni a vásárláskor.
Modern designnal rendelkezik, LED hangulatvilágítással és motoros redőnyökkel felszerelve, ami nemcsak stílusos, hanem a kényelmedet is szolgálja.
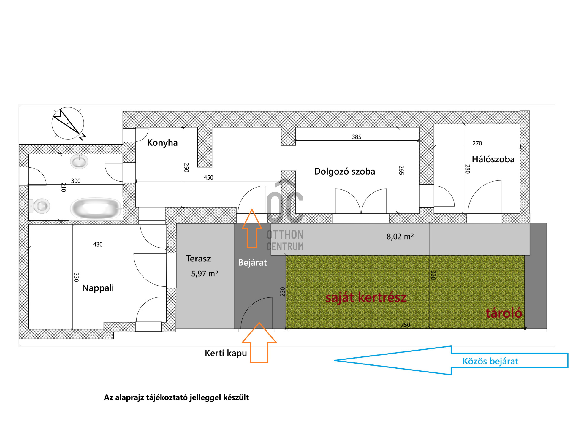
Az Fisotech okos otthon rendszer lehetővé teszi, hogy a legújabb technológiát kihasználva éld mindennapjaidat, míg a világos és napfényes szobákban mindig jókedvűen ébredhetsz. Az elkerített kertrész 40 nm és terasz mérete 6 nm, ahol a reggeli kávédat vagy a délutáni pihenésedet élvezheted a friss levegőn. A kerti tároló pedig praktikus megoldást kínál a kerti eszközeidnek.
Budakeszi központi elhelyezkedése miatt a környék ellátottsága kiváló. Bolt, iskola, orvosi rendelő és számos szórakozási lehetőség mind a közelben található. A közlekedési csomópont közelsége miatt kitűnő közlekedési lehetőségeid lesznek, így a főváros könnyedén elérhető, legyen szó autóról vagy tömegközlekedésről.
A környék biztonságos és csendes, ideális környezetet biztosít a pihenéshez és a feltöltődéshez. Ez az ingatlan nemcsak egy otthon, hanem egy lehetőség is! Képzeld el, ahogy a barátaiddal a kertben grillezel, vagy egy nyugodt estét töltesz el a teraszon, miközben a nap lenyugszik. Ráadásul a kisállattal költözhető lehetőség még vonzóbbá teszi ezt a remek ajánlatot, hiszen a szeretett házi kedvenced is veled tarthat az új kalandokban.
Ez a lakás nem csupán egy ingatlan, hanem egy lehetőség arra, hogy egy olyan helyet találj, ahol a mindennapjaidat élvezheted.
Amennyiben kérdésed van, vagy szeretnéd megtekinteni az ingatlant, hívj és megbeszéljük a részleteket!
Segítséget nyújtunk a vásárláshoz pénzügyi szakembereink bankfüggetlen pénzügyi termékkínálatával, valamint ingatlan szakjogászunk biztosítja a problémamentes vásárlást.
akár #OSP Otthon Start Program hitellel is megvásárolható
Ez a frissen felújított, 51,5 nm-es, háromszobás lakás Budakeszi központjában, a Fő utcán vár rád, és mindent megad, amire egy fiatal felnőttnek szüksége lehet. Az ingatlan kiváló állapotban van, így azonnal költözhető, és tehermentes, így gyorsan birtokba veheted és a OSP hitelt is feltudod használni a vásárláskor.
Modern designnal rendelkezik, LED hangulatvilágítással és motoros redőnyökkel felszerelve, ami nemcsak stílusos, hanem a kényelmedet is szolgálja.
Az Fisotech okos otthon rendszer lehetővé teszi, hogy a legújabb technológiát kihasználva éld mindennapjaidat, míg a világos és napfényes szobákban mindig jókedvűen ébredhetsz. Az elkerített kertrész 40 nm és terasz mérete 6 nm, ahol a reggeli kávédat vagy a délutáni pihenésedet élvezheted a friss levegőn. A kerti tároló pedig praktikus megoldást kínál a kerti eszközeidnek.
Budakeszi központi elhelyezkedése miatt a környék ellátottsága kiváló. Bolt, iskola, orvosi rendelő és számos szórakozási lehetőség mind a közelben található. A közlekedési csomópont közelsége miatt kitűnő közlekedési lehetőségeid lesznek, így a főváros könnyedén elérhető, legyen szó autóról vagy tömegközlekedésről.
A környék biztonságos és csendes, ideális környezetet biztosít a pihenéshez és a feltöltődéshez. Ez az ingatlan nemcsak egy otthon, hanem egy lehetőség is! Képzeld el, ahogy a barátaiddal a kertben grillezel, vagy egy nyugodt estét töltesz el a teraszon, miközben a nap lenyugszik. Ráadásul a kisállattal költözhető lehetőség még vonzóbbá teszi ezt a remek ajánlatot, hiszen a szeretett házi kedvenced is veled tarthat az új kalandokban.
Ez a lakás nem csupán egy ingatlan, hanem egy lehetőség arra, hogy egy olyan helyet találj, ahol a mindennapjaidat élvezheted.
Amennyiben kérdésed van, vagy szeretnéd megtekinteni az ingatlant, hívj és megbeszéljük a részleteket!
Segítséget nyújtunk a vásárláshoz pénzügyi szakembereink bankfüggetlen pénzügyi termékkínálatával, valamint ingatlan szakjogászunk biztosítja a problémamentes vásárlást.
akár #OSP Otthon Start Program hitellel is megvásárolható
Regisztrációs szám
H508312
Az ingatlan adatai
Értékesités
eladó
Jogi státusz
használt
Jelleg
ház
Építési mód
tégla
Méret
51,5 m²
Bruttó méret
69 m²
Telek méret
115 m²
Terasz / erkély mérete
5,9 m²
Kert méret
40 m²
Fűtés
Gáz cirkó
Belmagasság
250 cm
Tájolás
Észak-kelet
Lépcsőház típusa
nincs
Állapot
Kiváló
Homlokzat állapota
Jó
Lépcsőház állapota
Kiváló
Környék
csendes, jó közlekedés, zöld, központi
Építés éve
1950
Fürdőszobák száma
1
Fekvés
kertre néző
Társaház kert
igen
Víz
Van
Gáz
Van
Villany
Van
Csatorna
Van
Tároló
Önálló
Helyiségek
fürdőszoba-wc
6 m²
szoba
14 m²
konyha
12 m²
szoba
11 m²
szoba
8.5 m²