Elérhető Otthon Start hitellel
Eladó panel lakás,
H507963
Budapest IX. kerület, Középső Ferencváros, Haller utca
69 700 000 Ft
180 000 €
- 49m²
- 2 szoba
- 8. emelet
BERUHÁZÓK ÉS OTTHONTEREMTŐK FIGYELEM!
Álmai lakása, kiváló helyen, hatalmas potenciállal – 74,9 M Ft
Cím: Budapest IX. kerület, Középső Ferencváros, Haller utca. Méret: 49 m² Ár: 74,9 M Ft
Miért pont ez? (Rövid összefoglaló és a potenciál)
Ez nem csupán egy lakás, hanem egy tiszta lap, a belváros szívében, a folyamatosan fejlődő Középső Ferencvárosban! A 49 nm-es, 1+1 szobás, erkélyes ingatlan a Haller utca frekventált csomópontjánál várja új tulajdonosát. Ideális választás fiataloknak, pályakezdőknek saját, álmaik szerint kialakított otthonra, vagy befektetőknek, akik egy dinamikusan növekvő környéken keresnek magas hozamú ingatlant. A teljes felújítás szabadságát adja: a jelenlegi felújítandó állapotból egy modern, kiadásra vagy saját célra tökéletes otthon varázsolható. Nézze meg a lakberendező által készített látványterveket, hogy lássa, milyen minimális ráfordítással milyen különleges ékszerdoboz rejtőzik benne!
A hely: Középső Ferencváros – A Főváros Pezsgő Negyede
Középső Ferencváros az elmúlt években a IX. kerület egyik legkeresettebb és legdinamikusabban fejlődő része lett. A lakás elhelyezkedése garantálja a nyugodt lakóövezet és a városi élet pulzálása közötti tökéletes egyensúlyt. A környező utcákban új építések, felújított homlokzatok, és egyre több igényes kávézó, bisztró és étterem jelzi a környék felemelkedését. Ez a folyamatos értéknövekedés garanciája.
Infrastruktúra és Közlekedés: Minden Kézre Áll
Az ingatlan elhelyezkedése páratlan, valódi közlekedési csomópont közelében. A sétatávolságra lévő metró- és buszmegállók (pl. 3-as metró) révén Budapest bármely pontja percek alatt elérhető. A mindennapi élethez szükséges infrastruktúra – boltok, piac, gyógyszertár, posta, edzőtermek – kiváló, az életminőség garantáltan magas. Ezen felül a Duna-part, a sportlétesítmények és a kulturális központok közelsége is hozzájárul az aktív, városi életstílushoz.
A Lakás: A Lehetőség, Ami Önre Vár
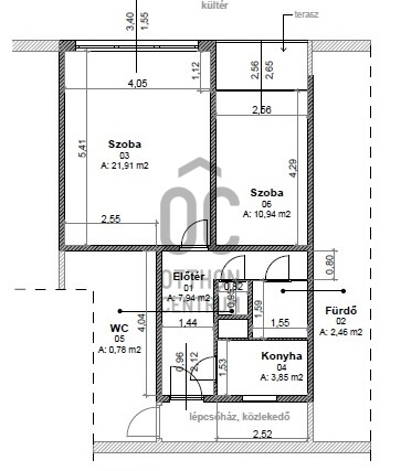
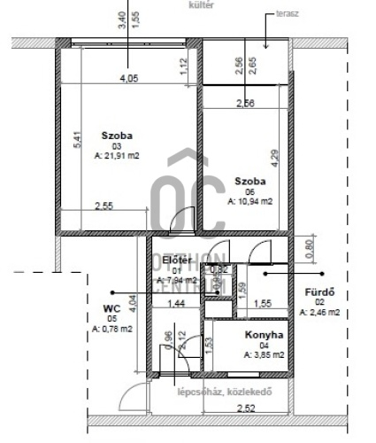
A 49 nm-es ingatlan a társasház 8. emeletén található. Jelenleg a következő elrendezéssel rendelkezik:
Tágas nappali, kényelmes hálószoba, loggiává alakított 3 nm-es erkély, amely kiváló helyszín a reggeli kávéhoz vagy a pihenéshez, panorámás kilátással a városra.
Jelenlegi állapot:
A lakás teljesen felújítandó, ami a legnagyobb előnye! Ezzel a lehetőséggel ugyanis Önnek nem kell kompromisszumot kötnie!
A jövőképe: Felújítás utáni csoda
A felújítást követően egy modern, napfényes otthon születhet, ahol minden részlet az Ön ízlését és igényeit tükrözi! A tervező által készített látványképek megmutatják, hogy az ingatlanból hogyan válhat egy minimalista, stílusos, kiemelkedő bérleti értékkel bíró lakás. A távfűtés egyedi méréssel kedvező fenntartási költségeket tesz lehetővé, ami tovább növeli a befektetési vonzerejét.
Ne csak álmodozzon – Valósítsa meg!
Ez a lakás egy igazi nyers gyémánt Középső Ferencváros szívében, ami a jövőben jelentős értéknövekedési potenciált hordoz. Ne hagyja, hogy más csapjon le erre a kivételes beruházási vagy otthonteremtési lehetőségre!
Hívjon még ma, és fedezzük fel együtt a benne rejlő potenciált! Várjuk jelentkezését egy személyes megtekintésre!
Álmai lakása, kiváló helyen, hatalmas potenciállal – 74,9 M Ft
Cím: Budapest IX. kerület, Középső Ferencváros, Haller utca. Méret: 49 m² Ár: 74,9 M Ft
Miért pont ez? (Rövid összefoglaló és a potenciál)
Ez nem csupán egy lakás, hanem egy tiszta lap, a belváros szívében, a folyamatosan fejlődő Középső Ferencvárosban! A 49 nm-es, 1+1 szobás, erkélyes ingatlan a Haller utca frekventált csomópontjánál várja új tulajdonosát. Ideális választás fiataloknak, pályakezdőknek saját, álmaik szerint kialakított otthonra, vagy befektetőknek, akik egy dinamikusan növekvő környéken keresnek magas hozamú ingatlant. A teljes felújítás szabadságát adja: a jelenlegi felújítandó állapotból egy modern, kiadásra vagy saját célra tökéletes otthon varázsolható. Nézze meg a lakberendező által készített látványterveket, hogy lássa, milyen minimális ráfordítással milyen különleges ékszerdoboz rejtőzik benne!
A hely: Középső Ferencváros – A Főváros Pezsgő Negyede
Középső Ferencváros az elmúlt években a IX. kerület egyik legkeresettebb és legdinamikusabban fejlődő része lett. A lakás elhelyezkedése garantálja a nyugodt lakóövezet és a városi élet pulzálása közötti tökéletes egyensúlyt. A környező utcákban új építések, felújított homlokzatok, és egyre több igényes kávézó, bisztró és étterem jelzi a környék felemelkedését. Ez a folyamatos értéknövekedés garanciája.
Infrastruktúra és Közlekedés: Minden Kézre Áll
Az ingatlan elhelyezkedése páratlan, valódi közlekedési csomópont közelében. A sétatávolságra lévő metró- és buszmegállók (pl. 3-as metró) révén Budapest bármely pontja percek alatt elérhető. A mindennapi élethez szükséges infrastruktúra – boltok, piac, gyógyszertár, posta, edzőtermek – kiváló, az életminőség garantáltan magas. Ezen felül a Duna-part, a sportlétesítmények és a kulturális központok közelsége is hozzájárul az aktív, városi életstílushoz.
A Lakás: A Lehetőség, Ami Önre Vár
A 49 nm-es ingatlan a társasház 8. emeletén található. Jelenleg a következő elrendezéssel rendelkezik:
Tágas nappali, kényelmes hálószoba, loggiává alakított 3 nm-es erkély, amely kiváló helyszín a reggeli kávéhoz vagy a pihenéshez, panorámás kilátással a városra.
Jelenlegi állapot:
A lakás teljesen felújítandó, ami a legnagyobb előnye! Ezzel a lehetőséggel ugyanis Önnek nem kell kompromisszumot kötnie!
A jövőképe: Felújítás utáni csoda
A felújítást követően egy modern, napfényes otthon születhet, ahol minden részlet az Ön ízlését és igényeit tükrözi! A tervező által készített látványképek megmutatják, hogy az ingatlanból hogyan válhat egy minimalista, stílusos, kiemelkedő bérleti értékkel bíró lakás. A távfűtés egyedi méréssel kedvező fenntartási költségeket tesz lehetővé, ami tovább növeli a befektetési vonzerejét.
Ne csak álmodozzon – Valósítsa meg!
Ez a lakás egy igazi nyers gyémánt Középső Ferencváros szívében, ami a jövőben jelentős értéknövekedési potenciált hordoz. Ne hagyja, hogy más csapjon le erre a kivételes beruházási vagy otthonteremtési lehetőségre!
Hívjon még ma, és fedezzük fel együtt a benne rejlő potenciált! Várjuk jelentkezését egy személyes megtekintésre!
Regisztrációs szám
H507963
Az ingatlan adatai
Értékesités
eladó
Jogi státusz
használt
Jelleg
lakás
Építési mód
panel
Méret
49 m²
Bruttó méret
50,5 m²
Terasz / erkély mérete
3 m²
Fűtés
egyedi távfűtés
Belmagasság
265 cm
Tájolás
Dél-nyugat
Lépcsőház típusa
zárt lépcsőház
Állapot
Felújítandó
Homlokzat állapota
Jó
Lépcsőház állapota
Jó
Építés éve
1981
Fürdőszobák száma
1
Fekvés
utcai
Víz
Van
Gáz
Van
Villany
Van
Csatorna
Van
Lift
van
Helyiségek
előszoba
2 m²
konyha
5.5 m²
közlekedő
3 m²
fürdőszoba-wc
3.5 m²
nappali
23 m²
szoba
12 m²
erkély
3 m²
Örvössy Tamás
Hitelszakértő