Elérhető Otthon Start hitellel
Eladó családi ház,
H507251
Bajna
99 500 000 Ft
256 000 €
- 156m²
- 4 szoba

























































BAJNA településen négy szobás, jó állapotú családi ház nagy méretű műhellyel, garázzsal eladó!
TELEK:
- 1020 nm
- rendezett, körbe kerített
-Utcafrontja esztétikus megjelenésű kovácsoltvas kerítés és autóbejáró,
- A kert füvesített és fás környezetű,
- a telek hátsó részében pedig egy fedett kültéri medence került kialakításra.
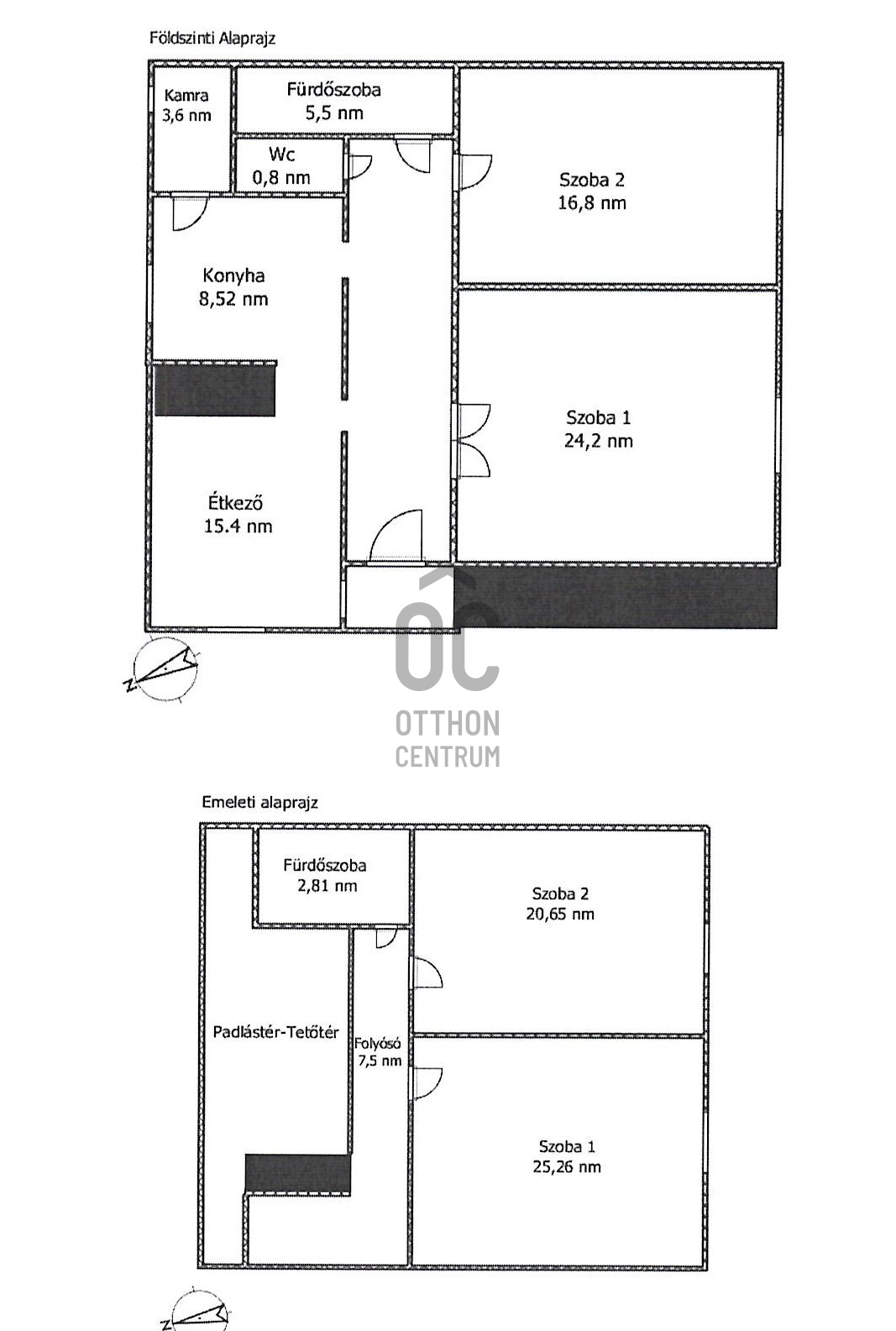
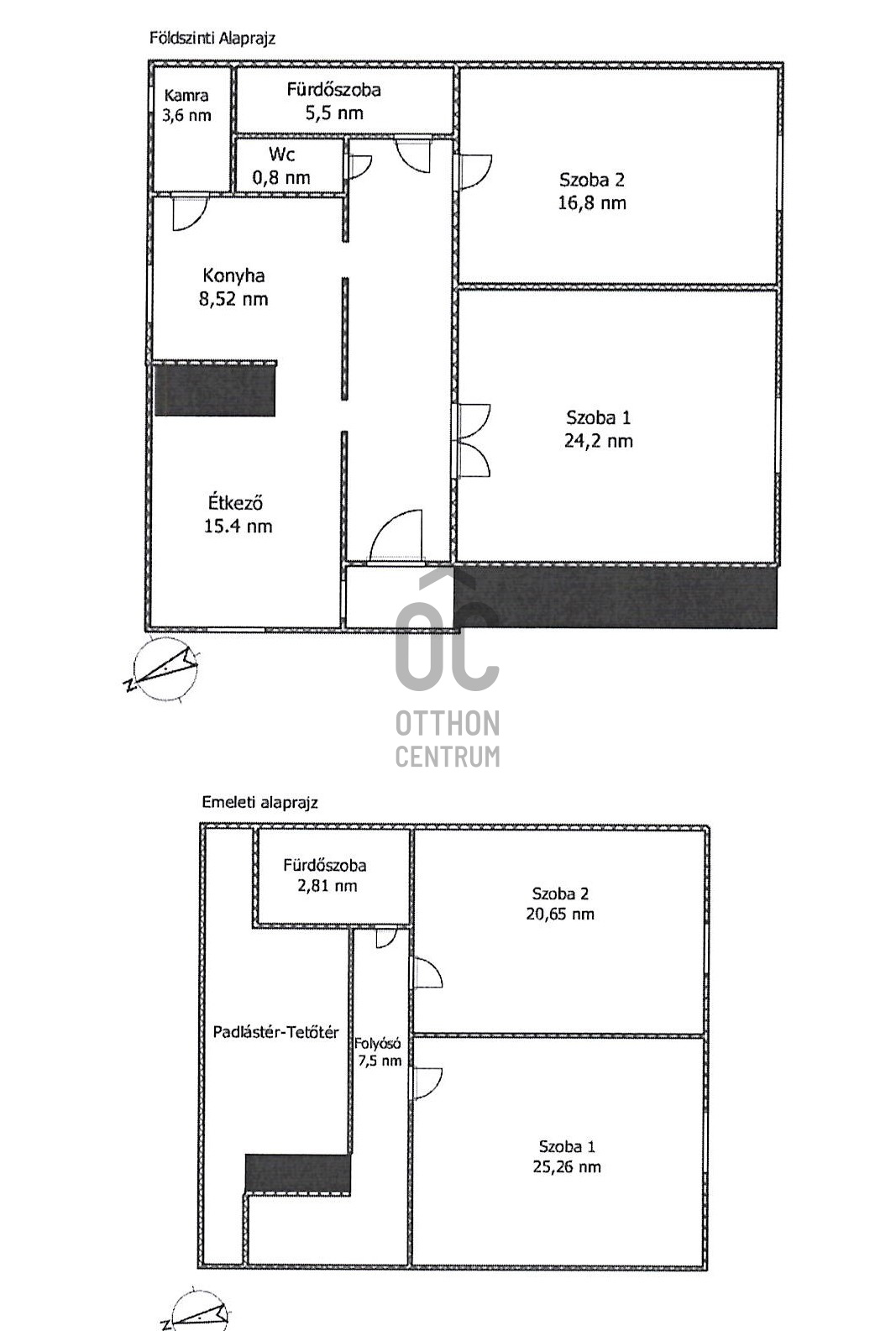
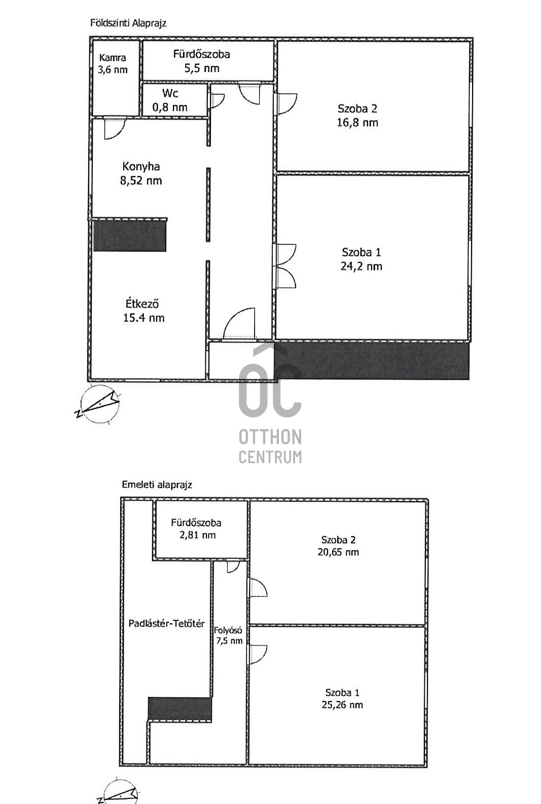
CSALÁDI HÁZ:
- 1977-ben épült, dupla összkomfortos,
- 4 nagy méretű szoba, étkező, külön konyha, szintenként fürdőszoba
- hagyományos B25-ös téglaépítéssel épített, mely betonsáv alapokon nyugszik.
- Tetőszerkezete betonkoszorúval készült,
- belső kétszintes épület,
-megemelt parapet magassággal, fafödémmel kialakított, cserépfedéses nyeregtető.
- Az ingatlan karbantartott, rendezett
-1985-ben a főépület melléképületekkel bővült, különálló műhelyek, tárolók kaptak helyet és ezen épületek a térképvázlaton is szerepelnek.
-2014 és 2020 között mind az épület, mind a külső környezet folyamatos felújításon esett át.
- 2014 után új burkolatok kerültek kialakításra,
- az új villanybojler mellett új gázkazán és vegyestüzelésű kazán is beüzemelésre került,
- megújult a teljes víz-szennyvíz és gáz hálózat,
- víztisztító rendszer került beépítésre,
- 5cm külső dryvit szigetelés került az épületre, mely vakolás után színezést is kapott,
-a tetőt szigetelték, melynek keretében a födémet 15 cm-es kőzet gyapot szigeteléssel látták el.
Az épület minden helyisége teljesen újak a nyílászárók, melyek redőnyökkel és szúnyoghálóval is felszereltek.
-ingatlan áramellátása lakossági 3*15 Amper, valamint 380 V ipari áramellátással is rendelkezik.
- A főépület alatt szuterén szint található, amely összesen 92 nm-en terül el.
- Ezen a szinten található az utca fronti garázs, mely egy autó parkolására kialakított,
-valamint itt található a kazán helyiség, a fűtő berendezések, úgy, mint gázkazán, vegyes tüzelésűkazán és a teljes gépészet,
- három további tároló helyiség, valamint, a pincét is erről a szintről tudjuk megközelíteni.
- Az épület víz-csatorna-áram-gáz közüzemi szolgáltatókon keresztül biztosított.
- Parkolás a ház előtt is, illetve az ingatlanon belül további két garázsban és autóbeállón keresztül is biztosított
Melléképület:
- 1985-ben a főépület mellé, melléképület került felépítésre.
- Ezt a 156 nm-es épületet tulajdonosai asztalos műhelyként használták.
- Ez az épület egy fő épületi egységből és két táróló, valamint egy garázs helyiségekből áll.
- Rendelkezik ipari árammal,
- alja betonozott, világítóablakokkal, nyílászárókkal felszerelt.
Toló és nyíló ajtók is beépítésre kerültek.
Az ingatlanon található valamennyi építmény a térképvázlaton szerepel.
HITELEZHETŐ!
- Az ingatlan aszfaltozott úton, a település összes irányából jól megközelíthető,
- 10 perc sétára található a vasútállomás és a távolsági buszmegálló,
- boltok, orvosi rendelő és egyéb kiszolgáló egységek séta távolságban .
TELEK:
- 1020 nm
- rendezett, körbe kerített
-Utcafrontja esztétikus megjelenésű kovácsoltvas kerítés és autóbejáró,
- A kert füvesített és fás környezetű,
- a telek hátsó részében pedig egy fedett kültéri medence került kialakításra.
CSALÁDI HÁZ:
- 1977-ben épült, dupla összkomfortos,
- 4 nagy méretű szoba, étkező, külön konyha, szintenként fürdőszoba
- hagyományos B25-ös téglaépítéssel épített, mely betonsáv alapokon nyugszik.
- Tetőszerkezete betonkoszorúval készült,
- belső kétszintes épület,
-megemelt parapet magassággal, fafödémmel kialakított, cserépfedéses nyeregtető.
- Az ingatlan karbantartott, rendezett
-1985-ben a főépület melléképületekkel bővült, különálló műhelyek, tárolók kaptak helyet és ezen épületek a térképvázlaton is szerepelnek.
-2014 és 2020 között mind az épület, mind a külső környezet folyamatos felújításon esett át.
- 2014 után új burkolatok kerültek kialakításra,
- az új villanybojler mellett új gázkazán és vegyestüzelésű kazán is beüzemelésre került,
- megújult a teljes víz-szennyvíz és gáz hálózat,
- víztisztító rendszer került beépítésre,
- 5cm külső dryvit szigetelés került az épületre, mely vakolás után színezést is kapott,
-a tetőt szigetelték, melynek keretében a födémet 15 cm-es kőzet gyapot szigeteléssel látták el.
Az épület minden helyisége teljesen újak a nyílászárók, melyek redőnyökkel és szúnyoghálóval is felszereltek.
-ingatlan áramellátása lakossági 3*15 Amper, valamint 380 V ipari áramellátással is rendelkezik.
- A főépület alatt szuterén szint található, amely összesen 92 nm-en terül el.
- Ezen a szinten található az utca fronti garázs, mely egy autó parkolására kialakított,
-valamint itt található a kazán helyiség, a fűtő berendezések, úgy, mint gázkazán, vegyes tüzelésűkazán és a teljes gépészet,
- három további tároló helyiség, valamint, a pincét is erről a szintről tudjuk megközelíteni.
- Az épület víz-csatorna-áram-gáz közüzemi szolgáltatókon keresztül biztosított.
- Parkolás a ház előtt is, illetve az ingatlanon belül további két garázsban és autóbeállón keresztül is biztosított
Melléképület:
- 1985-ben a főépület mellé, melléképület került felépítésre.
- Ezt a 156 nm-es épületet tulajdonosai asztalos műhelyként használták.
- Ez az épület egy fő épületi egységből és két táróló, valamint egy garázs helyiségekből áll.
- Rendelkezik ipari árammal,
- alja betonozott, világítóablakokkal, nyílászárókkal felszerelt.
Toló és nyíló ajtók is beépítésre kerültek.
Az ingatlanon található valamennyi építmény a térképvázlaton szerepel.
HITELEZHETŐ!
- Az ingatlan aszfaltozott úton, a település összes irányából jól megközelíthető,
- 10 perc sétára található a vasútállomás és a távolsági buszmegálló,
- boltok, orvosi rendelő és egyéb kiszolgáló egységek séta távolságban .
Regisztrációs szám
H507251
Az ingatlan adatai
Értékesités
eladó
Jogi státusz
használt
Jelleg
ház
Építési mód
tégla
Méret
156 m²
Bruttó méret
392 m²
Telek méret
1 020 m²
Fűtés
Gáz cirkó
Belmagasság
265 cm
Lakáson belüli szintszám
2
Tájolás
Dél-kelet
Állapot
Jó
Homlokzat állapota
Jó
Pince
Önálló
Környék
csendes, jó közlekedés, zöld
Építés éve
1975
Fürdőszobák száma
2
Társaház kert
igen
Garázs
Benne van az árban
Garázs férőhely
2
Víz
Van
Gáz
Van
Villany
Van
Csatorna
Van
Tároló
Önálló
Helyiségek
kamra
3.6 m²
fürdőszoba
5.5 m²
wc
0.8 m²
konyha
8.52 m²
ebédlő
15.4 m²
nappali
24.2 m²
szoba
16.8 m²
előszoba
7.5 m²
szoba
19.65 m²
szoba
25.26 m²
közlekedő
6.5 m²
fürdőszoba-wc
2.81 m²
padlástér
25 m²
tároló
19.5 m²
garázs
22.4 m²
közlekedő
16 m²
tároló
5.34 m²
raktár
8.1 m²
tároló
7.91 m²
tároló
8.05 m²
borospince
4 m²

Korcsog Melinda
Hitelszakértő