419 000 000 Ft
1 073 000 €
- 93m²
- 3 szoba
- földszint













**PANORÁMÁS, EXKLUZÍV GELLÉRTHEGYI ÉKSZER OTTHON KERTTEL ÉS TERASSZAL – ELADÓ**
Ez az INGATLAN RITKASÁG a Gellért-hegy LEGSZEBB utcájában, egyik leghíresebb TÖRTÉNELMI villaépületének földszintjén várja új tulajdonosát! A lakás különleges értékeit a PÁRATLAN DUNA-PARLAMENT-BUDAI vár-LÁNCHÍD PANORÁMA, valamint a műemléki hangulat és a MODERN LUXUS ötvözete adja.
A teljes körű FELÚJÍTÁSBAN magas színvonalú MŰSZAKI tartalom és kivételes ESZTÉTIKAI kivitelezés valósult meg. A vadonatúj KLÍMA- és FŰTÉSRENDSZER, a teljesen új ELEKTROMOS hálózat, a PRÉMIUM vízvezetékek és a két KÜLÖN FÜRDŐSZOBA kényelme maximális ÉRTÉKÁLLÓSÁGOT jelent.
A VILÁGOS és tágas nappali-konyha tér különleges fa BURKOLATA, egyedileg gyártott, teljesen GÉPESÍTETT konyhája EREDETI gránit pulttal, valamint műemléki, restaurált BOROVI FENYŐ nyílászárók jellemzik az otthont.
A lakás 2 HÁLÓSZOBÁJA ideális elosztású – a nagyobbikhoz egy WELLNESS hangulatú, szabadonálló kádas és épített zuhanyzós fürdő tartozik. A TERASZRÓL íves lépcső vezet le a több mint 300 m²-es GYÖNYÖRŰ KERTBE, mely szokásjog alapján kizárólag a lakók használatában áll.
Elhelyezkedésének köszönhetően a természet KÖZELSÉGE (pár lépés az erdő és sétány), az EGYEDI PANORÁMA és a műemléki környezet összhangja teszi ezt az ingatlant KIVÉTELES, időtálló OTTHONNÁ vagy BEFEKTETÉSSÉ. Tekintse meg és fedezze fel személyesen a Gellérthegy egyik LEGSZEBB LAKÁSÁT!
Ne hagyja ki ezt az EGYEDÜLÁLLÓ lehetőséget! Ez az ingatlan tökéletes választás mindazok számára, akik egy stílusos, minőségi otthont keresnek Budapest egyik legimpozánsabb területén.
További információért és megtekintés miatt keressen bizalommal a hét bármely napján!
Ez az INGATLAN RITKASÁG a Gellért-hegy LEGSZEBB utcájában, egyik leghíresebb TÖRTÉNELMI villaépületének földszintjén várja új tulajdonosát! A lakás különleges értékeit a PÁRATLAN DUNA-PARLAMENT-BUDAI vár-LÁNCHÍD PANORÁMA, valamint a műemléki hangulat és a MODERN LUXUS ötvözete adja.
A teljes körű FELÚJÍTÁSBAN magas színvonalú MŰSZAKI tartalom és kivételes ESZTÉTIKAI kivitelezés valósult meg. A vadonatúj KLÍMA- és FŰTÉSRENDSZER, a teljesen új ELEKTROMOS hálózat, a PRÉMIUM vízvezetékek és a két KÜLÖN FÜRDŐSZOBA kényelme maximális ÉRTÉKÁLLÓSÁGOT jelent.
A VILÁGOS és tágas nappali-konyha tér különleges fa BURKOLATA, egyedileg gyártott, teljesen GÉPESÍTETT konyhája EREDETI gránit pulttal, valamint műemléki, restaurált BOROVI FENYŐ nyílászárók jellemzik az otthont.
A lakás 2 HÁLÓSZOBÁJA ideális elosztású – a nagyobbikhoz egy WELLNESS hangulatú, szabadonálló kádas és épített zuhanyzós fürdő tartozik. A TERASZRÓL íves lépcső vezet le a több mint 300 m²-es GYÖNYÖRŰ KERTBE, mely szokásjog alapján kizárólag a lakók használatában áll.
Elhelyezkedésének köszönhetően a természet KÖZELSÉGE (pár lépés az erdő és sétány), az EGYEDI PANORÁMA és a műemléki környezet összhangja teszi ezt az ingatlant KIVÉTELES, időtálló OTTHONNÁ vagy BEFEKTETÉSSÉ. Tekintse meg és fedezze fel személyesen a Gellérthegy egyik LEGSZEBB LAKÁSÁT!
Ne hagyja ki ezt az EGYEDÜLÁLLÓ lehetőséget! Ez az ingatlan tökéletes választás mindazok számára, akik egy stílusos, minőségi otthont keresnek Budapest egyik legimpozánsabb területén.
További információért és megtekintés miatt keressen bizalommal a hét bármely napján!
Regisztrációs szám
H505214
Az ingatlan adatai
Értékesités
eladó
Jogi státusz
használt
Jelleg
lakás
Építési mód
tégla
Méret
93 m²
Bruttó méret
93 m²
Terasz / erkély mérete
12 m²
Fűtés
központi fűtés
Belmagasság
368 cm
Tájolás
Észak-nyugat
Lépcsőház típusa
nincs
Állapot
Kiváló
Homlokzat állapota
Jó
Lépcsőház állapota
Jó
Környék
csendes
Építés éve
1930
Fürdőszobák száma
2
Fekvés
utcai
Közös költség
125999
Víz
Van
Gáz
Van
Villany
Van
Csatorna
Van
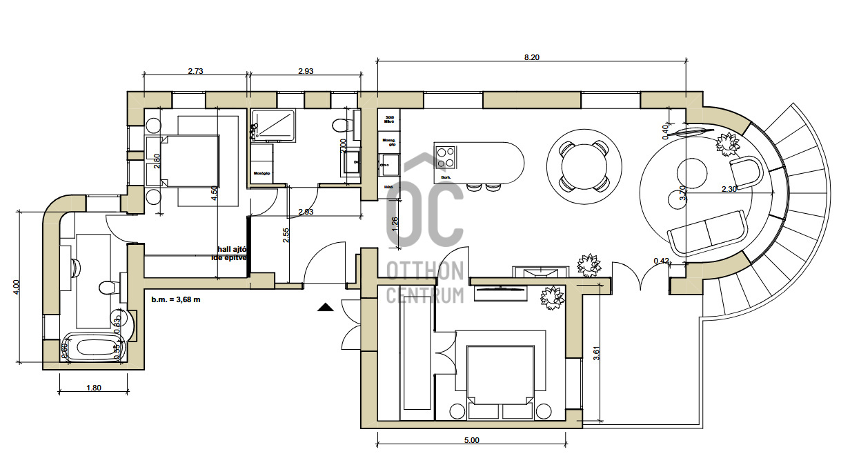
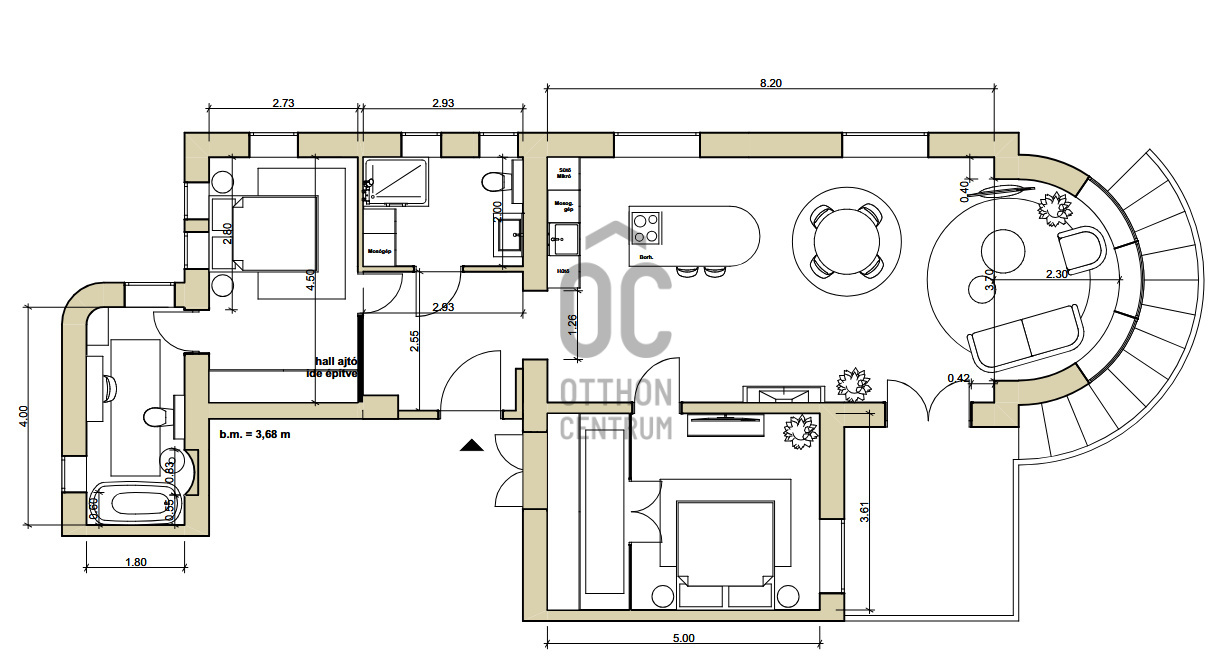
Helyiségek
nappali-konyha
35 m²
hálószoba
18 m²
előszoba
6 m²
fürdőszoba-wc
5.5 m²
hálószoba
12.3 m²
fürdőszoba-wc
7.2 m²
terasz
12 m²

Örvössy Tamás
Hitelszakértő