Elérhető Otthon Start hitellel
Eladó családi ház,
H498064
Zalaszántó
115 000 000 Ft
294 000 €
- 210m²
- 6 szoba






























A Balaton és Hévíz vonzáskörzetében, Zalaszántó domboldalán kétszintes lakóingatlan 3488 nm-es telken, melléképülettel, eladó!
Az épület Ytong -30-as falazóelemből és tömör téglából, nyeregtetős fedélszerkezettel épült. A talajnedvesség ellen 2 réteg vastag lemez szigetelés, a padlóban Nikecell, a tetőtérben ásványgyapot szigetelés. A pince feltöltése előtt talajnedvesség elleni szigetelés készült 2 rétegben.
A ház homlokzata külső szigeteléssel borított és Terranova színezést kapott.
Fűtése gázüzemű kazánról működtetett, radiátoros rendszerű fűtés. Jelen pillanatban tartályos gázról, de a vezetékes gáz rendelkezésre áll. Klíma gondoskodik a megfelelő hűtés -fűtésről a lakószobákban. A tetőtérben beépített szekrények a ház tartozéka. A jó elrendezésű épület több generáció vagy nagyobb család kényelmes otthona lehet. A lakótér alatt 2 gépkocsinak elhelyezés és szerszámoknak tárolási lehetőség. A kertben fedett tároló és egy gazdasági épület melyben szintén 2 gépkocsinak parkolás biztosított. Ebben az épületben egy nyári konyha és egy zuhanyzó biztosítja a kert jobb és kényelmesebb használatát.
A zöld kertvárosi környezet csendes, rendezett. A település teljes infrastruktúrával rendelkezik, közlekedése kiváló. Hévíz 12 km, Keszthely, 16 km, Sümeg szintén 12 km távolságban helyezkedik el.
Itt található a Stupa amely egy egyedülálló budhista szentély, kirándulók kedvenc célpontja. A környezet a kéktúra útvonalán, rengeteg látványossággal és programlehetőséggel várja az idelátogató embereket. A Balaton és a gyógyfürdők közelsége egész évben várja a gyógyulni és kikapcsolódni vágyó vendégeket. Ezt a lehetőséget kínálja ennek az épületnek a megvásárlása.
Az épület per,-teher,-és igény mentes, azonnal birtokba vehető!
Az épület Ytong -30-as falazóelemből és tömör téglából, nyeregtetős fedélszerkezettel épült. A talajnedvesség ellen 2 réteg vastag lemez szigetelés, a padlóban Nikecell, a tetőtérben ásványgyapot szigetelés. A pince feltöltése előtt talajnedvesség elleni szigetelés készült 2 rétegben.
A ház homlokzata külső szigeteléssel borított és Terranova színezést kapott.
Fűtése gázüzemű kazánról működtetett, radiátoros rendszerű fűtés. Jelen pillanatban tartályos gázról, de a vezetékes gáz rendelkezésre áll. Klíma gondoskodik a megfelelő hűtés -fűtésről a lakószobákban. A tetőtérben beépített szekrények a ház tartozéka. A jó elrendezésű épület több generáció vagy nagyobb család kényelmes otthona lehet. A lakótér alatt 2 gépkocsinak elhelyezés és szerszámoknak tárolási lehetőség. A kertben fedett tároló és egy gazdasági épület melyben szintén 2 gépkocsinak parkolás biztosított. Ebben az épületben egy nyári konyha és egy zuhanyzó biztosítja a kert jobb és kényelmesebb használatát.
A zöld kertvárosi környezet csendes, rendezett. A település teljes infrastruktúrával rendelkezik, közlekedése kiváló. Hévíz 12 km, Keszthely, 16 km, Sümeg szintén 12 km távolságban helyezkedik el.
Itt található a Stupa amely egy egyedülálló budhista szentély, kirándulók kedvenc célpontja. A környezet a kéktúra útvonalán, rengeteg látványossággal és programlehetőséggel várja az idelátogató embereket. A Balaton és a gyógyfürdők közelsége egész évben várja a gyógyulni és kikapcsolódni vágyó vendégeket. Ezt a lehetőséget kínálja ennek az épületnek a megvásárlása.
Az épület per,-teher,-és igény mentes, azonnal birtokba vehető!
Regisztrációs szám
H498064
Az ingatlan adatai
Értékesités
eladó
Jogi státusz
használt
Jelleg
ház
Építési mód
ytong
Méret
210 m²
Bruttó méret
358 m²
Telek méret
3 488 m²
Fűtés
Gáz cirkó
Belmagasság
270 cm
Lakáson belüli szintszám
2
Tájolás
Dél-nyugat
Panoráma
Zöldre néző panoráma
Állapot
Jó
Homlokzat állapota
Jó
Pince
Önálló
Környék
csendes, jó közlekedés, zöld
Építés éve
1998
Fürdőszobák száma
2
Garázs
Benne van az árban
Garázs férőhely
4
Víz
Van
Gáz
Van
Villany
Van
Csatorna
Van
Többgenerációs
igen
Tároló
Önálló
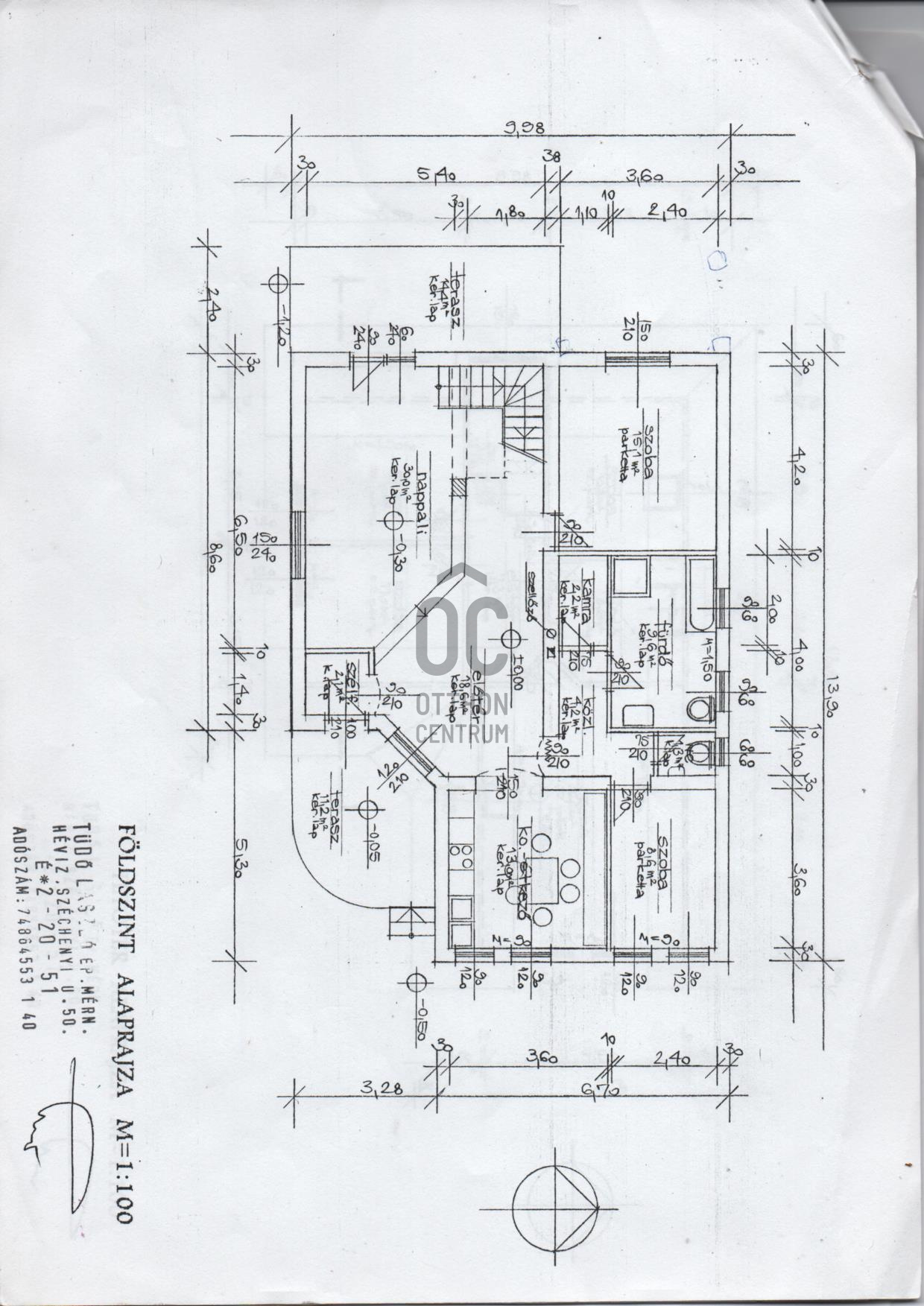
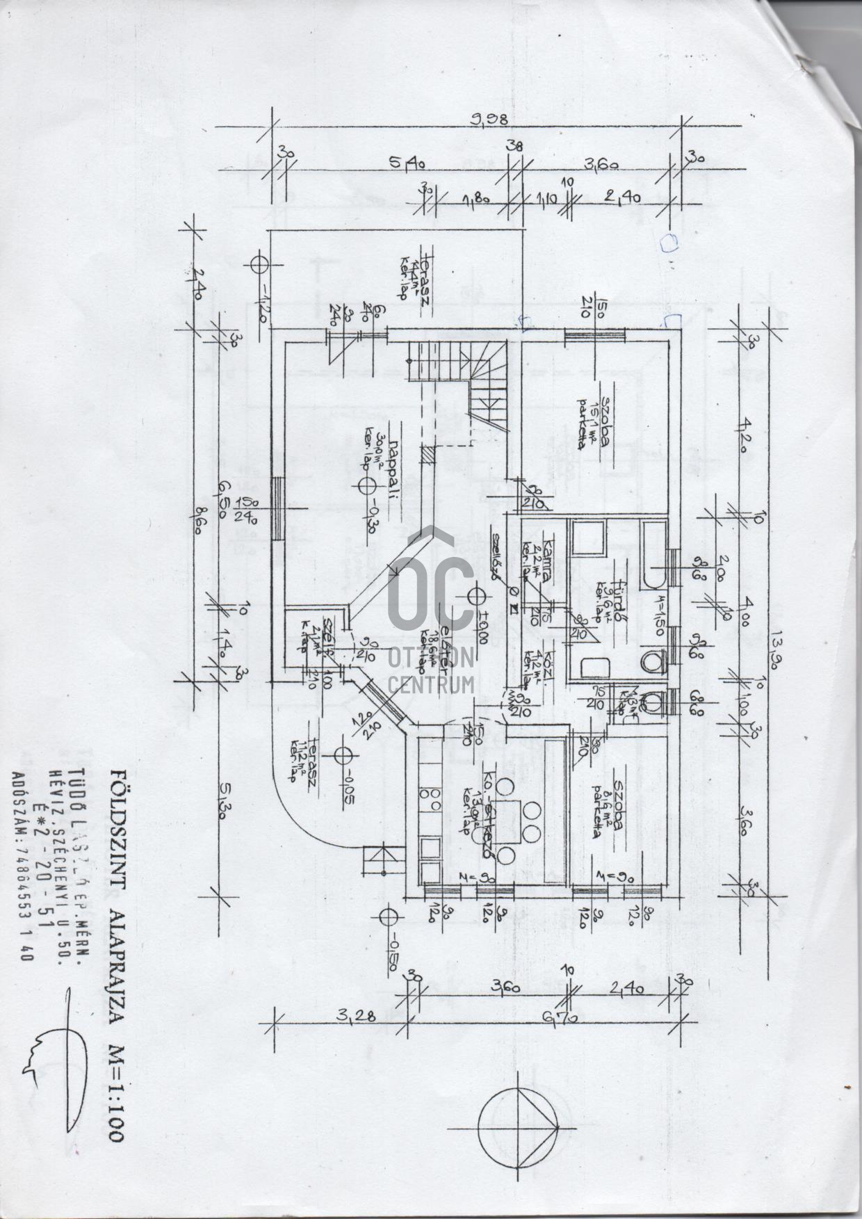
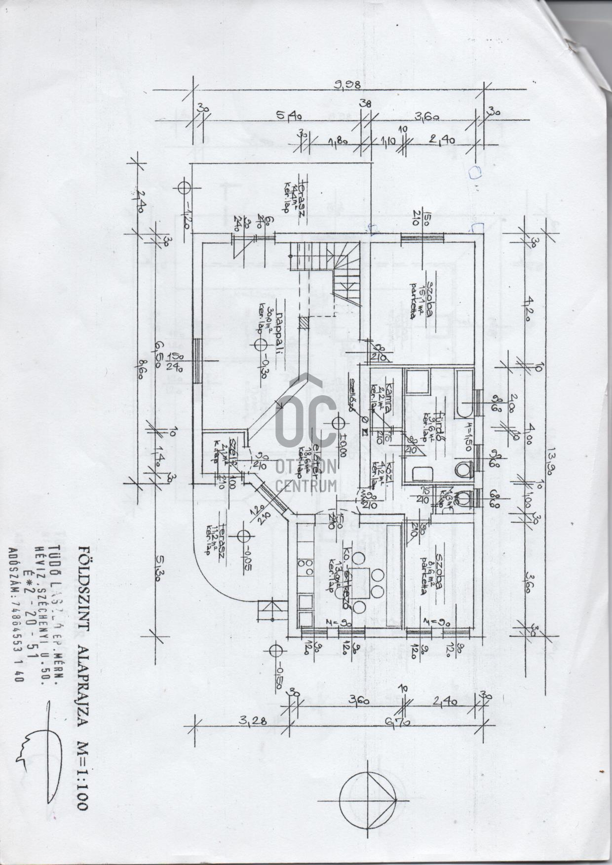
Helyiségek
nappali
30 m²
előszoba
18.6 m²
hálószoba
15.1 m²
hálószoba
8.6 m²
konyha-étkező
13 m²
fürdőszoba
9.6 m²
mosdó
1.3 m²
közlekedő
4.2 m²
terasz
11.2 m²
kamra
2.2 m²