124 800 000 Ft
330 000 €
- 98m²
- 4 szoba
- 1. emelet
Prémium, örökpanorámás otthon eladó Hévíz egyik legkeresettebb családi házas övezetében
Energiahatékony, modern kialakítású, azonnal költözhető lakás saját kerttel és páratlan városi panorámával!
Hévíz nyugodt, exkluzív részén kínáljuk megvételre ezt a 2022-ben épült, családi ház jellegű, kétszintes prémium lakást, amely a telek felső, intim részén helyezkedik el, 245 m² saját kertkapcsolattal. Az ingatlan ideális választás állandó lakhatásra, nyaralónak vagy befektetésnek egyaránt.
FŐBB JELLEMZŐK:
-Hasznos alapterület: 98 m²
-Összterület teraszokkal: közel 150 m²
-Saját kert : 245m²
-Építés éve: 2022
- belső két szintes
-Energetikai besorolás: BB – energiahatékony
MŰSZAKI TARTALOM– hosszú távra tervezve
-Falazat/Szigetelés :30 cm-es Porotherm tégla, 15 cm homlokzati hőszigetelés, 30 cm födémszigetelés
-Minőségi tetőszerkezet cserépfedéssel
-7 kW-os napelemes rendszer (még 7 évig szaldóelszámolással)
-Rendkívül alacsony fenntartási költségek
- Áram erősség : 3x25 A + 1X 32 A
❄️Komfort minden évszakban
-Padlófűtés, elektromos radiátorok
-3 db hűtő-fűtő klíma
-Elektromos melegvíz-ellátás
-3 rétegű üvegezésű műanyag nyílászárók
-Távirányítású, motoros alumínium redőnyök + szúnyoghálók
Helyiségkiosztás – átgondolt, élhető terek
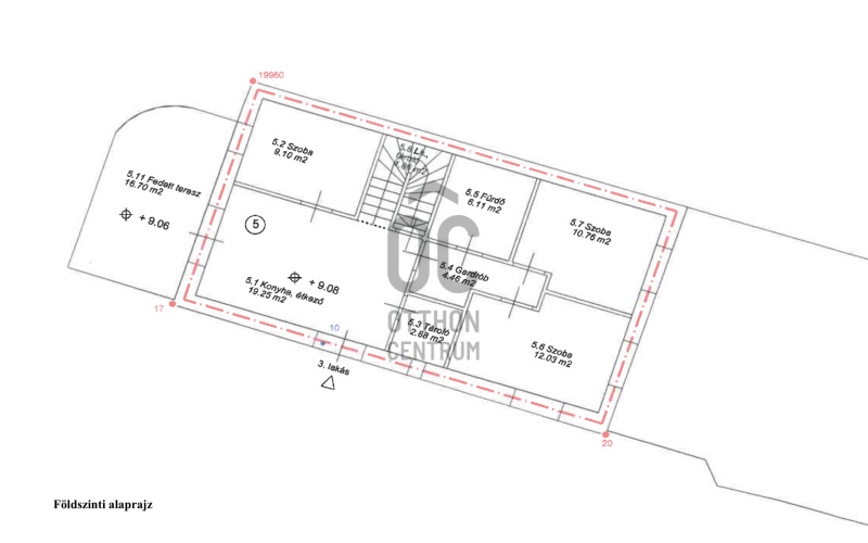
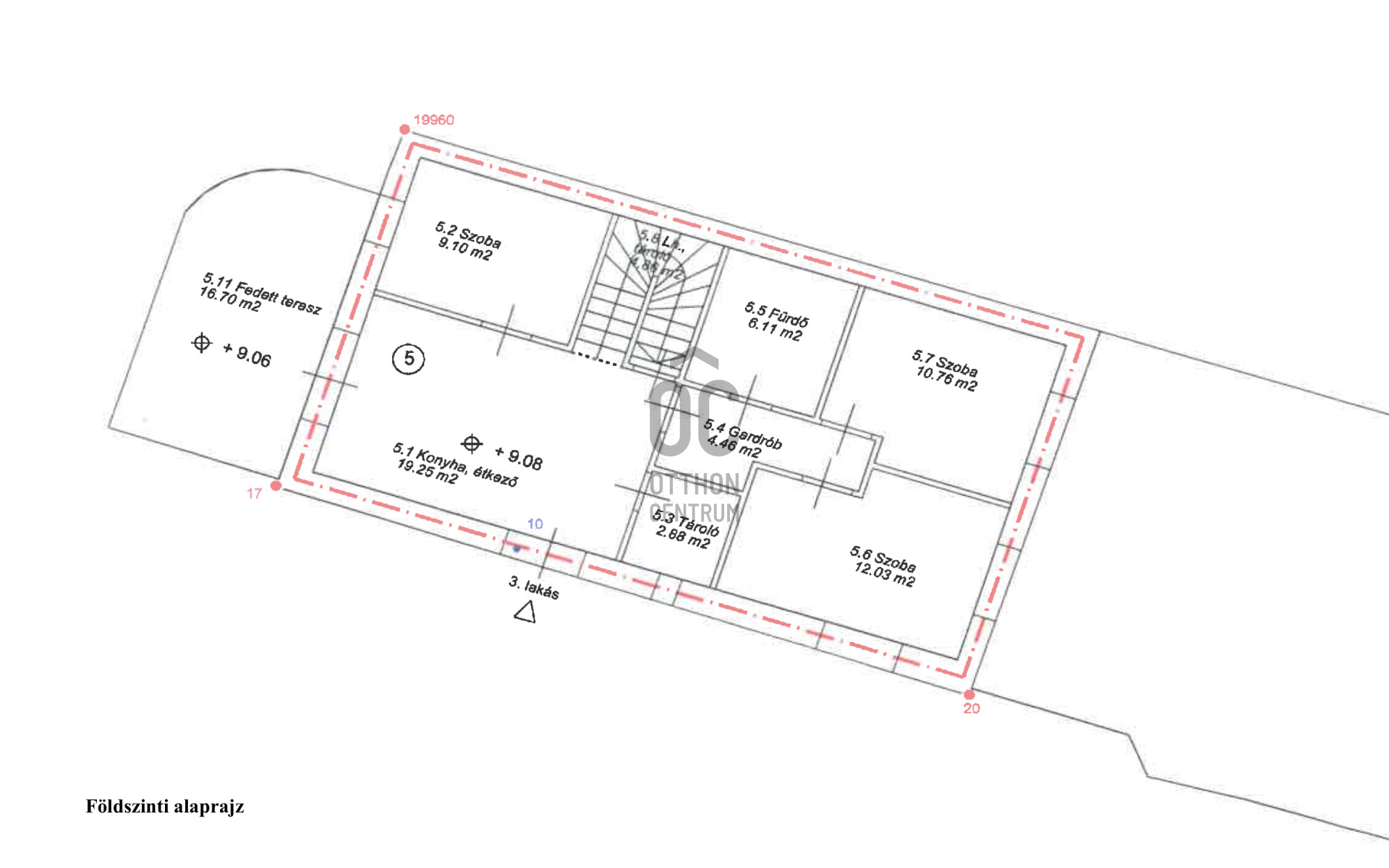
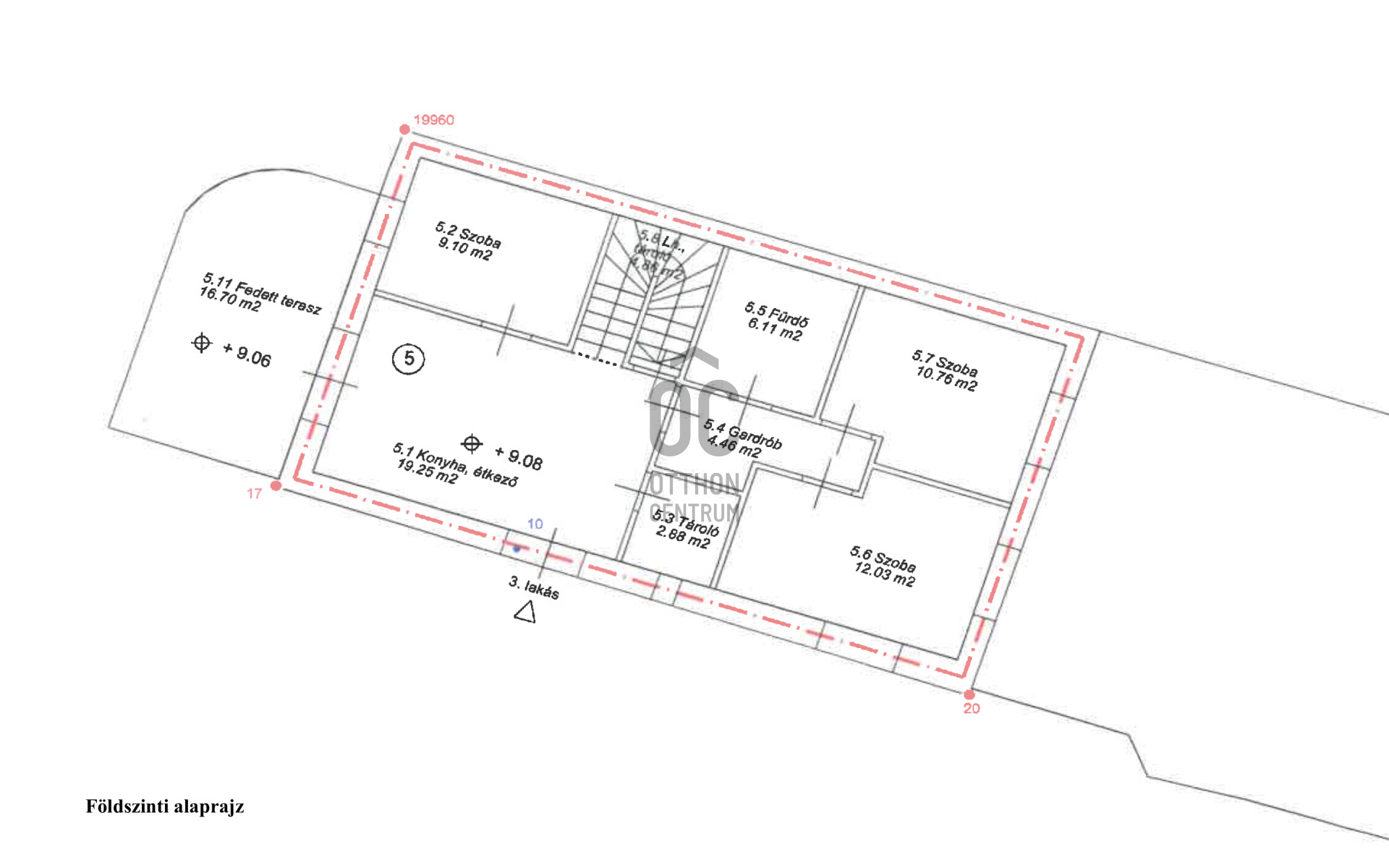
Földszint:
-Konyha–étkező (kertkapcsolattal)
-3 szoba
-Fürdőszoba + WC
-Gardrób, tároló
-18 m²-es fedett terasz
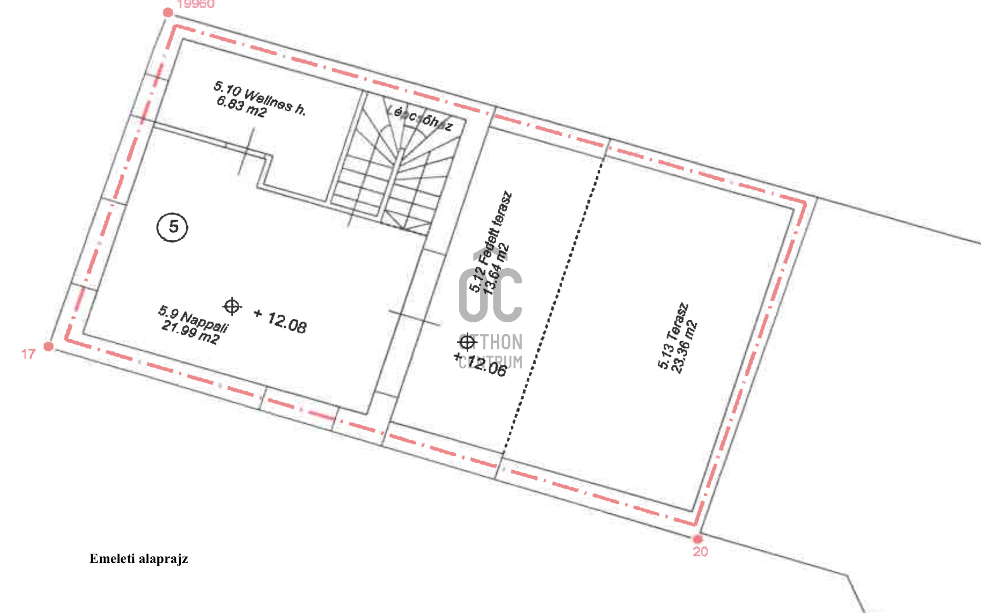
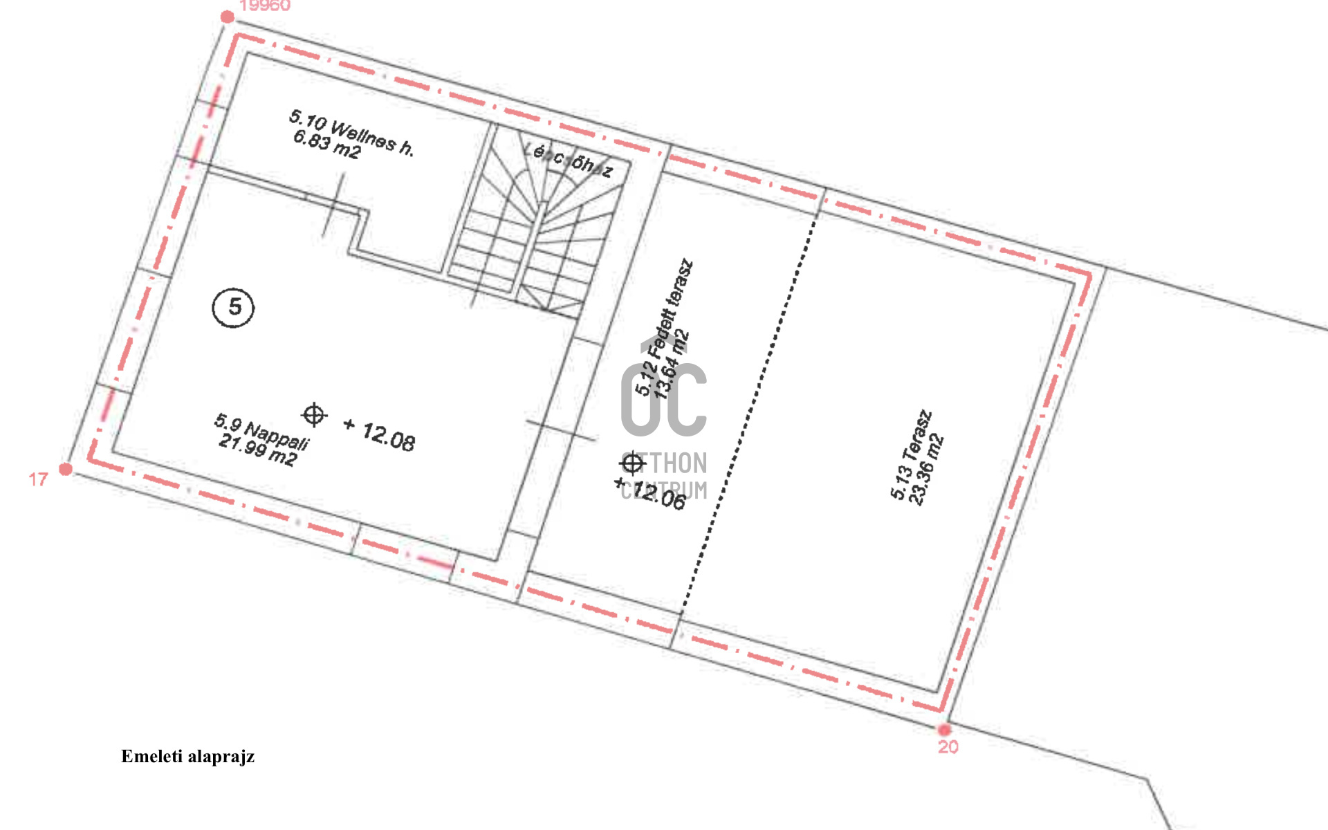
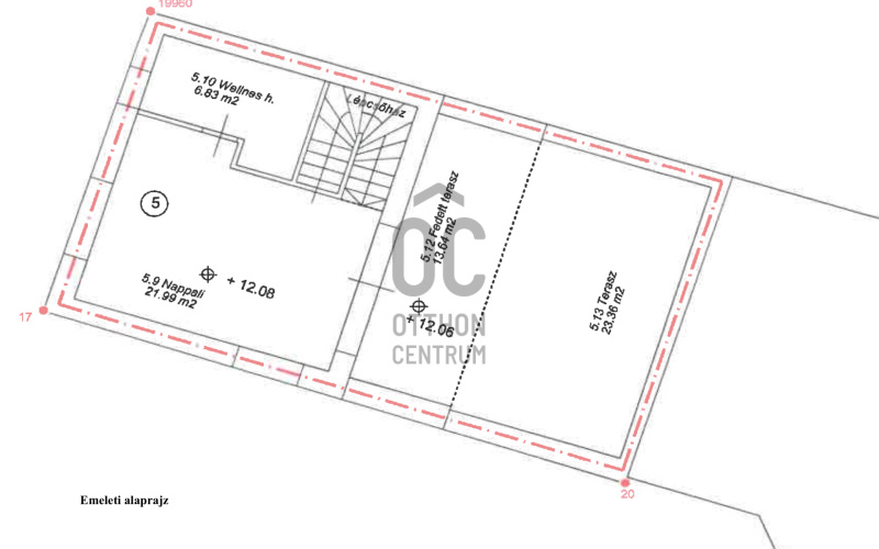
Emelet:
-Tágas nappali
-Fürdőszoba + WC
-36 m²-es panorámás terasz, részben fedett
-grillkonyha, jakuzzi-előkészítés
-lenyűgöző kilátás Hévíz városára ????
Extra előnyök
-22 m²-es fedett gépkocsi-beálló tároló résszel
-Gondozott kert és udvar
-Teljesen elkészült épület (burkolatok, szaniterek, világítás)
-Azonnal költözhető
-Konyhabútor saját igény szerint alakítható az új tulajdonos által
Ez az ingatlan nem kompromisszum, hanem tudatos döntés:
modern technológia, prémium életérzés, örökpanoráma és alacsony rezsi egyetlen otthonban.
Keressen bizalommal további információért vagy megtekintésért – ez a lehetőség ritka Hévízen!
Hévíz nyugodt, exkluzív részén kínáljuk megvételre ezt a 2022-ben épült, családi ház jellegű, kétszintes prémium lakást, amely a telek felső, intim részén helyezkedik el, 245 m² saját kertkapcsolattal. Az ingatlan ideális választás állandó lakhatásra, nyaralónak vagy befektetésnek egyaránt.
FŐBB JELLEMZŐK:
-Hasznos alapterület: 98 m²
-Összterület teraszokkal: közel 150 m²
-Saját kert : 245m²
-Építés éve: 2022
- belső két szintes
-Energetikai besorolás: BB – energiahatékony
MŰSZAKI TARTALOM– hosszú távra tervezve
-Falazat/Szigetelés :30 cm-es Porotherm tégla, 15 cm homlokzati hőszigetelés, 30 cm födémszigetelés
-Minőségi tetőszerkezet cserépfedéssel
-7 kW-os napelemes rendszer (még 7 évig szaldóelszámolással)
-Rendkívül alacsony fenntartási költségek
- Áram erősség : 3x25 A + 1X 32 A
❄️Komfort minden évszakban
-Padlófűtés, elektromos radiátorok
-3 db hűtő-fűtő klíma
-Elektromos melegvíz-ellátás
-3 rétegű üvegezésű műanyag nyílászárók
-Távirányítású, motoros alumínium redőnyök + szúnyoghálók
Helyiségkiosztás – átgondolt, élhető terek
Földszint:
-Konyha–étkező (kertkapcsolattal)
-3 szoba
-Fürdőszoba + WC
-Gardrób, tároló
-18 m²-es fedett terasz
Emelet:
-Tágas nappali
-Fürdőszoba + WC
-36 m²-es panorámás terasz, részben fedett
-grillkonyha, jakuzzi-előkészítés
-lenyűgöző kilátás Hévíz városára ????
Extra előnyök
-22 m²-es fedett gépkocsi-beálló tároló résszel
-Gondozott kert és udvar
-Teljesen elkészült épület (burkolatok, szaniterek, világítás)
-Azonnal költözhető
-Konyhabútor saját igény szerint alakítható az új tulajdonos által
Ez az ingatlan nem kompromisszum, hanem tudatos döntés:
modern technológia, prémium életérzés, örökpanoráma és alacsony rezsi egyetlen otthonban.
Keressen bizalommal további információért vagy megtekintésért – ez a lehetőség ritka Hévízen!
Regisztrációs szám
H512005
Az ingatlan adatai
Értékesités
eladó
Jogi státusz
használt
Jelleg
lakás
Építési mód
tégla
Méret
98 m²
Bruttó méret
110 m²
Terasz / erkély mérete
54 m²
Kert méret
267 m²
Fűtés
egyéb
Belmagasság
270 cm
Lakáson belüli szintszám
2
Tájolás
Dél-nyugat
Lépcsőház típusa
nincs
Állapot
Kiváló
Homlokzat állapota
Kiváló
Lépcsőház állapota
Kiváló
Környék
csendes, jó közlekedés, központi
Építés éve
2022
Fürdőszobák száma
2
Fekvés
udvari
Társaház kert
igen
Garázs
Benne van az árban
Fedett beállók száma
1
Víz
Van
Gáz
Utcán
Villany
Van
Csatorna
Van
Kertkapcsolatos
igen
Helyiségek
konyha-étkező
19.25 m²
szoba
10.76 m²
szoba
9.1 m²
szoba
12.03 m²
gardrób
4.46 m²
tároló
2.88 m²
fürdőszoba-wc
6.11 m²
terasz
16.7 m²
lépcsőház
4.86 m²
nappali
21.99 m²
fürdőszoba-wc
6.83 m²
terasz
13.64 m²
terasz
23.36 m²