190 000 000 Ft
503 000 €
- 200m²
- 7 szoba
Többgenerációs családi ház
Attractive Family Home for Sale in the Heart of Rákosszentmihály!
For sale in the 14th district, Rákosszentmihály area, a spacious, 3-story, 7-room family house, located in a quiet side street, offering numerous opportunities and modern comforts!
Why Rákosszentmihály?
Peaceful, green environment: Perfect for families seeking the harmony of nature while staying close to the city.
Excellent infrastructure: Nearby kindergartens, schools, shopping facilities, and public transportation connections.
Key Features of the Property:
Built in 1992, this brick house sits on a 600 m² plot, fully accessible from all sides.
Multi-generational layout: The separate entrances to each floor provide privacy and comfort for all family members.
Expansion possibilities: The attic can be developed into an additional living space.
Unique Extras:
Semi-basement: A 51 m² garage with space for up to 3 cars, plus a laundry room, pantry, hobby room, bathroom, and WC.
Workshop or additional living space: A 60 m² workshop is located on the plot, equipped with 380V industrial electricity – can be transformed into a garage or a separate apartment.
Floor-by-Floor Layout:
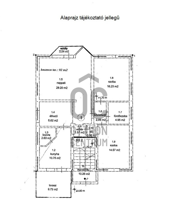
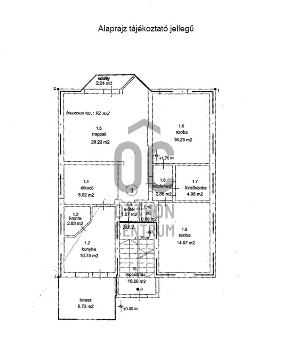
Ground Floor: Living room, 2 bedrooms, kitchen, pantry, dining room, bathroom, and a separate WC.
First Floor: Living room, 2 bedrooms, kitchen, bathroom with WC.
Modern Comforts: Wooden windows, air conditioning, and underfloor heating.
Don’t miss out on this exceptional opportunity! A perfect home in the heart of Rákosszentmihály, offering comfort, functionality, and expansion potential. Live in a dynamic yet tranquil environment, ideal for harmonious family living!
Contact us today to ensure you don’t miss this rare opportunity!
For sale in the 14th district, Rákosszentmihály area, a spacious, 3-story, 7-room family house, located in a quiet side street, offering numerous opportunities and modern comforts!
Why Rákosszentmihály?
Peaceful, green environment: Perfect for families seeking the harmony of nature while staying close to the city.
Excellent infrastructure: Nearby kindergartens, schools, shopping facilities, and public transportation connections.
Key Features of the Property:
Built in 1992, this brick house sits on a 600 m² plot, fully accessible from all sides.
Multi-generational layout: The separate entrances to each floor provide privacy and comfort for all family members.
Expansion possibilities: The attic can be developed into an additional living space.
Unique Extras:
Semi-basement: A 51 m² garage with space for up to 3 cars, plus a laundry room, pantry, hobby room, bathroom, and WC.
Workshop or additional living space: A 60 m² workshop is located on the plot, equipped with 380V industrial electricity – can be transformed into a garage or a separate apartment.
Floor-by-Floor Layout:
Ground Floor: Living room, 2 bedrooms, kitchen, pantry, dining room, bathroom, and a separate WC.
First Floor: Living room, 2 bedrooms, kitchen, bathroom with WC.
Modern Comforts: Wooden windows, air conditioning, and underfloor heating.
Don’t miss out on this exceptional opportunity! A perfect home in the heart of Rákosszentmihály, offering comfort, functionality, and expansion potential. Live in a dynamic yet tranquil environment, ideal for harmonious family living!
Contact us today to ensure you don’t miss this rare opportunity!
Regisztrációs szám
H494083
Az ingatlan adatai
Értékesités
eladó
Jogi státusz
használt
Jelleg
ház
Építési mód
tégla
Méret
200 m²
Bruttó méret
200 m²
Telek méret
578 m²
Terasz / erkély mérete
9 m²
Fűtés
gáz kazán
Belmagasság
290 cm
Lakáson belüli szintszám
3
Tájolás
Dél-nyugat
Állapot
Jó
Homlokzat állapota
Jó
Pince
Önálló
Építés éve
1992
Fürdőszobák száma
3
Garázs
Benne van az árban
Garázs férőhely
3
Víz
Van
Gáz
Van
Villany
Van
Csatorna
Van
Tároló
Önálló
Helyiségek
nappali
29 m²
hálószoba
16 m²
hálószoba
15 m²
konyha
10 m²
ebédlő
8 m²
kamra
3 m²
fürdőszoba
5 m²
közlekedő
3 m²
wc
1 m²
lépcsőház
10 m²
Durucskó Gabriella
Hitelszakértő