800 000 Ft
2 080 €
- 300m²
- 5 szoba
Ideális üzleti lehetőség várja Siófokon!
ÁRCSÖKKENÉS!
SIÓFOK FORGALMAS részén, ÚJ BÉRLŐJÉT várja egy KIVÁLÓ állapotú ÜZLETHELYISÉG, IRODA!
ELHELYEZKEDÉS:
A TELEPÜLÉS BEMUTATÁSA
Siófok, Somogy vármegye északkeleti részén helyezkedik el, második legnépesebb település, területe 124,66 km2,
gyönyörű és élénk város, amely mindig is nagy szerepet játszott a Balaton régió életében, mára pedig a Nyár Fővárosa Magyarországon.
A Balatoni agglomeráció kiemelt települése, amely 24 településből álló Siófoki járás központja. Az itt élő emberek barátságosak és nyitottak.
Siófok azonban nemcsak a nyár legnépszerűbb úti célja minden korosztály számára, hanem komoly üzleti lehetőségekkel rendelkező város is.
Az elmúlt években sok pozitív változás történt Siófokon. Az infrastruktúra fejlesztése, a lakossági szolgáltatások bővülése, valamint
a turizmus fellendülése mind hozzájárultak a város növekedéséhez és fejlődéséhez.
Az INGATLAN ELHELYEZKEDÉSE
Az ingatlan Siófok központi részén helyezkedik el forgalmas csomópont közelében. Megközelíthetősége, elhelyezkedéséből fakadóan kiváló.
Gépjárművel, kerékpárral, gyalogosan, könnyen az egyik legnagyobb forgalmat lebonyolító útszakaszon de gyakorlatilag a település
bármely pontjáról könnyen elérhetjük az ingatlant.
AZ ÉPÜLET ISMERTETÉSE - AZ INGATLAN BEMUTATÁSA
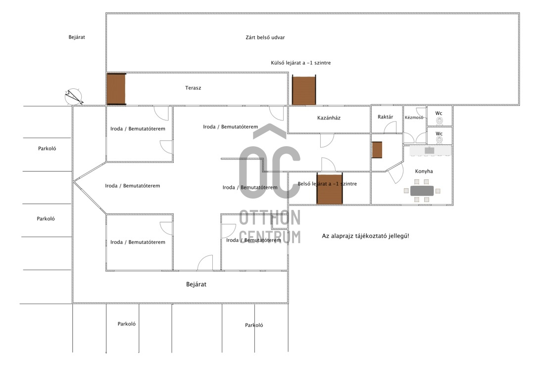
Az épület földszintjén 240m2 es utcai portállal rendelkező, kiváló állapotú, tágas terekkel, irodahelyiségekkel
rendelkező, világos, modern, igényes burkolattal, kialakított üzlet, irodahelyiség.
Valamint az -1 szintjén egy 60m2- es szintén kiváló álapotú, közvetlen a zárt belső
parkolóba kijárattal rendelkező irodahelység található.
-Fűtése: Korszerű Vaillant gáz cirkó, padlófűtéssel + radiátorokkal
-Hűtése: Klímával megoldott
-Saját mérőórákkal felszerelt (villanyóra, vízóra)
-Riasztórendszerrel felszerelt
-Mindkét szinten konyha, mosdók kialakítva
-Parkolás az üzlet elött ingyenesen, illetve az épület hátsó részén zárt udvaron megoldott
-vendéglátó jellegű tevékenységre nem használható!
Mindkét szint kiváló műszaki és esztétikai állapotban van, szerkezetileg stabil, rajta meghibásodásra,
vagy állékonyságát veszélyeztető problémára utaló jelektől mentes.
-Hosszú távra kiadó, minimum 1-év
-2 havi kaucióval és az első havi bérleti díjjal bérbe vehető!
-Bérleti díj: 800.000.-Ft/hó + rezsiköltség
-Azonnal birtokbavehető.
Megtekintés előre egyeztetett időpontban lehetséges.
Amennyiben szeretne egy állandóan forgalmas helyen lévő üzletet, irodát SIÓFOKON hívjon a hét bármely napján!
SIÓFOK FORGALMAS részén, ÚJ BÉRLŐJÉT várja egy KIVÁLÓ állapotú ÜZLETHELYISÉG, IRODA!
ELHELYEZKEDÉS:
A TELEPÜLÉS BEMUTATÁSA
Siófok, Somogy vármegye északkeleti részén helyezkedik el, második legnépesebb település, területe 124,66 km2,
gyönyörű és élénk város, amely mindig is nagy szerepet játszott a Balaton régió életében, mára pedig a Nyár Fővárosa Magyarországon.
A Balatoni agglomeráció kiemelt települése, amely 24 településből álló Siófoki járás központja. Az itt élő emberek barátságosak és nyitottak.
Siófok azonban nemcsak a nyár legnépszerűbb úti célja minden korosztály számára, hanem komoly üzleti lehetőségekkel rendelkező város is.
Az elmúlt években sok pozitív változás történt Siófokon. Az infrastruktúra fejlesztése, a lakossági szolgáltatások bővülése, valamint
a turizmus fellendülése mind hozzájárultak a város növekedéséhez és fejlődéséhez.
Az INGATLAN ELHELYEZKEDÉSE
Az ingatlan Siófok központi részén helyezkedik el forgalmas csomópont közelében. Megközelíthetősége, elhelyezkedéséből fakadóan kiváló.
Gépjárművel, kerékpárral, gyalogosan, könnyen az egyik legnagyobb forgalmat lebonyolító útszakaszon de gyakorlatilag a település
bármely pontjáról könnyen elérhetjük az ingatlant.
AZ ÉPÜLET ISMERTETÉSE - AZ INGATLAN BEMUTATÁSA
Az épület földszintjén 240m2 es utcai portállal rendelkező, kiváló állapotú, tágas terekkel, irodahelyiségekkel
rendelkező, világos, modern, igényes burkolattal, kialakított üzlet, irodahelyiség.
Valamint az -1 szintjén egy 60m2- es szintén kiváló álapotú, közvetlen a zárt belső
parkolóba kijárattal rendelkező irodahelység található.
-Fűtése: Korszerű Vaillant gáz cirkó, padlófűtéssel + radiátorokkal
-Hűtése: Klímával megoldott
-Saját mérőórákkal felszerelt (villanyóra, vízóra)
-Riasztórendszerrel felszerelt
-Mindkét szinten konyha, mosdók kialakítva
-Parkolás az üzlet elött ingyenesen, illetve az épület hátsó részén zárt udvaron megoldott
-vendéglátó jellegű tevékenységre nem használható!
Mindkét szint kiváló műszaki és esztétikai állapotban van, szerkezetileg stabil, rajta meghibásodásra,
vagy állékonyságát veszélyeztető problémára utaló jelektől mentes.
-Hosszú távra kiadó, minimum 1-év
-2 havi kaucióval és az első havi bérleti díjjal bérbe vehető!
-Bérleti díj: 800.000.-Ft/hó + rezsiköltség
-Azonnal birtokbavehető.
Megtekintés előre egyeztetett időpontban lehetséges.
Amennyiben szeretne egy állandóan forgalmas helyen lévő üzletet, irodát SIÓFOKON hívjon a hét bármely napján!
Regisztrációs szám
H489631
Az ingatlan adatai
Értékesités
kiadó
Jogi státusz
használt
Jelleg
üzleti célú
Típus
teljes épület
Építési mód
tégla
Méret
300 m²
Bruttó méret
240 m²
Telek méret
300 m²
Föld feletti nettó méret
300 m²
Fűtés
Gáz cirkó
Belmagasság
270 cm
Lakáson belüli szintszám
2
Tájolás
Dél-nyugat
Állapot
Kiváló
Homlokzat állapota
Kiváló
Lépcsőház állapota
Kiváló
Építés éve
1995
Fürdőszobák száma
2
Víz
Van
Gáz
Van
Villany
Van
Csatorna
Van
Lehetséges funkciók
iroda és bemutatóterem, vagy üzlet
Láthatóság
Forgalmas főútról jól látható
Megközelíthetőseg
Forgalmas főútról nyíló bejárat
Hasznosítás
üres