Eladó családi ház, H485996
Fót, Királydomb

790 000 000 Ft

2 048 000 €

  • 697,3m²
  • 10 szoba
Kiemelt megbízás

Két generációs luxus családi ház Fóton!

Egy exkluzív, prémium kivitelezésű, világos és modern családi házat kínálunk eladásra Fóton. Az ingatlan 645,35 nm alapterületű, egy 2743 nm-es területen helyezkedik el, és 10 szobával, 5 fürdőszobával és 2 garázs férőhellyel rendelkezik.

Az ingatlan városi panorámája páratlan a területen. Környéke csendes és biztonságos, tökéletes hely a pihenésre és a családi életre.

Az eredeti ingatlan 2010-ben épült. A "B" épületet 2017-ben építették, szintén prémium anyagokból. Az ingatlan összesen 3 telken helyezkedik el.

Továbbá két medence található, egy kültéri és egy beltéri. Emelett szauna, jakuzzi és borospince is található benne. Gyönyörűen parkosított kert veszi körbe a házat.

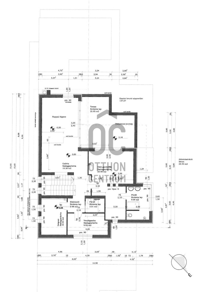
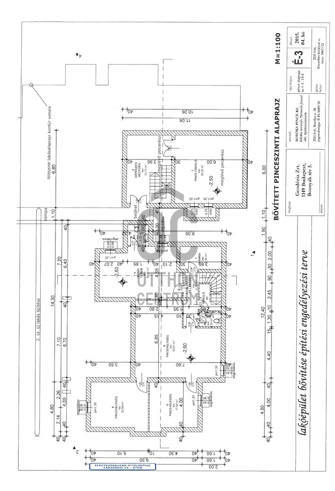
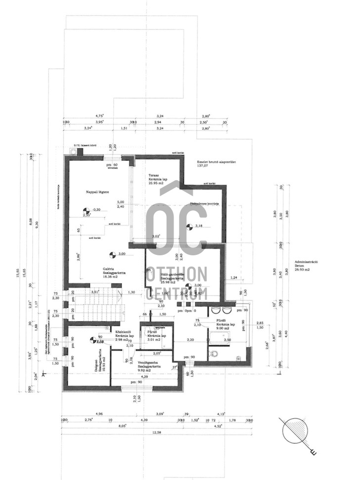
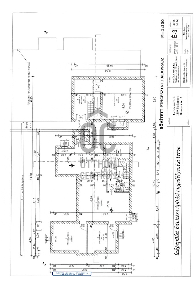
Alapterületek:

"A" épületrész
- pinceszint 59,73 nm
- földszint 205,90 nm
- emelet 80,18 nm
- garázs 36 nm
- teraszok 77,52 nm

"B" épületrész
- pinceszint 138,73 nm
- földszint 124, 81 nm
- teraszok 43,69 nm

Az ingatlanban lévő bútorok külön megegyezés alapján maradhatnak.

Regisztrációs szám

H485996

Az ingatlan adatai

Értékesités
eladó
Jogi státusz
használt
Jelleg
ház
Építési mód
tégla
Méret
697,3 m²
Bruttó méret
766 m²
Telek méret
2 743 m²
Terasz / erkély mérete
121,2 m²
Fűtés
Gáz cirkó
Belmagasság
260 cm
Lakáson belüli szintszám
3
Tájolás
Kelet
Panoráma
városi panoráma
Állapot
Homlokzat állapota
Pince
Önálló
Környék
csendes, zöld
Építés éve
2000
Fürdőszobák száma
5
Garázs
Benne van az árban
Garázs férőhely
2
Víz
Van
Gáz
Van
Villany
Van
Csatorna
Van
Többgenerációs
igen

Helyiségek

tároló
36 m²
tároló
23.73 m²
pince
20.88 m²
pince
17.64 m²
pince
43.61 m²
közlekedő
8.75 m²
wc
2.53 m²
tároló
3.63 m²
kamra
7.56 m²
konditerem
30.81 m²
wc
3.32 m²
garázs
36 m²
gardrób
4.98 m²
gardrób
8.92 m²
gardrób
8.23 m²
hálószoba
16.38 m²
hálószoba
16.86 m²
fürdőszoba
6.6 m²
wc
1.71 m²
háztartási helyiség
5.25 m²
konyha
10.25 m²
kamra
8.33 m²
nappali-konyha
73.09 m²
közlekedő
4.96 m²
tároló
2.15 m²
fürdőszoba
3.12 m²
medencetér
29.1 m²
közlekedő
5.95 m²
előszoba
10.73 m²
nappali
32.57 m²
konyha-étkező
28.46 m²
wc
5.17 m²
dolgozószoba
9.4 m²
hálószoba
14.86 m²
fürdőszoba
5.04 m²
hálószoba
15.2 m²
lépcsőház
3.38 m²
közlekedő
2.98 m²
galéria
18.36 m²
hálószoba
25.98 m²
fürdőszoba
9 m²
hálószoba
9.92 m²
dolgozószoba
10.93 m²
fürdőszoba
3.01 m²
terasz
51.57 m²
terasz
25.95 m²
terasz
43.69 m²

Irodánk kínálatából - XVIII. kerület - Teleki utca

for sale new construction family house

Index image
data_sheet.details.realestate.section.main.otthonstart_flag.label
11

for sale apartment

Index image
data_sheet.details.realestate.section.main.otthonstart_flag.label
27

for sale apartment

Index image
data_sheet.details.realestate.section.main.otthonstart_flag.label
19

for sale family house

Index image
data_sheet.details.realestate.section.main.otthonstart_flag.label
37

for sale new construction family house

Index image
10

for sale apartment

Index image
data_sheet.details.realestate.section.main.otthonstart_flag.label
9

for rent commercial property

Index image
4

for sale apartment

Index image
data_sheet.details.realestate.section.main.otthonstart_flag.label
13

for sale commercial property

Index image
23

for sale new construction family house

Index image
data_sheet.details.realestate.section.main.otthonstart_flag.label
6