Eladó családi ház, H403843
Budapest II/A. kerület, Máriaremete

384 258 600 Ft

990 000 €

  • 365m²
  • 6 szoba

Gyöngyszem az Ördögárokhoz közel

Olyan házat keres, amely építészetileg is szép, de nem hivalkodó, mindig divatos és korszerű marad, otthonos, intim, de mégis jól megközelíthető?
Jöjjön el, tekintse meg velem ezt a fantasztikus adottságú és panorámájú villát, nem fog csalódni.

(A bejáró nyél 209 nm, telek 1219, összesen 1428nm)

Regisztrációs szám

H403843

Az ingatlan adatai

Értékesités
eladó
Jogi státusz
használt
Jelleg
ház
Építési mód
gerendaház
Méret
365 m²
Bruttó méret
430 m²
Telek méret
1 428 m²
Fűtés
Gáz cirkó
Belmagasság
310 cm
Lakáson belüli szintszám
3
Tájolás
Dél
Állapot
Kiváló
Homlokzat állapota
Kiváló
Pince
Önálló
Környék
csendes, zöld
Építés éve
1992
Fürdőszobák száma
3
Víz
Van
Gáz
Van
Villany
Van
Csatorna
Van

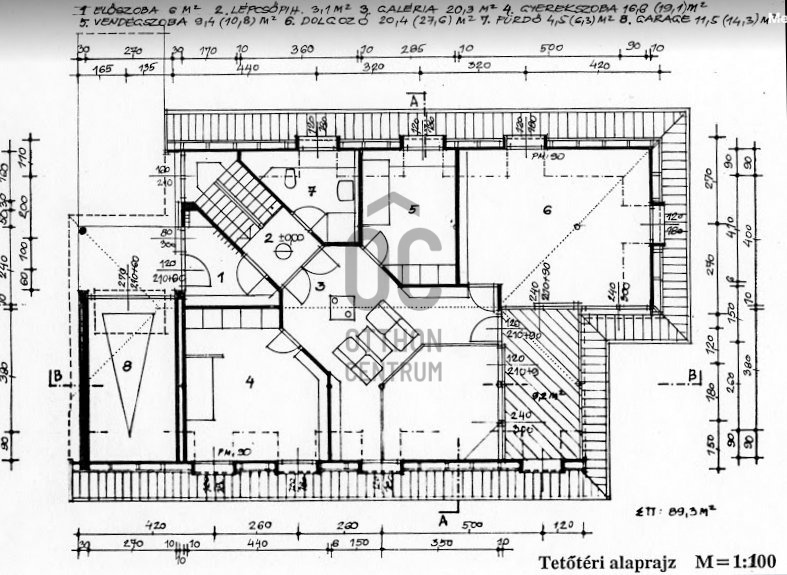
Helyiségek

medencetér
88 m²
egyéb helyiség
11.5 m²
szauna
5.3 m²
egyéb helyiség
4.6 m²
mosdó
4.1 m²
wc
1.4 m²
raktár
4.8 m²
raktár
3 m²
terasz
8.5 m²
lépcsőház
3.1 m²
nappali
48.8 m²
konyha
12.5 m²
háztartási helyiség
13 m²
kamra
5.5 m²
hálószoba
18 m²
gardrób
3.8 m²
fürdőszoba
11.9 m²
mosdó
1.8 m²
wc
1.4 m²
wc
1.1 m²
terasz
12.5 m²
ebédlő
8.5 m²
előszoba
6 m²
lépcsőház
3.1 m²
galéria
20.3 m²
hálószoba
19.1 m²
hálószoba
10.8 m²
dolgozószoba
27.6 m²
fürdőszoba-wc
6.3 m²
garázs
14.3 m²
Helembai Dávid
Helembai Dávid

Hitelszakértő

Irodánk kínálatából - XX. kerület - Sas utca

eladó családi ház

Index image
Elérhető Otthon Start hitellel
21

kiadó lakás

Index image
15

eladó panel lakás

Index image
Elérhető Otthon Start hitellel
15

eladó családi ház

Index image
Elérhető Otthon Start hitellel
17

eladó családi ház

Index image
67

eladó lakás

Index image
18

eladó ikerház

Index image
Elérhető Otthon Start hitellel
11