Elérhető Otthon Start hitellel
Eladó lakás,
DLK013386
Budapest VII. kerület, Középső Erzsébetváros
43 800 000 Ft
116 000 €
- 37,8m²
- 2 szoba
MINIGARZON ELADÓ!
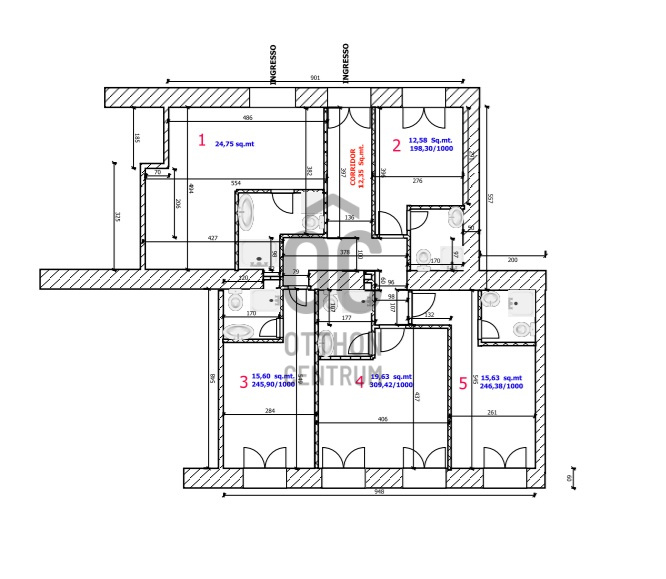
7. kerületben, Szinva utcában, rendezett társasház magasföldszintjén, 89 nm alapterület + 46 nm ingatlan, 5 lakóegységre osztott egyik lakását kínáljuk eladásra.
A felújítás még zajlik, de már rugalmasan megtekinthetőek. 2026 márciusában költözhetőek. Minden lakás konyhával, nappalival, fürdőszobával és galériás hálószobával rendelkezik. 4.2 m. belmagasságával kényelmes otthont biztosít. Észak keleti fekvésű, külön villany és vízórával felszereltek. Az ár tartalmazza a beépített bútorokat.
A lakások külön, ügyvédi megosztással megvásárolhatóak, de az 5 minigarzon egyben is eladó.
1. lakás: 24,7 nm + 13,1 nm galéria
További információkért, megtekintésre, hívjon bizalommal!
7. kerületben, Szinva utcában, rendezett társasház magasföldszintjén, 89 nm alapterület + 46 nm ingatlan, 5 lakóegységre osztott egyik lakását kínáljuk eladásra.
A felújítás még zajlik, de már rugalmasan megtekinthetőek. 2026 márciusában költözhetőek. Minden lakás konyhával, nappalival, fürdőszobával és galériás hálószobával rendelkezik. 4.2 m. belmagasságával kényelmes otthont biztosít. Észak keleti fekvésű, külön villany és vízórával felszereltek. Az ár tartalmazza a beépített bútorokat.
A lakások külön, ügyvédi megosztással megvásárolhatóak, de az 5 minigarzon egyben is eladó.
1. lakás: 24,7 nm + 13,1 nm galéria
További információkért, megtekintésre, hívjon bizalommal!
Regisztrációs szám
DLK013386
Az ingatlan adatai
Értékesités
eladó
Jogi státusz
használt
Jelleg
lakás
Építési mód
tégla
Méret
37,8 m²
Bruttó méret
37,8 m²
Belmagasság
420 cm
Lakáson belüli szintszám
2
Tájolás
Kelet
Lépcsőház típusa
zárt lépcsőház
Állapot
Kiváló
Homlokzat állapota
Jó
Építés éve
1900
Fürdőszobák száma
1
Fekvés
udvari
Közös költség
4000
Helyiségek
nappali-konyha
21.7 m²
fürdőszoba-wc
3 m²
szoba
13.1 m²