349 900 000 Ft
932 000 €
- 343m²
- 6 szoba
Vác legexkluzívabb otthona ahol a luxus és a harmónia találkozik
Vácon, a város egyik legmodernebb, legkedveltebb részén vár rád ez a lenyűgöző, új építésű minimál villa, amely minden négyzetméterében a prémium minőséget, a kifinomult eleganciát és a kényelmet sugározza.
343 m² lakótér, 1200 m² parkosított telek, medence, szauna, 5 autós beálló ez nem csupán egy ház, hanem életérzés.
Ne csak házat keress találd meg az igazi otthonodat, ahol minden részlet rólad szól!
________________________________________
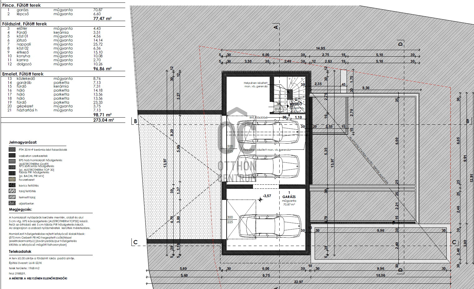
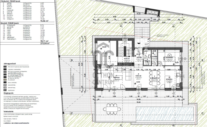
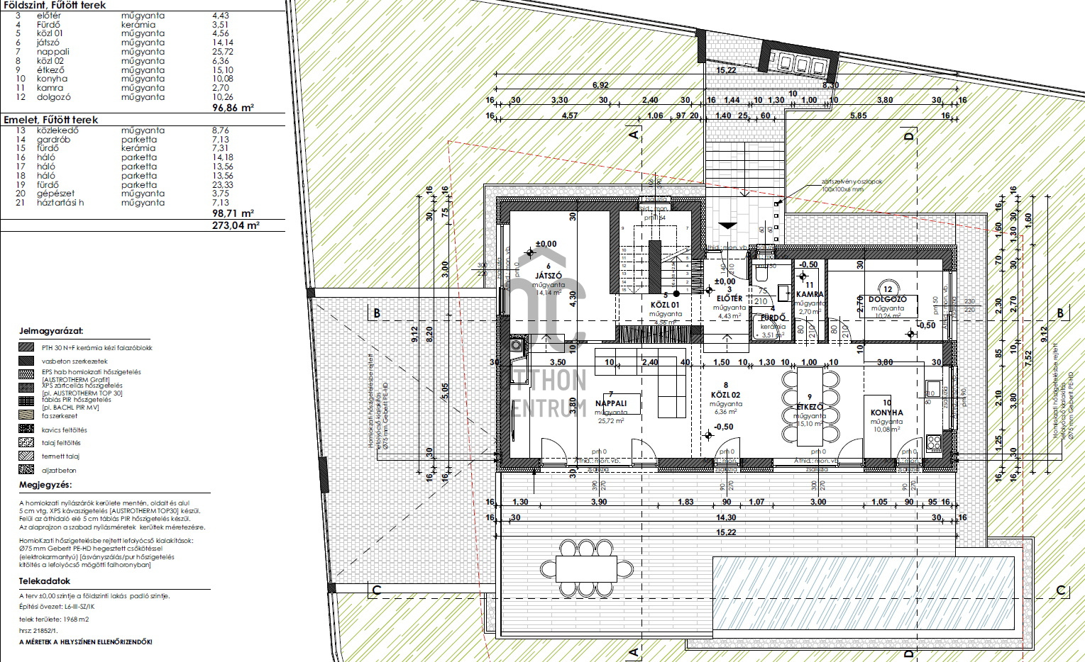
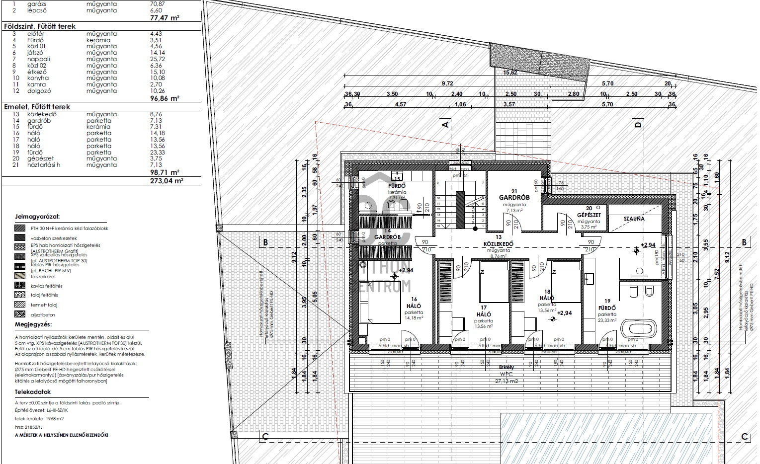
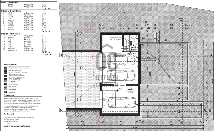
A főépület (273 m²)
77 m²-es, háromállásos garázs
Tágas földszint: amerikai konyhás nappali, étkező, kamra, vendégfürdő, játszósarok (14 m² akár külön szoba is lehet), valamint egy dolgozószoba
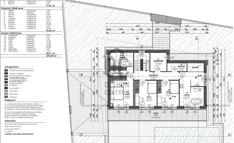
Emelet: szülői lakosztály gardróbbal és privát fürdővel, két gyerekszoba, 23 m²-es fürdő infra szaunával, plusz egy félszoba
________________________________________
Vendégház (70 m²)
36 m²-es apartman (jelenleg konditerem) ideális vállalkozásra, vendégszobának vagy lakrészként
34 m²-es, kétállásos garázs
________________________________________
Kültér & extrák
1200 m² parkosított kert automata öntözőrendszerrel
70 m²-es, részben fedett terasz
9 x 2,5 m beépített, fóliázott úszómedence
30 m²-es emeleti erkély
Beépített infra szauna az emeleti fürdőben
________________________________________
Műszaki tartalom a modern technológia szolgálatában
30-as Porotherm falazat + 16 cm grafitos szigetelés
3 rétegű nyílászárók elektromos zsalúziával
Hővisszanyerős légtechnika, 10 kW napelem
Padlófűtés, klímák, gépesített konyhabútor
Elektromos kapunyitás, kamerás kaputelefon, riasztórendszer
________________________________________
Ez az ingatlan tökéletes választás azoknak, akik nem érik be a hétköznapival.
Itt a modern technológia, a tágas terek és a wellness-élmény valódi otthonná olvad össze.
Ha mindig is arról álmodtál, hogy egy helyen éld meg a luxust, a nyugalmat és a természet közelségét ez az otthon rád vár!
Vácon, a város egyik legmodernebb, legkedveltebb részén vár rád ez a lenyűgöző, új építésű minimál villa, amely minden négyzetméterében a prémium minőséget, a kifinomult eleganciát és a kényelmet sugározza.
343 m² lakótér, 1200 m² parkosított telek, medence, szauna, 5 autós beálló ez nem csupán egy ház, hanem életérzés.
Ne csak házat keress találd meg az igazi otthonodat, ahol minden részlet rólad szól!
________________________________________
A főépület (273 m²)
77 m²-es, háromállásos garázs
Tágas földszint: amerikai konyhás nappali, étkező, kamra, vendégfürdő, játszósarok (14 m² akár külön szoba is lehet), valamint egy dolgozószoba
Emelet: szülői lakosztály gardróbbal és privát fürdővel, két gyerekszoba, 23 m²-es fürdő infra szaunával, plusz egy félszoba
________________________________________
Vendégház (70 m²)
36 m²-es apartman (jelenleg konditerem) ideális vállalkozásra, vendégszobának vagy lakrészként
34 m²-es, kétállásos garázs
________________________________________
Kültér & extrák
1200 m² parkosított kert automata öntözőrendszerrel
70 m²-es, részben fedett terasz
9 x 2,5 m beépített, fóliázott úszómedence
30 m²-es emeleti erkély
Beépített infra szauna az emeleti fürdőben
________________________________________
Műszaki tartalom a modern technológia szolgálatában
30-as Porotherm falazat + 16 cm grafitos szigetelés
3 rétegű nyílászárók elektromos zsalúziával
Hővisszanyerős légtechnika, 10 kW napelem
Padlófűtés, klímák, gépesített konyhabútor
Elektromos kapunyitás, kamerás kaputelefon, riasztórendszer
________________________________________
Ez az ingatlan tökéletes választás azoknak, akik nem érik be a hétköznapival.
Itt a modern technológia, a tágas terek és a wellness-élmény valódi otthonná olvad össze.
Ha mindig is arról álmodtál, hogy egy helyen éld meg a luxust, a nyugalmat és a természet közelségét ez az otthon rád vár!
Regisztrációs szám
DHZ076602
Az ingatlan adatai
Értékesités
eladó
Jogi státusz
használt
Jelleg
ház
Építési mód
tégla
Méret
343 m²
Bruttó méret
343 m²
Telek méret
4 337 m²
Fűtés
egyéb
Lakáson belüli szintszám
2
Tájolás
Dél-nyugat
Állapot
Kiváló
Homlokzat állapota
Kiváló
Építés éve
2022
Fürdőszobák száma
4
Fekvés
udvari
Víz
Van
Gáz
Van
Villany
Van
Csatorna
Van
Helyiségek
közlekedő
4.56 m²
nappali
25.72 m²
közlekedő
6.36 m²
ebédlő
15.1 m²
konyha
10.08 m²
kamra
2.7 m²
közlekedő
8.76 m²
gardrób
7.13 m²
szoba
14.18 m²
szoba
13.56 m²
szoba
13.56 m²
fürdőszoba-wc
23.33 m²
háztartási helyiség
7.13 m²
nappali
9.27 m²
konyha
7.44 m²
szoba
12.65 m²
Bánhegyi Andrea
Hitelszakértő