200 900 000 Ft
535 000 €
- 65m²
- 4 szoba
- 1. emelet
Eladó egy teljesen felújított és berendezett luxus ingatlan, rövidtávú engedéllyel!
A lakás egy belsőépítész-lakberendező által megtervezett és kivitelezett ,letisztult, elegáns otthon a ház első emeletén. Nagyon sok finom és részletes, minőségi munka van benne ezért azt gondolom, hogy igazi kuriózum!! Az ingatlan most készült el, meg teljesen új !!
A képek a valódi állapotot tükrözik, nem látvány képek!!
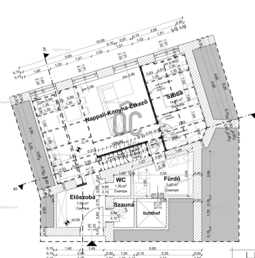
Az ingatlan nagy terekkel rendelkezik, egésznap világos, 4 darab utcafronti ablaka van amik a széles Bihari János utcára néznek.
Az ingatlan központi része a tágas nappali, ahol az egyedi tervezésű, praktikus design konyha a nappali központi része, minőségi Whirlpool beépített konyhagépekkel felszerelve a legmodernebb kompakt munkalappal.
Az előszobában egy nagyméretű gardrób és a 3 hálószobában pedig az egyedileg gyártott szekrények vannak, nagy pakolóterekkel, valamint külön helyiségben van egy épített infraszauna. A fürdőszobában és a külön helyiségben lévő WC -ben is a legmagasabb minőségű burkolatok vannak, valamint minőségi szaniterekkel vannak felszerelve. A fürdőszobában egy szabadonálló kád és egy nagyméretű zuhanyzó, WC és egy két mosdós-design szekrény is található. A csaptelepek Hansgrohe márkájú termékek fekete színű kivitelben. A berendezésben minden prémium minőségű és benne van a teljes dekoráció, 3 darab felső kategóriás ágy, az egyedileg gyártott kanapé, a függönyök és a hatszemélyes étkező garnitúra.
Az alapszínek visszafogott pasztell bézs a kiegészítők és a dekorációk viszont színesek, hogy otthonos legyen, de a mai trendeknek megfelelő.
Külön tervek alapján készült el az egész lakásban megjelenő hangulatvilágitás ami az esti órákban egyedi hangulatot teremt.
A felújítás végig dokumentálva lett, nagyságrendileg a komplett kivitelezés a bútorokkal 80 millió.
Új 3 fázisú mérő van és a falak tégláig vissza lettek bontva, a falak újra vakolva és hangszigetelve vannak. Minden elvégzett munka az 5. kerületi hivatalok engedélyével történt és a kivitelezési idő a bútor gyártásokkal majdnem 2 év alatt valósult meg. Az ablakok prémium minőségben lettek restaurálva, dupla -dupla thermo üvegezéssel, szigeteléssel és egyedi kilincsekkel.
A födémben 10 cm szigetelés van és 7 centiméter szál erősített betonnal került kialakításra.
A szigetelések miatt az ingatan energia igénye rendkívül alacsony!!
Legmodernebb gépészeti megoldás lett alkalmazva és egy nagy teljesítményű klíma berendezés is van a teljes komfort érdekében.
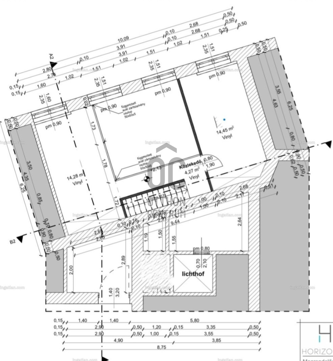
A galéria felett levő belmagasság 192cm.
Az alapterület 65 m2 plusz galéria 35m2
A valóságban 70m2 alapterület plusz 35m2
A lakást ajánlom lakni vagy befektetésre, 4 szobás , szaunás ingatlan frekventált központi helyen!!!
Amennyiben kiadásban gondolkozik, rövid és hosszútávon is lehet hasznosítani, hosszútávú bérlő lenne azonnal, akár a tulajdonos is visszabérelné.
Gyorsan birtokba vehető 1/1 -es hitelmentes ingatlan.
A ház homlokzata szép és a lépcsőház frissen festve.
Ez az ingatlan páratlan hangulatú, kiváló befektetési lehetőség!
Annak aki nem szeretne egy évekig elhúzódó, beláthatatlan feljutásba kezdeni és valóban egy igényesen felújított ingatlant keres, annak érdemes megnézni.
Előre egyeztetett időpontban lehet megtekinteni az ingatlant.
A lakás egy belsőépítész-lakberendező által megtervezett és kivitelezett ,letisztult, elegáns otthon a ház első emeletén. Nagyon sok finom és részletes, minőségi munka van benne ezért azt gondolom, hogy igazi kuriózum!! Az ingatlan most készült el, meg teljesen új !!
A képek a valódi állapotot tükrözik, nem látvány képek!!
Az ingatlan nagy terekkel rendelkezik, egésznap világos, 4 darab utcafronti ablaka van amik a széles Bihari János utcára néznek.
Az ingatlan központi része a tágas nappali, ahol az egyedi tervezésű, praktikus design konyha a nappali központi része, minőségi Whirlpool beépített konyhagépekkel felszerelve a legmodernebb kompakt munkalappal.
Az előszobában egy nagyméretű gardrób és a 3 hálószobában pedig az egyedileg gyártott szekrények vannak, nagy pakolóterekkel, valamint külön helyiségben van egy épített infraszauna. A fürdőszobában és a külön helyiségben lévő WC -ben is a legmagasabb minőségű burkolatok vannak, valamint minőségi szaniterekkel vannak felszerelve. A fürdőszobában egy szabadonálló kád és egy nagyméretű zuhanyzó, WC és egy két mosdós-design szekrény is található. A csaptelepek Hansgrohe márkájú termékek fekete színű kivitelben. A berendezésben minden prémium minőségű és benne van a teljes dekoráció, 3 darab felső kategóriás ágy, az egyedileg gyártott kanapé, a függönyök és a hatszemélyes étkező garnitúra.
Az alapszínek visszafogott pasztell bézs a kiegészítők és a dekorációk viszont színesek, hogy otthonos legyen, de a mai trendeknek megfelelő.
Külön tervek alapján készült el az egész lakásban megjelenő hangulatvilágitás ami az esti órákban egyedi hangulatot teremt.
A felújítás végig dokumentálva lett, nagyságrendileg a komplett kivitelezés a bútorokkal 80 millió.
Új 3 fázisú mérő van és a falak tégláig vissza lettek bontva, a falak újra vakolva és hangszigetelve vannak. Minden elvégzett munka az 5. kerületi hivatalok engedélyével történt és a kivitelezési idő a bútor gyártásokkal majdnem 2 év alatt valósult meg. Az ablakok prémium minőségben lettek restaurálva, dupla -dupla thermo üvegezéssel, szigeteléssel és egyedi kilincsekkel.
A födémben 10 cm szigetelés van és 7 centiméter szál erősített betonnal került kialakításra.
A szigetelések miatt az ingatan energia igénye rendkívül alacsony!!
Legmodernebb gépészeti megoldás lett alkalmazva és egy nagy teljesítményű klíma berendezés is van a teljes komfort érdekében.
A galéria felett levő belmagasság 192cm.
Az alapterület 65 m2 plusz galéria 35m2
A valóságban 70m2 alapterület plusz 35m2
A lakást ajánlom lakni vagy befektetésre, 4 szobás , szaunás ingatlan frekventált központi helyen!!!
Amennyiben kiadásban gondolkozik, rövid és hosszútávon is lehet hasznosítani, hosszútávú bérlő lenne azonnal, akár a tulajdonos is visszabérelné.
Gyorsan birtokba vehető 1/1 -es hitelmentes ingatlan.
A ház homlokzata szép és a lépcsőház frissen festve.
Ez az ingatlan páratlan hangulatú, kiváló befektetési lehetőség!
Annak aki nem szeretne egy évekig elhúzódó, beláthatatlan feljutásba kezdeni és valóban egy igényesen felújított ingatlant keres, annak érdemes megnézni.
Előre egyeztetett időpontban lehet megtekinteni az ingatlant.
Regisztrációs szám
DLK074821
Az ingatlan adatai
Értékesités
eladó
Jogi státusz
használt
Jelleg
lakás
Építési mód
tégla
Méret
65 m²
Bruttó méret
65 m²
Belmagasság
410 cm
Lakáson belüli szintszám
1
Tájolás
Dél-nyugat
Lépcsőház típusa
zárt lépcsőház
Állapot
Kiváló
Homlokzat állapota
Kiváló
Építés éve
1930
Fürdőszobák száma
1
Fekvés
utcai
Közös költség
22500
Lift
van
Helyiségek
szoba
15 m²
szoba
15 m²
szoba
15 m²
nappali-konyha
35 m²
előszoba
7 m²
fürdőszoba-wc
7 m²
wc
2 m²
Bánhegyi Andrea
Hitelszakértő