Elérhető Otthon Start hitellel
Eladó családi ház,
DHZ058669
Pilisszántó
54 900 000 Ft
147 000 €
- 75,7m²
- 3 szoba
Eladó ház gyönyörű panorámával Piliszántón, csendes utcában!
Az erdei környezetben, zsákutcában található hangulatos ház, két szinten kb. 75 nm alapterületű, melyhez még egy 44 nm-es panoráma terasz is tartozik. A telek 987 nm területű, parkosított és kimondottan jó adottságú. A ház szerkezete: részben tégla és részben könnyűszerkezetes (fa). A homlokzat szigetelt, kivülről 10 cm hungarocell szigetelést kapott. A födém szintén 10 cm es szigetléssel rendelkezik. A központi fűtést kondenzációs gázkazán biztosítja. A ház néhány évvel ezelőtt részben fel lett újítva, mely a teljes fűtés korszerűsítését, a nyílászárók cseréjét, szigetelést, víz ás áramhálózat korszerűsítését jelenti, továbbá a jelenlegi beoszás is akkor került kialakításra. Ezen kívül a tető is új ami cseréplemezzel van lefedve. Az ingatlan főleg esztétikai felújítást igényel már.
A ház elrendezése:
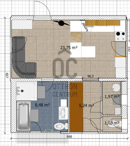
Földszint: Amerikai konyhás nappali és konyha, Fürdőszoba Wc-vel , mely káddal és zuhanykabinnal is rendelkezik. Továbbá előtér a lépcsőfeljáróval, háztartási helyiség és külön Wc.
Tetőtér: 2 hálószoba és közlekedő
Az ingatlanba be van kötve a vezetékes víz, villany és gáz. Csatorna nincs, a szennyvíz emésztőbe távozik. A területen gyűrűs kút is található, mely kiváló lehetőség locsolásra.
A felépítmény gazdasági épület besorolású ki van vonva a művelési ágból, az épület hivatalosan is fel van tűntetve a tulajdoni lapon és a térképmásolaton.
Az ingatlan nem hitelezhető, ezért kézpénzes érdeklődők jelentkezését várjuk.
Keressen bizalommal!
Az erdei környezetben, zsákutcában található hangulatos ház, két szinten kb. 75 nm alapterületű, melyhez még egy 44 nm-es panoráma terasz is tartozik. A telek 987 nm területű, parkosított és kimondottan jó adottságú. A ház szerkezete: részben tégla és részben könnyűszerkezetes (fa). A homlokzat szigetelt, kivülről 10 cm hungarocell szigetelést kapott. A födém szintén 10 cm es szigetléssel rendelkezik. A központi fűtést kondenzációs gázkazán biztosítja. A ház néhány évvel ezelőtt részben fel lett újítva, mely a teljes fűtés korszerűsítését, a nyílászárók cseréjét, szigetelést, víz ás áramhálózat korszerűsítését jelenti, továbbá a jelenlegi beoszás is akkor került kialakításra. Ezen kívül a tető is új ami cseréplemezzel van lefedve. Az ingatlan főleg esztétikai felújítást igényel már.
A ház elrendezése:
Földszint: Amerikai konyhás nappali és konyha, Fürdőszoba Wc-vel , mely káddal és zuhanykabinnal is rendelkezik. Továbbá előtér a lépcsőfeljáróval, háztartási helyiség és külön Wc.
Tetőtér: 2 hálószoba és közlekedő
Az ingatlanba be van kötve a vezetékes víz, villany és gáz. Csatorna nincs, a szennyvíz emésztőbe távozik. A területen gyűrűs kút is található, mely kiváló lehetőség locsolásra.
A felépítmény gazdasági épület besorolású ki van vonva a művelési ágból, az épület hivatalosan is fel van tűntetve a tulajdoni lapon és a térképmásolaton.
Az ingatlan nem hitelezhető, ezért kézpénzes érdeklődők jelentkezését várjuk.
Keressen bizalommal!
Regisztrációs szám
DHZ058669
Az ingatlan adatai
Értékesités
eladó
Jogi státusz
használt
Jelleg
ház
Építési mód
könnyűszerkezetes
Méret
75,7 m²
Bruttó méret
75,7 m²
Telek méret
987 m²
Lakáson belüli szintszám
2
Tájolás
Dél-nyugat
Panoráma
Egyéb
Állapot
Jó
Homlokzat állapota
Jó
Építés éve
1990
Fürdőszobák száma
1
Víz
Van
Gáz
Van
Villany
Van
Helyiségek
nappali-konyha
23.75 m²
fürdőszoba-wc
8.48 m²
háztartási helyiség
1.97 m²
wc
1.03 m²
szoba
18.3 m²
szoba
13.09 m²
Korcsog Melinda
Hitelszakértő