Elérhető Otthon Start hitellel
Eladó újépítésű családi ház,
DHZ045641
Gomba
127 000 000 Ft
330 000 €
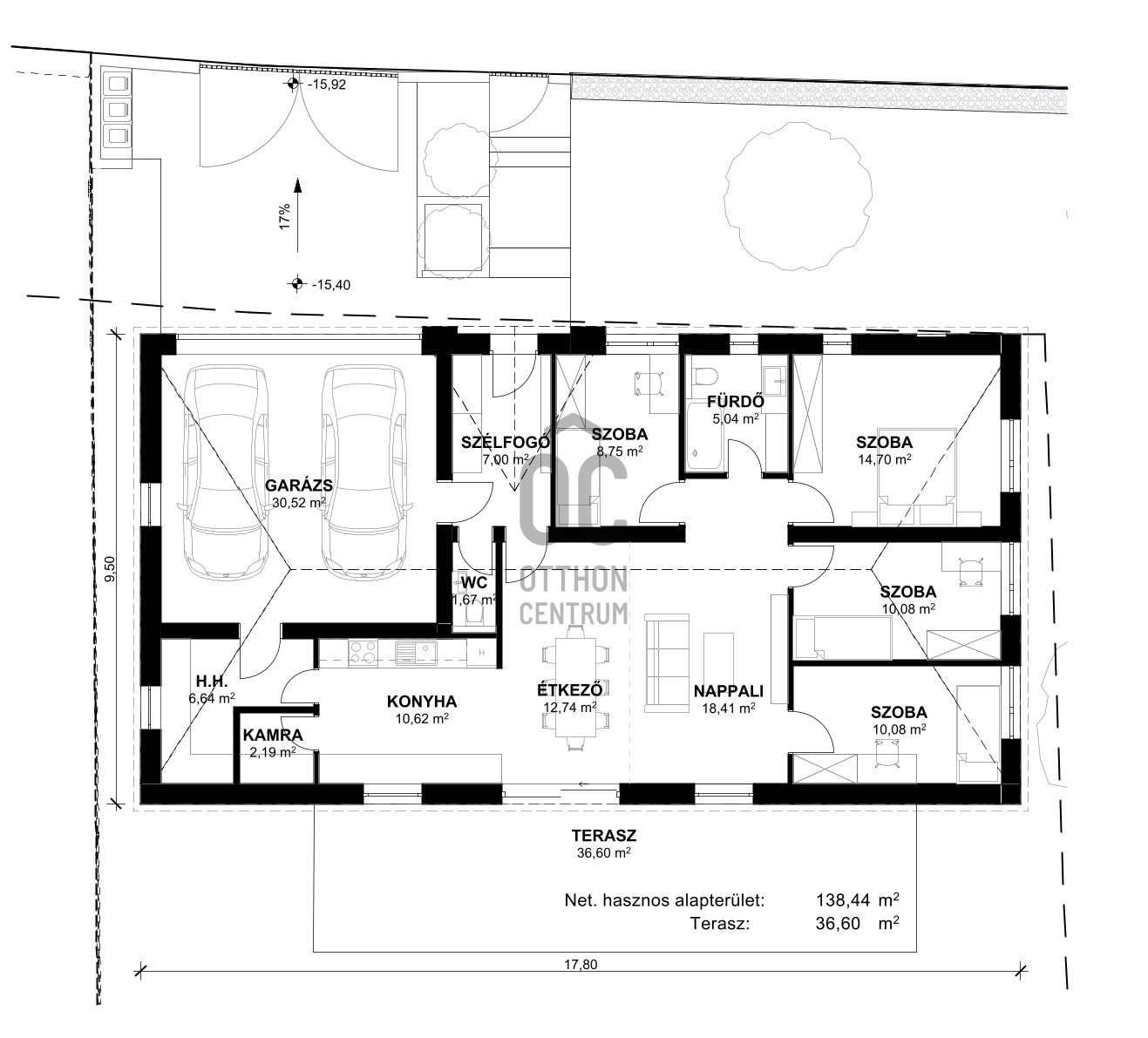
- 138m²
- 5 szoba
Eladásra kínálunk egy 2026-ban épülő, földszintes, 4 szoba + amerikai-konyhás nappalival rendelkező, napfényes, önálló családi házat, amely 2027 tavaszán kerül átadásra, 1000 nm-es telekkel!
Az otthon hőszivattyús fűtésrendszerrel, padlófűtéssel és elektromos törölközőszárító radiátorral a fürdőszobában rendelkezik.
A nappaliban split klíma került beépítésre.
Az udvarra belépve a szemet az utcafronti 3D kerítés, a térkövezett gyalogos és gépkocsi bejáró fogja meg. A gépkocsitárolásról szekcionált garázskapuval ellátott garázs gondoskodik, az elektromos nagykapu tovább növeli a kényelmet. Otthona környezete nemcsak szép, de biztonságos is, köszönhetően a megbízható kivitelezésnek és az elővigyázatosan megtervezett építési anyagoknak, mint a 30 cm vastag Porfix falak, a 15 cm vastag EPS hőszigetelés és a 30 cm vastag üveggyapot tetőhőszigetelés.
Az ingatlanban fehér műanyag 5 kamrás, 3 rétegű üvegezéssel ellátott ablakok garantálják a jó hőszigetelést és a fényáradatot. A belső terek kialakításához magas minőségű, bruttó 10.000 Ft/nm² értékű padló- és csempeburkolatok, valamint bruttó 80.000 Ft/db árú beltéri ajtók kerültek kiválasztásra.
Gomba település egy igazán csodálatos hely, ahol a nyugalom és a természet közelsége mellett a modern életvitel is helyet kap. Az itt épülő ingatlan lehetőséget kínál arra, hogy a város zajától távol, de mégis minden kényelmi szolgáltatáshoz közel élhessen. A kivételes panorámás kilátás, a szép környezet, valamint a kiemelkedő minőségű építkezés garantálja, hogy az új tulajdonosok életminőségben és komfortban egyaránt csak a legjobbat kapják. Gomba így nemcsak egy hely az otthonteremtéshez, hanem egy kapu a harmónikus és tartalmas élethez.
Hitelügyintézés, eladás és vétel teljes körű ügyintézése, ingyenes tanácsadás, értékbecslés, megbízható ügyvédi háttér biztosítása.
Az otthon hőszivattyús fűtésrendszerrel, padlófűtéssel és elektromos törölközőszárító radiátorral a fürdőszobában rendelkezik.
A nappaliban split klíma került beépítésre.
Az udvarra belépve a szemet az utcafronti 3D kerítés, a térkövezett gyalogos és gépkocsi bejáró fogja meg. A gépkocsitárolásról szekcionált garázskapuval ellátott garázs gondoskodik, az elektromos nagykapu tovább növeli a kényelmet. Otthona környezete nemcsak szép, de biztonságos is, köszönhetően a megbízható kivitelezésnek és az elővigyázatosan megtervezett építési anyagoknak, mint a 30 cm vastag Porfix falak, a 15 cm vastag EPS hőszigetelés és a 30 cm vastag üveggyapot tetőhőszigetelés.
Az ingatlanban fehér műanyag 5 kamrás, 3 rétegű üvegezéssel ellátott ablakok garantálják a jó hőszigetelést és a fényáradatot. A belső terek kialakításához magas minőségű, bruttó 10.000 Ft/nm² értékű padló- és csempeburkolatok, valamint bruttó 80.000 Ft/db árú beltéri ajtók kerültek kiválasztásra.
Gomba település egy igazán csodálatos hely, ahol a nyugalom és a természet közelsége mellett a modern életvitel is helyet kap. Az itt épülő ingatlan lehetőséget kínál arra, hogy a város zajától távol, de mégis minden kényelmi szolgáltatáshoz közel élhessen. A kivételes panorámás kilátás, a szép környezet, valamint a kiemelkedő minőségű építkezés garantálja, hogy az új tulajdonosok életminőségben és komfortban egyaránt csak a legjobbat kapják. Gomba így nemcsak egy hely az otthonteremtéshez, hanem egy kapu a harmónikus és tartalmas élethez.
Hitelügyintézés, eladás és vétel teljes körű ügyintézése, ingyenes tanácsadás, értékbecslés, megbízható ügyvédi háttér biztosítása.
Regisztrációs szám
DHZ045641
Az ingatlan adatai
Értékesités
eladó
Jogi státusz
új
Jelleg
ház
Építési mód
egyéb
Méret
138 m²
Bruttó méret
138 m²
Telek méret
1 000 m²
Terasz / erkély mérete
36,6 m²
Fűtés
egyéb
Belmagasság
270 cm
Lakáson belüli szintszám
1
Tájolás
Dél-nyugat
Állapot
Jó
Homlokzat állapota
Jó
Építés éve
2026
Fürdőszobák száma
1
Fekvés
udvari
Víz
Van
Gáz
Utcán
Villany
Van
Csatorna
Utcán
Helyiségek
terasz
36.6 m²
háztartási helyiség
6.64 m²
kamra
2.19 m²
nappali-konyha
41.77 m²
wc
1.67 m²
előszoba
7 m²
szoba
14.7 m²
szoba
8.75 m²
szoba
10.08 m²
szoba
10.08 m²