Elérhető Otthon Start hitellel
Eladó újépítésű ikerház,
DHZ031701
Budapest XXII. kerület, Nagytétény - Óhegy
149 900 000 Ft
382 000 €
- 132m²
- 4 szoba







PRÉMIUM MINIMAL IKERHÁZ ELADÓ A 22.KERÜLETBEN! 3 MÉTERES BELMAGASSÁGGAL !
Budapest 22.kerületének Óhegy keresett részen prémium minőségű ikerház épül. Az épületek dupla fallal és légréssel elválasztva, így semmilyen hang nem zavarhatja a nyugalmát. Szolgalmi úttal
Az ingatlant a 2025-ös év kedvezményes feltételeivel tudja megvásárolni, az építkezés céges.
CSOK Plusz igényelhető és Illeték kedvezmény egyaránt.
Foglalja le már most leendő otthonát 10%-al. Az építkezés hamarosan kezdetét veszi. A környéken rengeteg referencia ház, amit közösen megtekinthetünk, ami segíti a döntést.
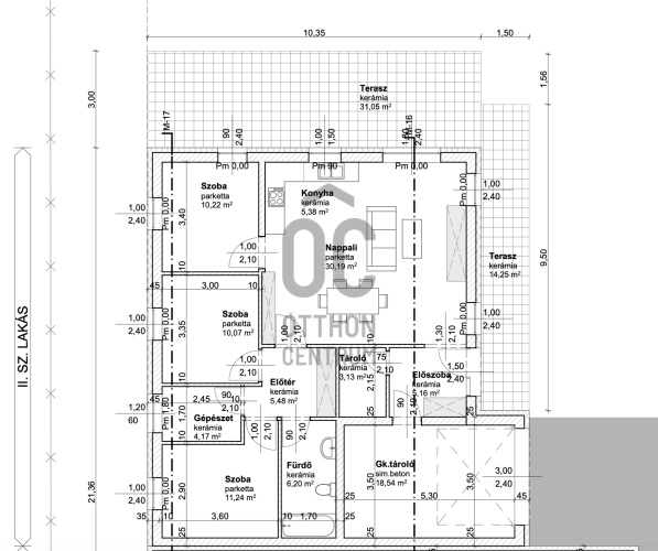
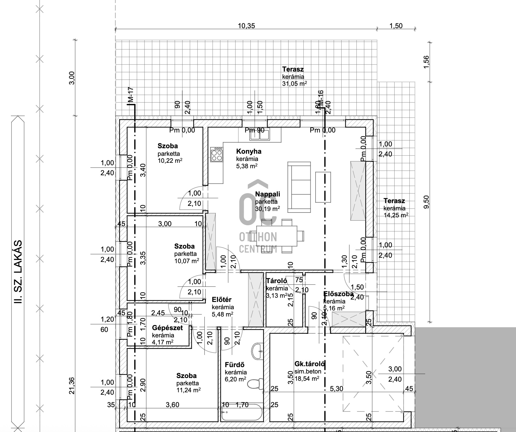
Az ingatlan nettó hasznos lakótér 91,24 m2 + 18,54 m2-es 1 állásos garázs + 45,30 m2 terasz és saját 705 m2 kertkapcsolattal. A helyiségek napfényesek, köszönhetően a jó tájolásnak és a jó méretű egyedi nyílászáróknak.
Elosztását tekintve:
- Előszoba
- 3 jó méretű hálószoba
- Tágas amerikai konyhás nappali
- Fürdőszoba
- Külön mellékhelyiség- Háztartási helyiség
- 45,30 m2 Terasz
- 705 m2-es saját kert
EXTRÁK:
- Mennyezet hűtés-fűtés
Műszaki adatok:
- 30-as Porotherm tégla, 10 cm Ytong válaszfalak
- 15 cm grafitos homlokzati szigetelés
- Panasonic hőszivattyú 300 literes használati meleg víz tartállyal, minden lakásnak külön hőszivattyú berendezés
- H- tarifás mérőszekrény kialakítás
- Minden helyiségben padlófűtés
- Betoncserép
- 3 rétegű 6 légkamrás nyílászárók, kívül antracit kivitelben
- 1 db autónak térkövezett kocsibeálló
- Riasztó előkészítése
- Szaniterek
- Hideg/meleg burkolatok ( 10 000 Ft/m2 meleg: 10 000 Ft/ m2 )
- Beltéri ajtók
- Bejárati ajtó
Ezek mind kiemelkedő minőségben és az átlagnál magasabb áron választhatóak. Árlista tőlem kérhető.Az építkezés megtekintése után minden a házzal kapcsolatos dokumentáció rendelkezésre áll.
Vállalkozó garantáltan megbízható, rugalmas, rengeteg referencia munkával, amit közösen megtudunk tekinteni a nagy döntés előtt.
Környék rendezett, minden perceken belül elérhető. Iskola, óvoda, bevásárlási lehetőségek, MO.
Várható átadás: 2026 Tavasz
További információkért hívjon bizalommal.
Budapest 22.kerületének Óhegy keresett részen prémium minőségű ikerház épül. Az épületek dupla fallal és légréssel elválasztva, így semmilyen hang nem zavarhatja a nyugalmát. Szolgalmi úttal
Az ingatlant a 2025-ös év kedvezményes feltételeivel tudja megvásárolni, az építkezés céges.
CSOK Plusz igényelhető és Illeték kedvezmény egyaránt.
Foglalja le már most leendő otthonát 10%-al. Az építkezés hamarosan kezdetét veszi. A környéken rengeteg referencia ház, amit közösen megtekinthetünk, ami segíti a döntést.
Az ingatlan nettó hasznos lakótér 91,24 m2 + 18,54 m2-es 1 állásos garázs + 45,30 m2 terasz és saját 705 m2 kertkapcsolattal. A helyiségek napfényesek, köszönhetően a jó tájolásnak és a jó méretű egyedi nyílászáróknak.
Elosztását tekintve:
- Előszoba
- 3 jó méretű hálószoba
- Tágas amerikai konyhás nappali
- Fürdőszoba
- Külön mellékhelyiség- Háztartási helyiség
- 45,30 m2 Terasz
- 705 m2-es saját kert
EXTRÁK:
- Mennyezet hűtés-fűtés
Műszaki adatok:
- 30-as Porotherm tégla, 10 cm Ytong válaszfalak
- 15 cm grafitos homlokzati szigetelés
- Panasonic hőszivattyú 300 literes használati meleg víz tartállyal, minden lakásnak külön hőszivattyú berendezés
- H- tarifás mérőszekrény kialakítás
- Minden helyiségben padlófűtés
- Betoncserép
- 3 rétegű 6 légkamrás nyílászárók, kívül antracit kivitelben
- 1 db autónak térkövezett kocsibeálló
- Riasztó előkészítése
- Szaniterek
- Hideg/meleg burkolatok ( 10 000 Ft/m2 meleg: 10 000 Ft/ m2 )
- Beltéri ajtók
- Bejárati ajtó
Ezek mind kiemelkedő minőségben és az átlagnál magasabb áron választhatóak. Árlista tőlem kérhető.Az építkezés megtekintése után minden a házzal kapcsolatos dokumentáció rendelkezésre áll.
Vállalkozó garantáltan megbízható, rugalmas, rengeteg referencia munkával, amit közösen megtudunk tekinteni a nagy döntés előtt.
Környék rendezett, minden perceken belül elérhető. Iskola, óvoda, bevásárlási lehetőségek, MO.
Várható átadás: 2026 Tavasz
További információkért hívjon bizalommal.
Regisztrációs szám
DHZ031701
Az ingatlan adatai
Értékesités
eladó
Jogi státusz
új
Jelleg
ház
Építési mód
tégla
Méret
132 m²
Bruttó méret
132 m²
Telek méret
705 m²
Fűtés
egyéb
Lakáson belüli szintszám
1
Tájolás
Dél-nyugat
Állapot
Jó
Homlokzat állapota
Jó
Építés éve
2025
Fürdőszobák száma
1
Fekvés
udvari
Víz
Van
Villany
Van
Csatorna
Van
Helyiségek
előszoba
5.16 m²
nappali
30.19 m²
konyha
5.38 m²
háztartási helyiség
4.17 m²
szoba
10.22 m²
szoba
10.07 m²
szoba
11.24 m²

Pongó Miklós
Hitelszakértő