ÚJ ÉPÍTÉSŰ MODERN LAKÁSOK A XIII. KERÜLETBEN
ÚJ ÉPÍTÉSŰ MODERN LAKÁSOK A XIII. KERÜLETBEN
Kiváló befektetési és lakhatási lehetőség Budapesten, a XIII. kerület frekventált, de nyugodt részén.
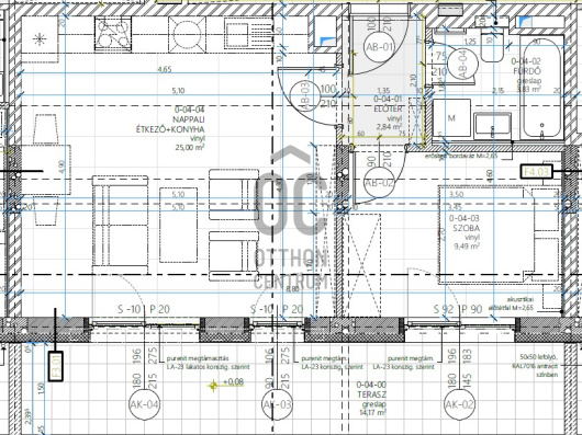
Itt épül egy modern 31 lakásos, pince + földszint + 4 emelet kialakítású, elegáns, liftes társasház!
Műszaki szempontból is a legmodernebb megoldásokat alkalmazzák az építés során, hiszen hőszivattyús fűtés és melegvíz ellátása van a lakásoknak, amihez párosulnak a három rétegű ablakok, és a megfelelő homlokzati szigetelés. Ezáltal a lakások fenntartási költsége nagyon kedvező lesz!
A földszinti lakások egy része kertkapcsolattal rendelkezik, amely ideális választás lehet azoknak a vevőknek, akik kisállattal rendelkeznek vagy zöld környezetre vágynak
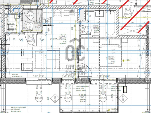
Kiemelt figyelmet érdemel a lakóépület legfelső, negyedik emelete, ahol az utcai és udvari homlokzati falak visszahúzása miatt:
Tágas, napfényes teraszok kerülnek kialakításra.
Penthouse jellegű lakások, melyek ideálisak a különleges hangulatot és kilátást keresők számára.
Lehetőség van garázs beálló hely vásárlására a mélygarázsban, illetve tároló vásárlására is.
Ha akezdeti szakaszban vásárol, akkor még lehetősége van a saját ízlése szerint kiválasztani a burkolatokat, ajtókat, szanitereket stb.
Elhelyezkedés
A Gyöngyösi utca kiváló infrastruktúrával rendelkezik, a közelben minden megtalálható, ami a kényelmes élethez szükséges (vásárlási lehetőségek, közlekedés, szolgáltatások).
Ne maradjon le! Válassza ki álmai otthonát még az építkezés kezdeti szakaszában!
Tervezett átadás 2027 IV. negyedév
További információkért keressen minket bizalommal!
Kiváló befektetési és lakhatási lehetőség Budapesten, a XIII. kerület frekventált, de nyugodt részén.
Itt épül egy modern 31 lakásos, pince + földszint + 4 emelet kialakítású, elegáns, liftes társasház!
Műszaki szempontból is a legmodernebb megoldásokat alkalmazzák az építés során, hiszen hőszivattyús fűtés és melegvíz ellátása van a lakásoknak, amihez párosulnak a három rétegű ablakok, és a megfelelő homlokzati szigetelés. Ezáltal a lakások fenntartási költsége nagyon kedvező lesz!
A földszinti lakások egy része kertkapcsolattal rendelkezik, amely ideális választás lehet azoknak a vevőknek, akik kisállattal rendelkeznek vagy zöld környezetre vágynak
Kiemelt figyelmet érdemel a lakóépület legfelső, negyedik emelete, ahol az utcai és udvari homlokzati falak visszahúzása miatt:
Tágas, napfényes teraszok kerülnek kialakításra.
Penthouse jellegű lakások, melyek ideálisak a különleges hangulatot és kilátást keresők számára.
Lehetőség van garázs beálló hely vásárlására a mélygarázsban, illetve tároló vásárlására is.
Ha akezdeti szakaszban vásárol, akkor még lehetősége van a saját ízlése szerint kiválasztani a burkolatokat, ajtókat, szanitereket stb.
Elhelyezkedés
A Gyöngyösi utca kiváló infrastruktúrával rendelkezik, a közelben minden megtalálható, ami a kényelmes élethez szükséges (vásárlási lehetőségek, közlekedés, szolgáltatások).
Ne maradjon le! Válassza ki álmai otthonát még az építkezés kezdeti szakaszában!
Tervezett átadás 2027 IV. negyedév
További információkért keressen minket bizalommal!