3.kerületi Prémium Újépítésű 3-4 szobás, nagy tera
Megvételre kínálom a 3.kerület Törökkő egy csendes utcájában, egy kétszer négylakásos társasház még megmaradt 6db két és három hálószobás,teraszos lakásait, a következő elosztásban.
A. épület
FSZ./1: 70 nm lakás + 25 nm terasz + kert ELKELT!
1.EM./2: 70 nm lakás + 26,92 nm terasz – 145.7 M Ft
1.EM./3: 68 nm lakás + 26,92 nm terasz – 141.5 M Ft
2.EM./4: 70 nm lakás + 61,44nm terasz – 169,9M Ft
B. épület:
FSZ./1: 70 nm lakás + 25 nm terasz + kert ELKELT!
1.EM./2: 70 nm lakás + 26,92nm terasz – 145,7 M Ft
1.EM./3: 68 nm lakás + 26,92nm terasz – 141,5 M Ft
2.EM./4: 70 nm lakás + 61,44nm terasz – 169,9M Ft
Minden lakáshoz tartozik garázs, melynek ára 10 MFt
Tároló ára: 3 MFt
A lakásokhoz üvegkorláttal ellátott erkélyek, tetőteraszok kapcsolódnak, az utca és hegy felőli oldalon is. Az emeleti lakásokhoz nagyobb teraszok kerültek, míg a kert intenzív növényzettel parkosított.
A projekt tervezése során elsődleges cél volt, hogy az épület külső megjelenésében is luxus minőséget képviseljen, modern és esztétikus vonalvezetésével beleilleszkedjen exkluzív környezetébe.
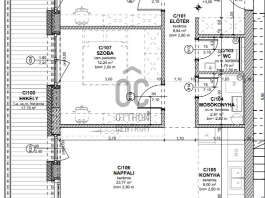
Az ingatlan jól átgondolt alaprajzokkal került kivitelezésre, ugyanakkor a leendő tulajdonosok saját ízlésük szerint még alakíthatják a belső elosztást, valamint kiválaszthatják a burkolatokat, a beltéri ajtókat és a szanitereket.
A társasház lakásai magukban foglalják a prémium kategóriás hideg és meleg burkolatokat, alumínium nyílászárókat és az árnyékolástechnikát is.
A lakások hűtéséről, fűtéséről HŐSZIVATTYÚS HŰTŐ-FŰTŐ RENDSZER gondoskodik. A vevők számára a lakások kulcsrakész állapotban kerülnek átadásra.
A KÖRNYÉK INFRASTRUKTÚRÁJA KIVÁLÓ. A kitűnő elhelyezkedésnek köszönhetően kiváló intézményi infrastruktúra és remek közlekedés jellemzi a környéket. GOBUDA MALL, STOP SHOP 5 percre, Bécsi út, Lidl, Tesco 2 percre Margit-sziget, Árpád híd 1,5-2 km távolságon belül.
Az utcától sétatávolságra elérhető természetvédelmi terület és több kirándulóhely is, de megtalálható a környéken bevásárlóközpont, óvoda/iskola/játszótér.
Jöjjön és helyezze kényelembe magát új otthonában!
Várom szíves hívását a hét minden napján!
A. épület
FSZ./1: 70 nm lakás + 25 nm terasz + kert ELKELT!
1.EM./2: 70 nm lakás + 26,92 nm terasz – 145.7 M Ft
1.EM./3: 68 nm lakás + 26,92 nm terasz – 141.5 M Ft
2.EM./4: 70 nm lakás + 61,44nm terasz – 169,9M Ft
B. épület:
FSZ./1: 70 nm lakás + 25 nm terasz + kert ELKELT!
1.EM./2: 70 nm lakás + 26,92nm terasz – 145,7 M Ft
1.EM./3: 68 nm lakás + 26,92nm terasz – 141,5 M Ft
2.EM./4: 70 nm lakás + 61,44nm terasz – 169,9M Ft
Minden lakáshoz tartozik garázs, melynek ára 10 MFt
Tároló ára: 3 MFt
A lakásokhoz üvegkorláttal ellátott erkélyek, tetőteraszok kapcsolódnak, az utca és hegy felőli oldalon is. Az emeleti lakásokhoz nagyobb teraszok kerültek, míg a kert intenzív növényzettel parkosított.
A projekt tervezése során elsődleges cél volt, hogy az épület külső megjelenésében is luxus minőséget képviseljen, modern és esztétikus vonalvezetésével beleilleszkedjen exkluzív környezetébe.
Az ingatlan jól átgondolt alaprajzokkal került kivitelezésre, ugyanakkor a leendő tulajdonosok saját ízlésük szerint még alakíthatják a belső elosztást, valamint kiválaszthatják a burkolatokat, a beltéri ajtókat és a szanitereket.
A társasház lakásai magukban foglalják a prémium kategóriás hideg és meleg burkolatokat, alumínium nyílászárókat és az árnyékolástechnikát is.
A lakások hűtéséről, fűtéséről HŐSZIVATTYÚS HŰTŐ-FŰTŐ RENDSZER gondoskodik. A vevők számára a lakások kulcsrakész állapotban kerülnek átadásra.
A KÖRNYÉK INFRASTRUKTÚRÁJA KIVÁLÓ. A kitűnő elhelyezkedésnek köszönhetően kiváló intézményi infrastruktúra és remek közlekedés jellemzi a környéket. GOBUDA MALL, STOP SHOP 5 percre, Bécsi út, Lidl, Tesco 2 percre Margit-sziget, Árpád híd 1,5-2 km távolságon belül.
Az utcától sétatávolságra elérhető természetvédelmi terület és több kirándulóhely is, de megtalálható a környéken bevásárlóközpont, óvoda/iskola/játszótér.
Jöjjön és helyezze kényelembe magát új otthonában!
Várom szíves hívását a hét minden napján!