Azonnal költözhető belvárosi, újépítésű lakások!
A belváros egyik legjobb részén a Blaha Lujza tér szomszédságában nappali + 1 hálós és nappali + 2 hálós, modern, energiatakarékos lakások.
Műszaki átadás: 2026.01.31. A projekt műszaki átadása megtörtént!
A beruházó 25 éve markáns szereplője az ingatlanpiacnak. Magas minőségű kivitelezés, több szakmai díjjal elismert fejlesztő.
Ez a projekt ideális választás azoknak, akik a klasszikus belvárosi életérzést és az értékálló, biztos befektetést keresik.
Kiváló közlekedési adottságok éjjel-nappal, minden jelentősebb egyetem 10 perc alatt elérhető. Több pláza néhány perc sétatávolságra, de a Városliget és a Duna part is könnyedén megközelíthető.
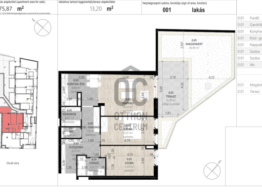
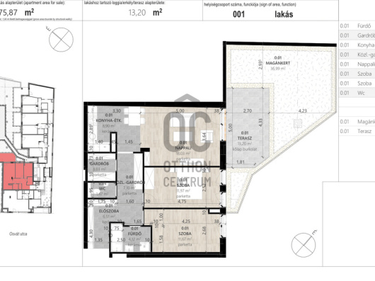
A szomszéd épület alacsony, így a 4. és 5. emeleti belső, kertre néző lakások ablakaiból és teraszáról a kilátást semmi nem gátolja. A 6. emeletről városi panoráma + oldalt a Rózsák terén található templom tornyai láthatók.
A 7. emeleti lakásból pazar városi panoráma és részben a budai hegyek látványa tárul elénk.
Minőség:
Az épület 1. osztályú minőségben készül, 1. osztályú anyagfelhasználással és 1. osztályú építés-szereléssel.
Garancia:
Az épületre a beruházó és a generálkivitelező a jogszabályokban előírt feltételekkel és időtartamokra teljes körű garanciát vállal.
Parkolás:
Beállók opcionálisan vásárolhatók az épület melletti parkolóházban. A két épület a pinceszinten összenyitásra kerül.
Nagy méretű beálló, 5,5x3 méter: 15 millió Ft
Normál beálló, 2,5x 5 méter: 13 millió Ft
Csökkentett méretű beálló, 11 millió Ft
Tárolók 600e Ft/m2-es áron, 5 m2-13m2 méretben
Fűtés-hűtés rendszer
A hűtés fűtést és melegvíz ellátást hőszivattyús rendszer biztosítja.
A Fűtés hűtés rendszer csövei a mennyezetben és padlóban futnak.
A hűtés és fűtés szabályozása lakásonként a tulajdonos által (akár telefonról is) vezérelhető a lakó helyiségekben elhelyezett termosztáttal történik.
A felhasznált hőenergia aránya költségosztással az átfolyt vízmennyiség alapján mérhető.
A társasház energetikai minőségi besorolása A+ kategóriába esik.
Műszaki átadás: 2026.01.31. A projekt műszaki átadása megtörtént!
A beruházó 25 éve markáns szereplője az ingatlanpiacnak. Magas minőségű kivitelezés, több szakmai díjjal elismert fejlesztő.
Ez a projekt ideális választás azoknak, akik a klasszikus belvárosi életérzést és az értékálló, biztos befektetést keresik.
Kiváló közlekedési adottságok éjjel-nappal, minden jelentősebb egyetem 10 perc alatt elérhető. Több pláza néhány perc sétatávolságra, de a Városliget és a Duna part is könnyedén megközelíthető.
A szomszéd épület alacsony, így a 4. és 5. emeleti belső, kertre néző lakások ablakaiból és teraszáról a kilátást semmi nem gátolja. A 6. emeletről városi panoráma + oldalt a Rózsák terén található templom tornyai láthatók.
A 7. emeleti lakásból pazar városi panoráma és részben a budai hegyek látványa tárul elénk.
Minőség:
Az épület 1. osztályú minőségben készül, 1. osztályú anyagfelhasználással és 1. osztályú építés-szereléssel.
Garancia:
Az épületre a beruházó és a generálkivitelező a jogszabályokban előírt feltételekkel és időtartamokra teljes körű garanciát vállal.
Parkolás:
Beállók opcionálisan vásárolhatók az épület melletti parkolóházban. A két épület a pinceszinten összenyitásra kerül.
Nagy méretű beálló, 5,5x3 méter: 15 millió Ft
Normál beálló, 2,5x 5 méter: 13 millió Ft
Csökkentett méretű beálló, 11 millió Ft
Tárolók 600e Ft/m2-es áron, 5 m2-13m2 méretben
Fűtés-hűtés rendszer
A hűtés fűtést és melegvíz ellátást hőszivattyús rendszer biztosítja.
A Fűtés hűtés rendszer csövei a mennyezetben és padlóban futnak.
A hűtés és fűtés szabályozása lakásonként a tulajdonos által (akár telefonról is) vezérelhető a lakó helyiségekben elhelyezett termosztáttal történik.
A felhasznált hőenergia aránya költségosztással az átfolyt vízmennyiség alapján mérhető.
A társasház energetikai minőségi besorolása A+ kategóriába esik.