Eladó újépítésű lakás, P4648-1-0A-04-009
Budapest VII. kerület, Középső Erzsébetváros

81 141 730 Ft

207 000 €

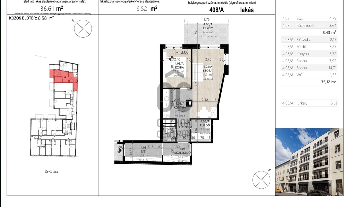
  • 35,1m²
  • 2 szoba
  • 4. emelet

Azonnal költözhető belvárosi, újépítésű lakások!

Az ingatlan a negyedik emeleten található. Kertre néző. Egy helyrajzi számon két különálló lakást alakítottak ki. Ügyvédi megosztással az ingatlanok külön is megvásárolhatók.
Ehhez a laskáshoz egy bruttó 33.91 m2-es garzon tartozik. Ár: 69.000.550 Ft

Regisztrációs szám

P4648-1-0A-04-009

Az ingatlan adatai

Értékesités
eladó
Jogi státusz
új
Jelleg
lakás
Építési mód
tégla
Méret
35,1 m²
Bruttó méret
41,2 m²
Terasz / erkély mérete
6,5 m²
Fűtés
hőszivattyú
Belmagasság
260 cm
Tájolás
Észak-nyugat
Lépcsőház típusa
zárt lépcsőház
Állapot
Kiváló
Homlokzat állapota
Kiváló
Lépcsőház állapota
Kiváló
Építés éve
2026
Fürdőszobák száma
1
Fekvés
kertre néző
Garázs
Külön vásárolható
Víz
Van
Villany
Van
Csatorna
Van
Lift
van

Helyiségek

nappali
1 m²
hálószoba
1 m²
fürdőszoba-wc
1 m²
erkély
6.52 m²
Ruczek Krisztina
Ruczek Krisztina

Hitelszakértő

Irodánk kínálatából - V. kerület - Hild tér

for sale commercial property

Index image
17

for sale apartment

Index image
17

for rent commercial property

Index image
10

for sale apartment

Index image
12

for rent apartment

Index image
12

for sale commercial property

Index image
10

for sale apartment

Index image
22

for sale commercial property

Index image
3

for sale apartment

Index image
19

for sale apartment

Index image
15