Tökéletes választás minden korosztálynak,időseknek, fiataloknak, gyermekes családok számára Fonyódligeten!
Új építésű egész évben használható társasházi lakások Fonyódligeten 200 méterre a Balaton partjától.
A lakópark 3 épületből fog állni.
A "C" épületben még 19 lakóingatlan és 4 üzlethelyiség kerül kialakításra. Ezek az ingatlan egységek a vételár megfizetését követően birtokba vehetőek.
A "B" épületben még 34 lakóingatlan egység kerül kialakításra. A "B" épület várható átadása 2025. március 1-ig megtörténik.
A "A" épületben még 26 lakóingatlan egység kerül kialakításra. A "A" épület várható átadása 2027. január 31-ig megtörténik
Magas minőségben tervezett és készülő modern és kényelmes otthonok várják az új tulajdonosok, akik a pihenéssel töltenék a szabadidejüket és nem karbantartással, kerti munkával. A társasház az emeleti lakásoknak is kényelmesen megközelíthető a lépcsőházban található lifttel. A belső zöld udvar barátságos hangulatos, lazítja az épületek hangulatát. Három épületből az egyik épület átadás előtt áll. Itt még 4 lakás elérhető.
Különleges extrák a pihenéshez a tulajdonosok által használható Tetőteraszra telepített wellness részleg: szauna, jakuzzi páratlan Balatoni panorámával.
A emelt szerkezetkész középső épület tetején wellness kerül kialakításra. A társasház energia ellátás igényeit a tetőre telepített napelemek által megtermelt áram nagy mértékbe csökkenti, így nem kell tartani magas közös költségtől a tulajdonosoknak.
A beruházó, kivitelező cégnek megismerhetők a korábbi referencia munkái.
A "C" épület földszintjén 4 db üzlethelyiség került kialakításra, amelyek várják a vállalkozó szellemű kereskedőket, büfé, kávézó, élelmiszerüzlet vagy más egyéb szolgáltatás. Fonyód központja 3 km távolságra van, így egy vállalkozás az egész évben lakott fonyódiak miatt fenntartható lehet.
Szabad strand és vasútállomás a közelben. M7 autópálya Ordacsehi lehajtó 6 km.
Műszaki tartalomról röviden. (Amennyiben kérdése van a műszaki tartalommal kapcsolatban, a teljes dokumentáció elérhető)
Az épület belső és külső falazata Porotherm tégla falazat, a külső hőszigetelés 15 cm - 20 cm vtg. Kőzetgyapot és EPS lemezrendszer készült.
A homlokzati műanyag belül fehér, kívül színes nyílászárók fokozottan hőszigetelő 3 rétegű üvegezéssel, általában bukó-nyíló kialakítással készültek.
Elektromos ellátás, gyengeáram
- lakáson belül a bejárat közelében fogyasztói és elosztói kapcsolótábla felszerelése kis megszakítókkal, egyfázisú 1*32 A-es becsatlakozás lehetőségével (a teljesítmény
egyedi igények esetén opcionálisan bővíthető)
- a villanyórák a földszinten, egy közös szekrényben kerülnek kiépítésre
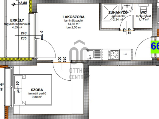
- konnektorok elhelyezése a Nappali 7db, Étkező 2db, Konyha 6db, Szoba 4db, Fürdő 2db, Közlekedő 1db.
Melegvíz ellátás:
- A villanybojlerek lakásonként önállóan, a fürdőkben vagy WC-ben nyertek elhelyezést
A lakások fűtését NIBE típusú vagy ezzel műszakilag egyenértékű levegő-víz hőszivattyúk biztosítják, melyek az épület lapostetőjén kerülnek elhelyezésre.
A lakásokban nedves rendszerű padlófűtési rendszer kerül kialakításra, illetve fűtésrásegítésre, illetve a nyári hűtésre fan-coil berendezések kerülnek felszerelésre a nappalikban, illetve a szobákban. Hőmennyiségmérés távleolvasási rendszerrel kerül leolvasásra. A nyári üzemben a padlófűtési osztó kizárásra kerül, ilyenkor csak a fan-coilok kapnak hűtött közeget. A fürdőkben 1-1db törölközőszárítós csőradiátor is beépítésre kerül a padlófűtés mellett.
Szellőztetés: gépi szellőztetésre a lakások belső terű helyiségeiben van szükség, ezek jellemzően a WC, illetve a fürdő helyiségek. A belső terű helyiségekben HELIOS ELS típusú kürtőbe kötött
ventilátorok kerültek beépítésre.
Miért válassza Fonyódligetet?
Ideális választás minden korosztálynak, akár családoknak, akár fiataloknak egyaránt.
Kiváló közlekedési lehetőségek és infrastruktúra. A közelben Fonyódon, Balatonbogláron, Balatonlellén egész éves programok érhetőek el.
Nyugodt, biztonságos környezet a Balaton közelében.
Tekintse meg új otthonát Fonyódligeten és élvezze a Balaton életstílusát az év minden évszakában!
Új építésű egész évben használható társasházi lakások Fonyódligeten 200 méterre a Balaton partjától.
A lakópark 3 épületből fog állni.
A "C" épületben még 19 lakóingatlan és 4 üzlethelyiség kerül kialakításra. Ezek az ingatlan egységek a vételár megfizetését követően birtokba vehetőek.
A "B" épületben még 34 lakóingatlan egység kerül kialakításra. A "B" épület várható átadása 2025. március 1-ig megtörténik.
A "A" épületben még 26 lakóingatlan egység kerül kialakításra. A "A" épület várható átadása 2027. január 31-ig megtörténik
Magas minőségben tervezett és készülő modern és kényelmes otthonok várják az új tulajdonosok, akik a pihenéssel töltenék a szabadidejüket és nem karbantartással, kerti munkával. A társasház az emeleti lakásoknak is kényelmesen megközelíthető a lépcsőházban található lifttel. A belső zöld udvar barátságos hangulatos, lazítja az épületek hangulatát. Három épületből az egyik épület átadás előtt áll. Itt még 4 lakás elérhető.
Különleges extrák a pihenéshez a tulajdonosok által használható Tetőteraszra telepített wellness részleg: szauna, jakuzzi páratlan Balatoni panorámával.
A emelt szerkezetkész középső épület tetején wellness kerül kialakításra. A társasház energia ellátás igényeit a tetőre telepített napelemek által megtermelt áram nagy mértékbe csökkenti, így nem kell tartani magas közös költségtől a tulajdonosoknak.
A beruházó, kivitelező cégnek megismerhetők a korábbi referencia munkái.
A "C" épület földszintjén 4 db üzlethelyiség került kialakításra, amelyek várják a vállalkozó szellemű kereskedőket, büfé, kávézó, élelmiszerüzlet vagy más egyéb szolgáltatás. Fonyód központja 3 km távolságra van, így egy vállalkozás az egész évben lakott fonyódiak miatt fenntartható lehet.
Szabad strand és vasútállomás a közelben. M7 autópálya Ordacsehi lehajtó 6 km.
Műszaki tartalomról röviden. (Amennyiben kérdése van a műszaki tartalommal kapcsolatban, a teljes dokumentáció elérhető)
Az épület belső és külső falazata Porotherm tégla falazat, a külső hőszigetelés 15 cm - 20 cm vtg. Kőzetgyapot és EPS lemezrendszer készült.
A homlokzati műanyag belül fehér, kívül színes nyílászárók fokozottan hőszigetelő 3 rétegű üvegezéssel, általában bukó-nyíló kialakítással készültek.
Elektromos ellátás, gyengeáram
- lakáson belül a bejárat közelében fogyasztói és elosztói kapcsolótábla felszerelése kis megszakítókkal, egyfázisú 1*32 A-es becsatlakozás lehetőségével (a teljesítmény
egyedi igények esetén opcionálisan bővíthető)
- a villanyórák a földszinten, egy közös szekrényben kerülnek kiépítésre
- konnektorok elhelyezése a Nappali 7db, Étkező 2db, Konyha 6db, Szoba 4db, Fürdő 2db, Közlekedő 1db.
Melegvíz ellátás:
- A villanybojlerek lakásonként önállóan, a fürdőkben vagy WC-ben nyertek elhelyezést
A lakások fűtését NIBE típusú vagy ezzel műszakilag egyenértékű levegő-víz hőszivattyúk biztosítják, melyek az épület lapostetőjén kerülnek elhelyezésre.
A lakásokban nedves rendszerű padlófűtési rendszer kerül kialakításra, illetve fűtésrásegítésre, illetve a nyári hűtésre fan-coil berendezések kerülnek felszerelésre a nappalikban, illetve a szobákban. Hőmennyiségmérés távleolvasási rendszerrel kerül leolvasásra. A nyári üzemben a padlófűtési osztó kizárásra kerül, ilyenkor csak a fan-coilok kapnak hűtött közeget. A fürdőkben 1-1db törölközőszárítós csőradiátor is beépítésre kerül a padlófűtés mellett.
Szellőztetés: gépi szellőztetésre a lakások belső terű helyiségeiben van szükség, ezek jellemzően a WC, illetve a fürdő helyiségek. A belső terű helyiségekben HELIOS ELS típusú kürtőbe kötött
ventilátorok kerültek beépítésre.
Miért válassza Fonyódligetet?
Ideális választás minden korosztálynak, akár családoknak, akár fiataloknak egyaránt.
Kiváló közlekedési lehetőségek és infrastruktúra. A közelben Fonyódon, Balatonbogláron, Balatonlellén egész éves programok érhetőek el.
Nyugodt, biztonságos környezet a Balaton közelében.
Tekintse meg új otthonát Fonyódligeten és élvezze a Balaton életstílusát az év minden évszakában!







