69 990 000 Ft
180 000 €
- 35,5m²
- 2 szoba
- 2. emelet
Modern lakás Fonyódon
Köszöntöm kedves érdeklődőt, aki az ingatlanpiac legújabb ajánlatait böngészi!
Szeretném figyelmébe ajánlani a legfrissebb eladó ingatlanunkat, mely egy vadonatúj lakás Fonyódon. Az ingatlan Somogy vármegyében fekszik, ahol a gyönyörű Balaton-parti város, Fonyód várja az új tulajdonosokat. A környék csendes és biztonságos, így ideális választás bármelyik korosztálynak legyen, idős, középkorú, fiatalkorú vásárlóinknak, akik szeretnének egy nyugodt, kellemes környezetben nem csak pihenni, hanem akár életvitelszerűen élni minden nap.
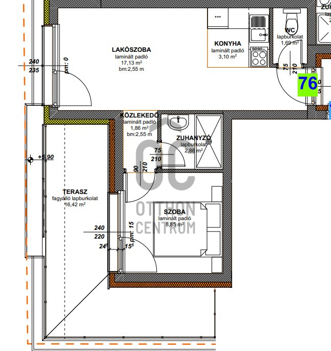
Az ingatlan kiváló állapotban van, 2. emeleti 35,51 nm alapterületű amerikaikonyhás nappali, fürdőszoba-wc helyiséggel rendelkezik. A lakáshoz tartozik egy 16,42 nm erkély. A lakás fűtése és hűtése hőszivattyús rendszerrel történik, így az energiaköltségek alacsonyak és környezetbarát megoldást kínálnak. A környék előnyös adottságai közé tartozik, hogy a közlekedési lehetőségek kiválóak, így akár autóval, akár tömegközlekedéssel is könnyen elérhető. A közeli buszmegállók és vasútállomások lehetővé teszik, hogy könnyen eljuthasson a városközpontba vagy a környező településekbe. A környék további előnyei közé tartozik a gyönyörű természeti környezet, ahol a Balaton és a környező szőlődombok között számos kirándulási lehetőség várja az aktív életmód kedvelőit.
Fizetési ütemezés:
szerződéskötéskor foglaló 10%
Alapozási munkák elkészültekor 20%
II.em.födém betonozásának elkészültekor 30%
Gépészeti, villamos alapszerelés elkészültekor 30%
Műszaki átadást követő 8 nap5%
Jogerős hasz.vételi engedély megszerzését követő 8 nap5%
A várható birtokba adás 2027. január 31-ig megtörténik.
Ha bármilyen kérdése van az ingatlannal kapcsolatban, ne habozzon felvenni velünk a kapcsolatot. Ügyfélszolgálatunk készen áll arra, hogy segítsen Önnek a vásárlási folyamat minden szakaszában. Várjuk érdeklődését!
Szeretném figyelmébe ajánlani a legfrissebb eladó ingatlanunkat, mely egy vadonatúj lakás Fonyódon. Az ingatlan Somogy vármegyében fekszik, ahol a gyönyörű Balaton-parti város, Fonyód várja az új tulajdonosokat. A környék csendes és biztonságos, így ideális választás bármelyik korosztálynak legyen, idős, középkorú, fiatalkorú vásárlóinknak, akik szeretnének egy nyugodt, kellemes környezetben nem csak pihenni, hanem akár életvitelszerűen élni minden nap.
Az ingatlan kiváló állapotban van, 2. emeleti 35,51 nm alapterületű amerikaikonyhás nappali, fürdőszoba-wc helyiséggel rendelkezik. A lakáshoz tartozik egy 16,42 nm erkély. A lakás fűtése és hűtése hőszivattyús rendszerrel történik, így az energiaköltségek alacsonyak és környezetbarát megoldást kínálnak. A környék előnyös adottságai közé tartozik, hogy a közlekedési lehetőségek kiválóak, így akár autóval, akár tömegközlekedéssel is könnyen elérhető. A közeli buszmegállók és vasútállomások lehetővé teszik, hogy könnyen eljuthasson a városközpontba vagy a környező településekbe. A környék további előnyei közé tartozik a gyönyörű természeti környezet, ahol a Balaton és a környező szőlődombok között számos kirándulási lehetőség várja az aktív életmód kedvelőit.
Fizetési ütemezés:
szerződéskötéskor foglaló 10%
Alapozási munkák elkészültekor 20%
II.em.födém betonozásának elkészültekor 30%
Gépészeti, villamos alapszerelés elkészültekor 30%
Műszaki átadást követő 8 nap5%
Jogerős hasz.vételi engedély megszerzését követő 8 nap5%
A várható birtokba adás 2027. január 31-ig megtörténik.
Ha bármilyen kérdése van az ingatlannal kapcsolatban, ne habozzon felvenni velünk a kapcsolatot. Ügyfélszolgálatunk készen áll arra, hogy segítsen Önnek a vásárlási folyamat minden szakaszában. Várjuk érdeklődését!
Regisztrációs szám
P4525-A-01-02-076
Az ingatlan adatai
Értékesités
eladó
Jogi státusz
új
Jelleg
lakás
Építési mód
tégla
Méret
35,5 m²
Bruttó méret
51,9 m²
Terasz / erkély mérete
16,4 m²
Fűtés
hőszivattyú
Belmagasság
255 cm
Lakáson belüli szintszám
2
Tájolás
Nyugat
Lépcsőház típusa
zárt lépcsőház
Állapot
Kiváló
Homlokzat állapota
Kiváló
Lépcsőház állapota
Kiváló
Környék
csendes, jó közlekedés, zöld
Építés éve
2025
Fürdőszobák száma
1
Fekvés
utcai
Társaház kert
igen
Garázs
Külön vásárolható
Víz
Van
Villany
Van
Csatorna
Van
Lift
van
Tároló
Külön vásárolható
Vízpart távolsága
200 méterre
Helyiségek
nappali
17.13 m²
konyha
3.1 m²
wc-kézmosó
1.69 m²
közlekedő
1.86 m²
fürdőszoba
2.88 m²
szoba
8.85 m²
erkély
16.42 m²
Dienes László
Hitelszakértő