649,000,000 Ft
1,728,000 €
- 720m²
Three-story commercial property with a floor area of 720 m² on a 1323 m² plot in District XVI.
I am offering for sale a 720 m² commercial property in an excellent location in the 16th district of Budapest, in Árpádföld, in the immediate vicinity of the M0 motorway,
in an easily accessible area.
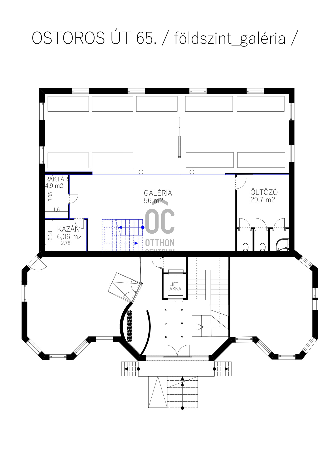
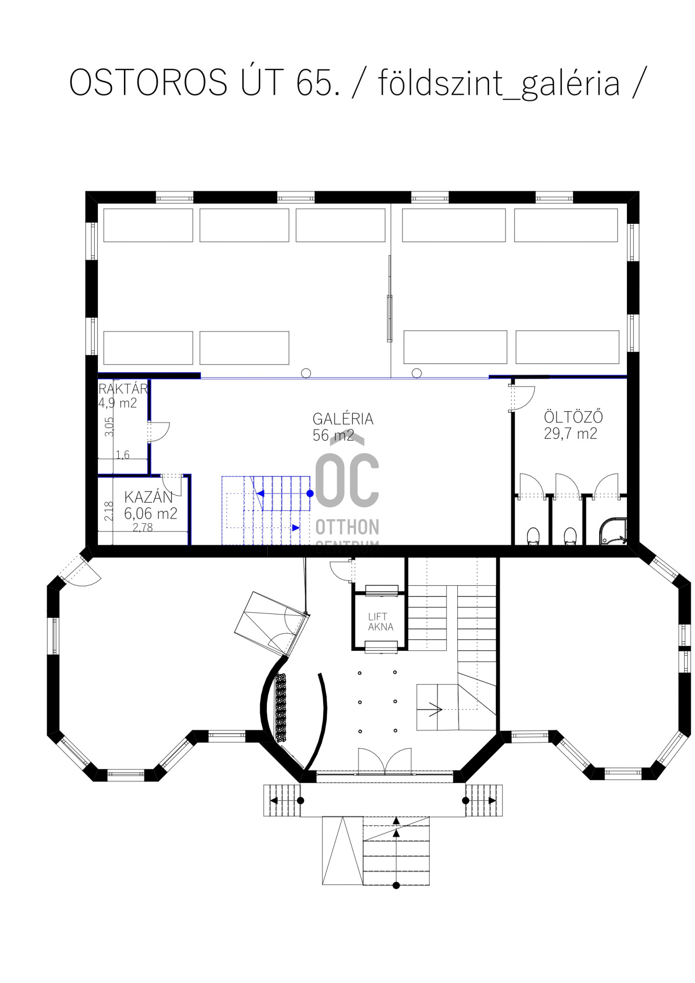
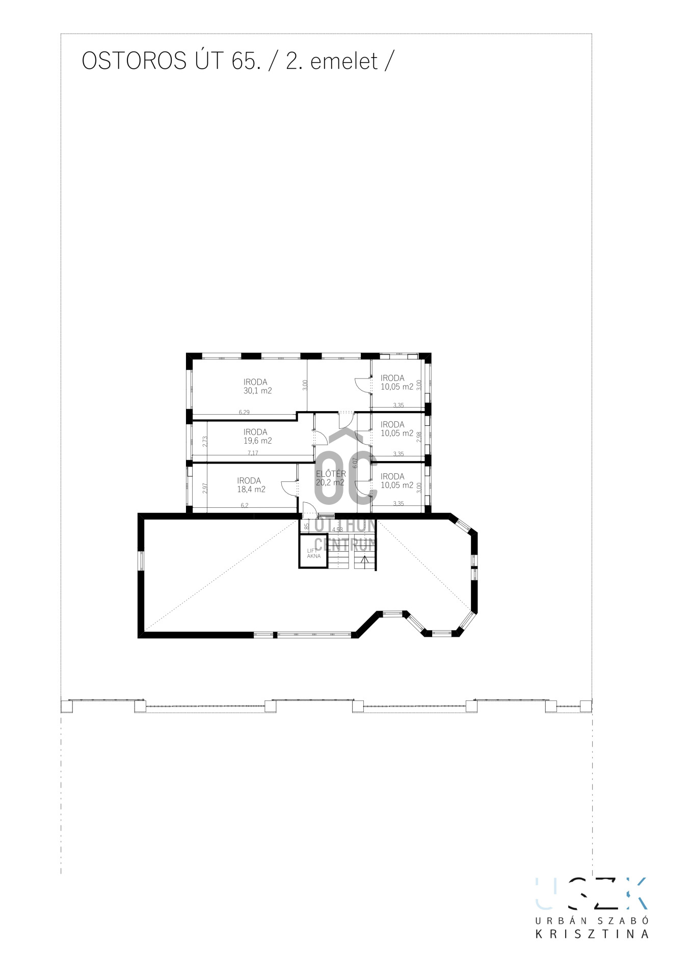
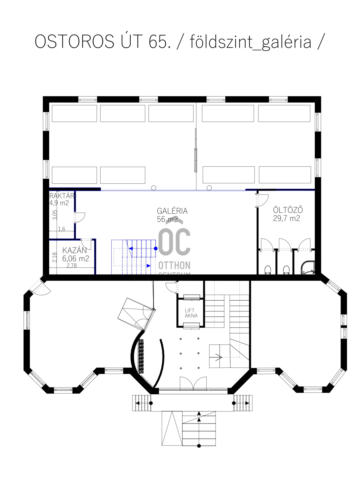
The ground floor and three upper floors of the building have been converted into storage space, offices and meeting rooms, a kitchenette and a dining area.
The building underwent a complete and high-quality renovation in 2023, with modern technical features and an aesthetic design.
Utilities: Industrial electricity, water, and gas connections are available in the building but are currently not in use.
Parking: 20 cars in the courtyard and 10 cars in front of the building, with parking available in the public area.
The building's mechanical equipment is modern and up-to-date: heating and cooling are provided by a heat pump system.
Loading: truck access and loading yard are provided.
Security: camera system, remote monitoring alarm, smoke detectors.
The area is well served socially and in terms of infrastructure, with public transport (bus, HÉV) available within a few minutes.
The building has a server room and a 500 kg passenger lift, which undergoes monthly maintenance.
Possible uses: The property previously served as a high-end corporate headquarters; the many office spaces and large warehouse were ideal for supporting corporate operations,
as well as a logistics and commercial center or sports and leisure facility.
For more information or to schedule a viewing, please contact us.
in an easily accessible area.
The ground floor and three upper floors of the building have been converted into storage space, offices and meeting rooms, a kitchenette and a dining area.
The building underwent a complete and high-quality renovation in 2023, with modern technical features and an aesthetic design.
Utilities: Industrial electricity, water, and gas connections are available in the building but are currently not in use.
Parking: 20 cars in the courtyard and 10 cars in front of the building, with parking available in the public area.
The building's mechanical equipment is modern and up-to-date: heating and cooling are provided by a heat pump system.
Loading: truck access and loading yard are provided.
Security: camera system, remote monitoring alarm, smoke detectors.
The area is well served socially and in terms of infrastructure, with public transport (bus, HÉV) available within a few minutes.
The building has a server room and a 500 kg passenger lift, which undergoes monthly maintenance.
Possible uses: The property previously served as a high-end corporate headquarters; the many office spaces and large warehouse were ideal for supporting corporate operations,
as well as a logistics and commercial center or sports and leisure facility.
For more information or to schedule a viewing, please contact us.
Registration Number
UZ019199
Property Details
Sales
for sale
Legal Status
used
Character
commercial
Type of Business Property
entire building
Construction Method
brick
Net Size
720 m²
Plot Size
1,323 m²
Above-Ground Net Size
720 m²
Heating
heat pump
Ceiling Height
250 cm
Number of Levels Within the Property
4
Condition
Good
Condition of Facade
Good
Water
Available
Electricity
Available
Sewer
Available
Elevator
available
Possible Functions
industrial hall or warehouse, logistics center, sports center, healthcare center, educational center
Visibility
Easily visible from busy main road
Accessibility
Entrance from busy main road
Utilization
vacant
Pados - Burján Renáta Zita
Credit Expert