69,500,000 Ft
184,000 €
- 495m²
DEMJÉNBEN, A FÜRDŐ SZOMSZÉDSÁGÁBAN!
DEMJÉN KÖZPONTJÁBAN, mindössze 150 MÉTERRE A TERMÁL VÖLGY CASCARDE BARLANG- ÉS ÉLMÉNYFÜRDŐTŐL eladó egy NÉGYSZINTES, SZERKEZETKÉSZ ingatlan. Jelenleg magánszálláshely besorolású a tulajdoni lap szerint, de az épület sokféle lehetőséget rejt magában. A végső kialakítás után lehet: vendégház, panzió, vagy akár többlakásos társasház. ÖSSZTERÜLET: 495 M2
KÉSZÜLTSÉGI ÁLLAPOT:
stabil betonalapra épült 38-as téglafalazat
külső falak vakolása és színezése is megtörtént
belső térelválasztó falak elkészültek, bevakoltak
elektromos hálózat kiépítve (4 db villanyóra)
vízvezetékek szintén kiépítve
szigetelt tető
betoncserép fedés
PINCESZINT: 130 m2
Megközelíthető a lépcsőházból és a Hörmann garázskapun keresztül
Betonozott aljzat
Két garázskapu
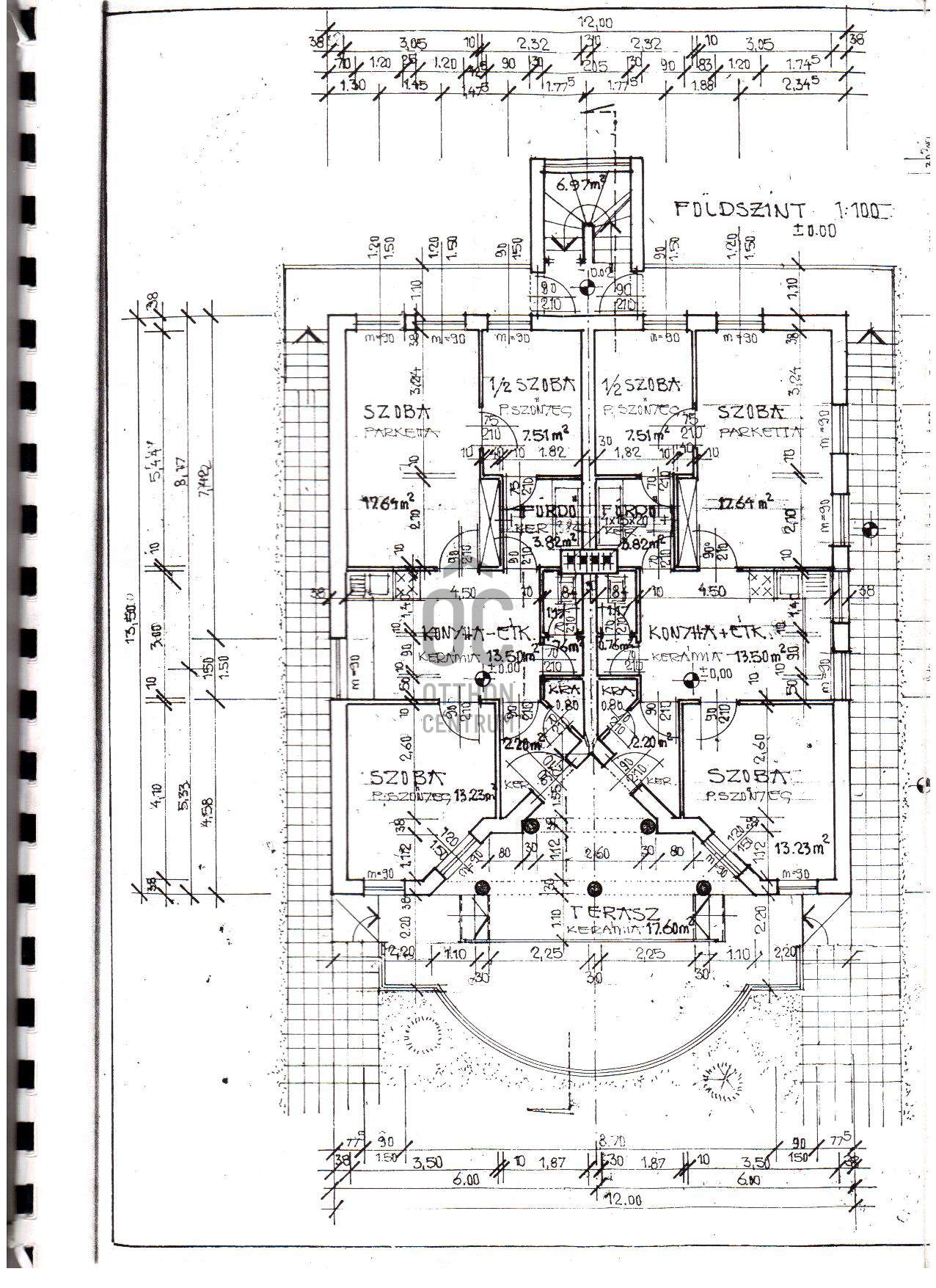
FÖLDSZINT: 130 m2
4 db 1,5 szobás apartman (saját zuhanyzós fürdőszobával, wc-vel) lett kialakítva. A fürdőszoba csempézése megtörtént, de a szerelvényezés még nem . A helyiségeket fa ajtók zárja
Terasz: 30 m2 térkövezett felület
EMELET: 135 m2 Jelenleg két különálló, 67,5 m2-es kétszobás lakás található itt. (Helyiségeik: két szoba, fürdőszoba, WC, konyha, előszoba)
TETŐTÉR: 100 m2
Nagy nappali, konyha, WC, fürdőszoba, két hálószoba és erkély
KÖZMŰVEK: víz, villany (4 villanyóra), csatorna bekötve, gáz telken belül
LOKÁCIÓ: Szinte közvetlenül az ingatlan előtt áll meg az autóbusz. A Termál és Aqua Park 150 méter távolságban található és egész évben üzemel. A környéken található borospincék lehetőséget adnak borkostolóra. Kiváló kirándulóhelyek találhatók a közelben.
Eger 11 km távolságra fekszik. Az Egerszalóki Termál Fürdő és Sódomb 3 km-en belül található.
Ha felkeltette érdeklődését a hirdetésünk, kérem, keressen minket bizalommal!
#eger#befektetés#magánszálláshely#Demjén#szerkezetkész#ingatlan#fürdő#turisztika
KÉSZÜLTSÉGI ÁLLAPOT:
stabil betonalapra épült 38-as téglafalazat
külső falak vakolása és színezése is megtörtént
belső térelválasztó falak elkészültek, bevakoltak
elektromos hálózat kiépítve (4 db villanyóra)
vízvezetékek szintén kiépítve
szigetelt tető
betoncserép fedés
PINCESZINT: 130 m2
Megközelíthető a lépcsőházból és a Hörmann garázskapun keresztül
Betonozott aljzat
Két garázskapu
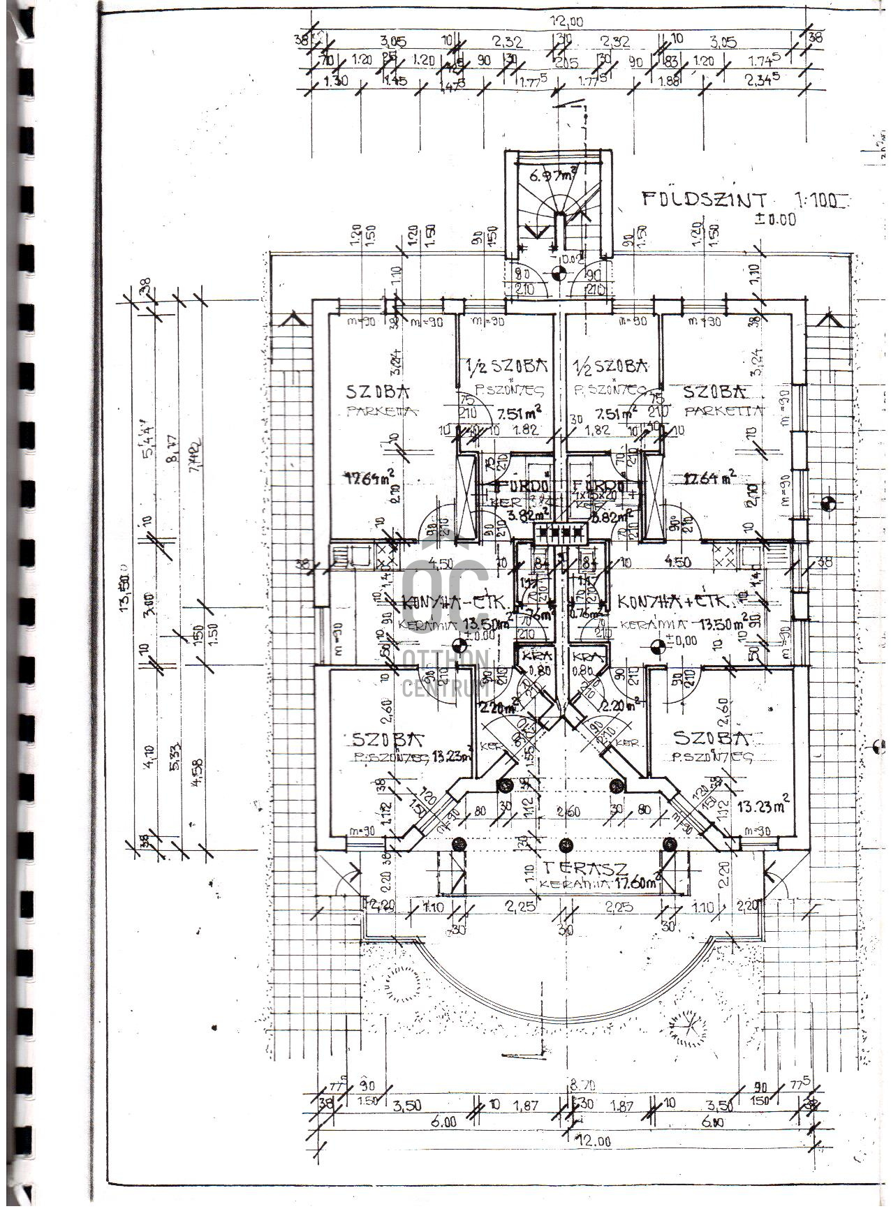
FÖLDSZINT: 130 m2
4 db 1,5 szobás apartman (saját zuhanyzós fürdőszobával, wc-vel) lett kialakítva. A fürdőszoba csempézése megtörtént, de a szerelvényezés még nem . A helyiségeket fa ajtók zárja
Terasz: 30 m2 térkövezett felület
EMELET: 135 m2 Jelenleg két különálló, 67,5 m2-es kétszobás lakás található itt. (Helyiségeik: két szoba, fürdőszoba, WC, konyha, előszoba)
TETŐTÉR: 100 m2
Nagy nappali, konyha, WC, fürdőszoba, két hálószoba és erkély
KÖZMŰVEK: víz, villany (4 villanyóra), csatorna bekötve, gáz telken belül
LOKÁCIÓ: Szinte közvetlenül az ingatlan előtt áll meg az autóbusz. A Termál és Aqua Park 150 méter távolságban található és egész évben üzemel. A környéken található borospincék lehetőséget adnak borkostolóra. Kiváló kirándulóhelyek találhatók a közelben.
Eger 11 km távolságra fekszik. Az Egerszalóki Termál Fürdő és Sódomb 3 km-en belül található.
Ha felkeltette érdeklődését a hirdetésünk, kérem, keressen minket bizalommal!
#eger#befektetés#magánszálláshely#Demjén#szerkezetkész#ingatlan#fürdő#turisztika
Registration Number
UZ017051
Property Details
Sales
for sale
Legal Status
new
Character
commercial
Type of Business Property
entire building
Construction Method
brick
Net Size
495 m²
Plot Size
1,230 m²
Above-Ground Net Size
495 m²
Ceiling Height
270 cm
Number of Levels Within the Property
4
View
Green view
Condition
Average
Condition of Facade
Average
Number of Covered Parking Spots
2
Water
Available
Electricity
Available
Sewer
Available
Possible Functions
hotel, guesthouse, hostel, other
Visibility
Easily visible from busy main road
Accessibility
Entrance from busy main road
Utilization
vacant