5,400,000 Ft
15,090 €
- 2,700m²
Egy jó üzlet...
Egy jó üzletet akar nyitni?
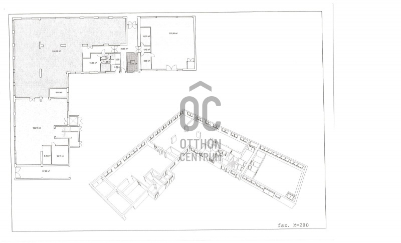
Ha nagy méretben gondolkodik, itt bérelhet egy kitűnő állapotban lévő épületben Angyalföld kedvelt részén 3 szinten 2700 m2 hasznos alapterületű ingatlant. Ehhez egy 14 beállóval rendelkező belső udvart, valamint raktározásra nagy belmagasságú 150 m2 alapterületű tárolóépületet, valamint további pincei tárolóhelyiségeket is kap.
Az ingatlan újszerű állapota és jó alaprajzi kialakítása miatt sokrétűen felhasználható mind ipari, kereskedelmi illetve irodai funkcióra.
Három szintjén külön-külön is kialakíthat egységeket, a komplexum azonban egyben kiadó.
Üzletház, bútorüzlet, földszintjén élelmiszerüzlet, emeletén irodák, vagy bármilyen más könnyűipari funkció kialakítható.
Az épület felújított központi fűtéses rendszerrel, saját kazánnal rendelkezik, homlokzatai hőszigeteltek, új, hőszigetelt műanyag nyílászárókkal vannak ellátva. Az épület kívül elegáns, rendezett képet mutat, belsője exkluzív közösségi terekkel és az Ön igénye szerint kialakítható bérlőterületekkel rendelkezik.
Az ingatlan bérleti díja 18.000€/hó, kaució 3 hónap. Üzemeltetés mérőórák és megegyezés szerint. A továbbiakat személyesen...
Ha hasonló méretben gondolkodik, tekintse meg az ingatlant és képzelje bele vállalkozását! Ebben tudok segíteni, várom hívását!
Ha nagy méretben gondolkodik, itt bérelhet egy kitűnő állapotban lévő épületben Angyalföld kedvelt részén 3 szinten 2700 m2 hasznos alapterületű ingatlant. Ehhez egy 14 beállóval rendelkező belső udvart, valamint raktározásra nagy belmagasságú 150 m2 alapterületű tárolóépületet, valamint további pincei tárolóhelyiségeket is kap.
Az ingatlan újszerű állapota és jó alaprajzi kialakítása miatt sokrétűen felhasználható mind ipari, kereskedelmi illetve irodai funkcióra.
Három szintjén külön-külön is kialakíthat egységeket, a komplexum azonban egyben kiadó.
Üzletház, bútorüzlet, földszintjén élelmiszerüzlet, emeletén irodák, vagy bármilyen más könnyűipari funkció kialakítható.
Az épület felújított központi fűtéses rendszerrel, saját kazánnal rendelkezik, homlokzatai hőszigeteltek, új, hőszigetelt műanyag nyílászárókkal vannak ellátva. Az épület kívül elegáns, rendezett képet mutat, belsője exkluzív közösségi terekkel és az Ön igénye szerint kialakítható bérlőterületekkel rendelkezik.
Az ingatlan bérleti díja 18.000€/hó, kaució 3 hónap. Üzemeltetés mérőórák és megegyezés szerint. A továbbiakat személyesen...
Ha hasonló méretben gondolkodik, tekintse meg az ingatlant és képzelje bele vállalkozását! Ebben tudok segíteni, várom hívását!
Registration Number
UH002803
Property Details
Sales
for rent
Legal Status
used
Character
commercial
Net Size
2,700 m²
Heating
Gas circulator
Condominium Garden
yes
Water
Available
Gas
Available
Electricity
Available
Sewer
Available
Slope of Land
flat
Possible Functions
retail
Berkes-Jakus Kinga
Credit Expert