data_sheet.details.realestate.section.main.otthonstart_flag.label
For sale new construction semi-detached house,
U0049535
Téglás
85,000,000 Ft
218,000 €
- 94m²
- 4 Rooms
ÚJ ÉPÍTÉSŰ, PRÉMIUM IKERHÁZ ELADÓ TÉGLÁSON (Mindkét oldal eladó!)
Tégláson prémium, azonnal költözhető ikerház eladó Debrecen közelében
Ha egy modern, energiatakarékos és nyugodt környezetben lévő otthont keresel Debrecen közelében, akkor ez az ingatlan tökéletes választás lehet.
Téglás egyik csendes, rendezett lakóparkjában kínálunk eladásra egy 2025-ben átadott, prémium kivitelezésű ikerházat, amelyet a Téglás Centrum Kft épített.
Az ingatlan elhelyezkedése különösen kedvező: Debrecen és Nyíregyháza mindössze kb. 20 perc autóútra, így a városi infrastruktúra gyorsan elérhető, miközben a mindennapokat egy nyugodt, családbarát környezetben élvezheti.
Főbb jellemzők
• 94 m² lakótér
• 11 m² fedett terasz
• 7 m² erkély
• nappali + 3 hálószoba
• 2 fürdőszoba (zuhanyzó és kád)
Bruttó 117 m2
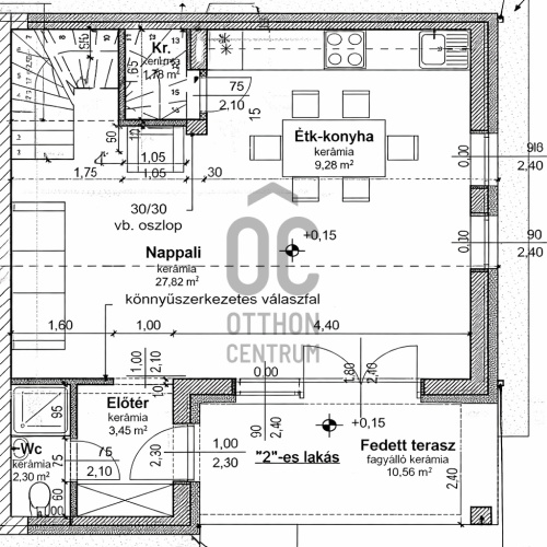
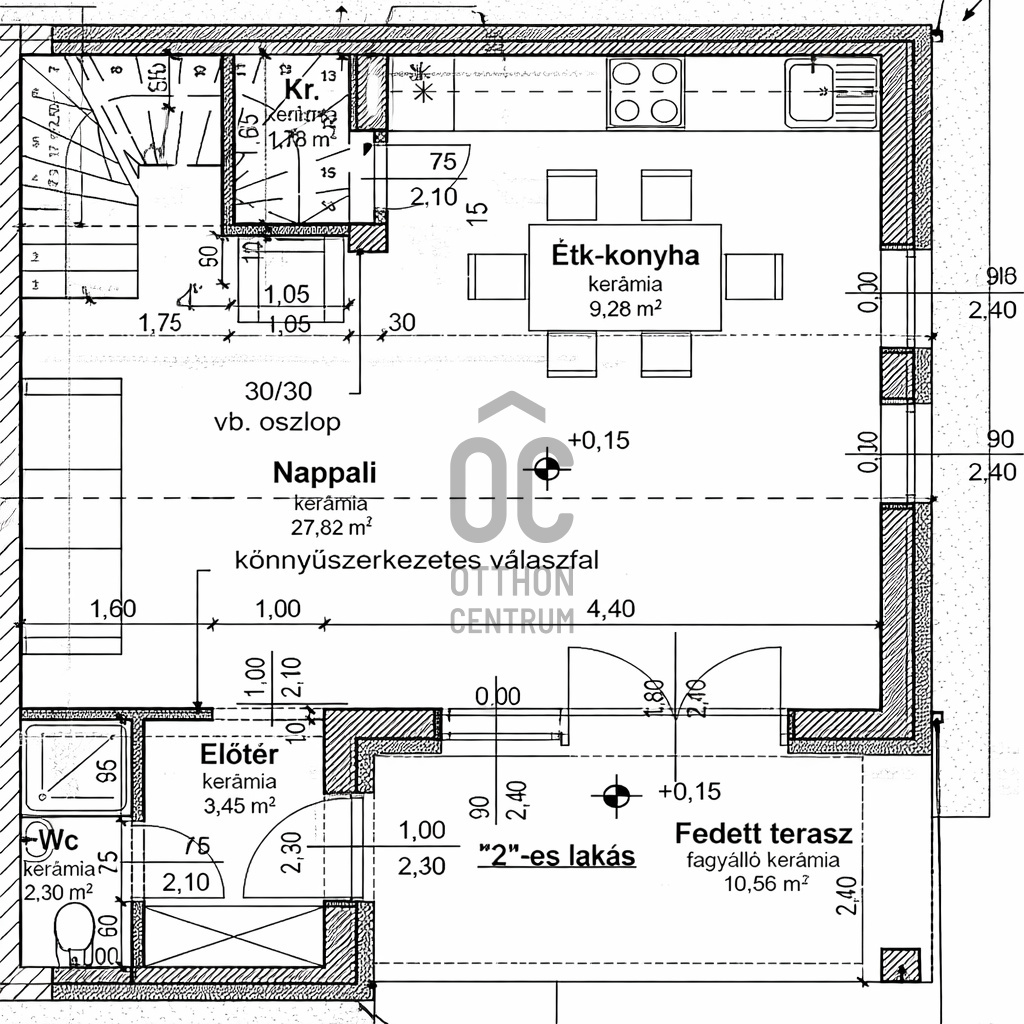
A 94 m²-es lakótér átgondolt elrendezésű:
tágas nappali, 3 külön nyíló hálószoba és 2 fürdőszoba (zuhanyzóval és káddal) biztosít kényelmes életteret akár egy nagyobb család számára is.
A nappaliból közvetlen kijárat nyílik a 11 m²-es fedett teraszra, ahol kellemesen tölthetők a reggeli kávézások vagy a nyugodt esti beszélgetések. Az emeleten található 7 m²-es erkély további kikapcsolódási lehetőséget kínál.
Műszaki tartalom
• 15 cm grafitos hőszigetelés
• korszerű hőszivattyús fűtési rendszer
• energiatakarékos modern gépészet
• 3 rétegű, antracit nyílászárók
• elektromos kapu és kaputelefon
• térkövezett autóbeálló
• teljesen körbekerített, önálló udvar
Extrák
• azonnal költözhető
• bútorozott állapotban eladó
• egyedi, prémium beépített konyhabútor gépekkel
• beépített gardrób és előszobaszekrény
• modern, magas minőségű burkolatok
A környék infrastruktúrája kiváló: Lidl, Penny, iskola és óvoda rövid távolságon belül elérhető.
Ez az ingatlan ideális választás azok számára, akik modern, alacsony fenntartási költségű és azonnal költözhető otthont keresnek Debrecen közelében.
Ha egy modern, energiatakarékos és nyugodt környezetben lévő otthont keresel Debrecen közelében, akkor ez az ingatlan tökéletes választás lehet.
Téglás egyik csendes, rendezett lakóparkjában kínálunk eladásra egy 2025-ben átadott, prémium kivitelezésű ikerházat, amelyet a Téglás Centrum Kft épített.
Az ingatlan elhelyezkedése különösen kedvező: Debrecen és Nyíregyháza mindössze kb. 20 perc autóútra, így a városi infrastruktúra gyorsan elérhető, miközben a mindennapokat egy nyugodt, családbarát környezetben élvezheti.
Főbb jellemzők
• 94 m² lakótér
• 11 m² fedett terasz
• 7 m² erkély
• nappali + 3 hálószoba
• 2 fürdőszoba (zuhanyzó és kád)
Bruttó 117 m2
A 94 m²-es lakótér átgondolt elrendezésű:
tágas nappali, 3 külön nyíló hálószoba és 2 fürdőszoba (zuhanyzóval és káddal) biztosít kényelmes életteret akár egy nagyobb család számára is.
A nappaliból közvetlen kijárat nyílik a 11 m²-es fedett teraszra, ahol kellemesen tölthetők a reggeli kávézások vagy a nyugodt esti beszélgetések. Az emeleten található 7 m²-es erkély további kikapcsolódási lehetőséget kínál.
Műszaki tartalom
• 15 cm grafitos hőszigetelés
• korszerű hőszivattyús fűtési rendszer
• energiatakarékos modern gépészet
• 3 rétegű, antracit nyílászárók
• elektromos kapu és kaputelefon
• térkövezett autóbeálló
• teljesen körbekerített, önálló udvar
Extrák
• azonnal költözhető
• bútorozott állapotban eladó
• egyedi, prémium beépített konyhabútor gépekkel
• beépített gardrób és előszobaszekrény
• modern, magas minőségű burkolatok
A környék infrastruktúrája kiváló: Lidl, Penny, iskola és óvoda rövid távolságon belül elérhető.
Ez az ingatlan ideális választás azok számára, akik modern, alacsony fenntartási költségű és azonnal költözhető otthont keresnek Debrecen közelében.
Registration Number
U0049535
Property Details
Sales
for sale
Legal Status
new
Character
house
Construction Method
brick
Net Size
94 m²
Gross Size
112 m²
Plot Size
300 m²
Size of Terrace / Balcony
18 m²
Heating
heat pump
Ceiling Height
275 cm
Number of Levels Within the Property
1
Orientation
South-West
Condition
Excellent
Condition of Facade
Excellent
Neighborhood
good transport, green, central
Year of Construction
2025
Number of Bathrooms
2
Condominium Garden
yes
Water
Available
Electricity
Available
Sewer
Available
Distance to Waterfront
500 meters
Rooms
room
12.1 m²
room
12.1 m²
room
13.09 m²
bathroom-toilet
4.7 m²
corridor
3.1 m²
balcony
7 m²
entryway
3.45 m²
toilet
2.3 m²
terrace
11 m²
living room
27.82 m²
open-plan kitchen and dining room
9.28 m²
pantry
1.78 m²
Plébán László
Credit Expert