185,325,000 Ft
479,000 €
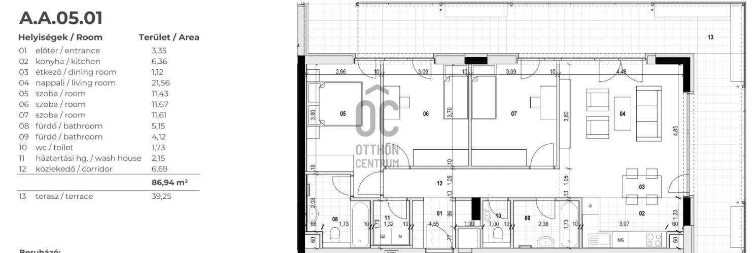
- 87m²
- 4 Rooms
- 5th floor
READY TO MOVE IN | OVERLOOKING A GREEN COURTYARD
For sale in Budapest’s 9th district, in the Metrodom Green residential complex, a well-designed living room + 3 bedroom apartment with a corner terrace, overlooking a quiet, landscaped inner garden.
Thanks to its south-west orientation, the apartment is bright, calm and perfectly livable.
Key features:
- living room + 3 separate bedrooms
- 2 bathrooms
- separate utility / laundry room
- corner terrace
- ready to move in immediately
- excellent floor plan with well-separated private areas
THE PROJECT – A GREEN OASIS CLOSE TO DOWNTOWN
A modern, already completed premium residential complex where urban comfort meets nature.
The lush inner garden, green façades and thoughtfully designed community spaces create a true oasis – while the city centre is just minutes away.
Available brownfield benefits:
10% deposit – 90% payable within 15–45 days
legal fees included in the purchase price
BUILDING & AMENITIES
A modern, premium-category building with 513 apartments, designed with sustainability and comfort in mind.
Residents enjoy:
- green façades, rooftop gardens, decorative pool
- café, fitness centre, sauna
- community kitchen, BBQ and rooftop terrace
- smart app & smart home solutions
- electric aluminium shutters included in the price
- 24/7 reception & parcel service
- secure, gated residential environment
- Energy-efficient systems, solar panels and modern building services ensure low operating costs.
5 REASONS TO CHOOSE THIS HOME
✔ central location with excellent public transport
✔ green, peaceful surroundings – a true urban retreat
✔ premium on-site services
✔ low maintenance costs
✔ fully furnished, immediately rentable or move-in ready
DEVELOPER – A SAFE AND RELIABLE CHOICE
fixed purchase price, no hidden costs
in-house construction team
high-quality materials and execution
full warranty
favourable and fast payment schedule
TRANSPORT & ACCESSIBILITY
- Tram line 1 nearby
- Tram line 2 along the Danube
- Tram line 24 with direct access to Keleti Railway Station
- night buses (901, 908)
- GreenGo, MOL Bubi, micromobility hub
- covered bicycle storage, EV charging stations
Can you imagine yourself living here?
This is more than an apartment – it’s a lifestyle.
Call me for more information!
Thanks to its south-west orientation, the apartment is bright, calm and perfectly livable.
Key features:
- living room + 3 separate bedrooms
- 2 bathrooms
- separate utility / laundry room
- corner terrace
- ready to move in immediately
- excellent floor plan with well-separated private areas
THE PROJECT – A GREEN OASIS CLOSE TO DOWNTOWN
A modern, already completed premium residential complex where urban comfort meets nature.
The lush inner garden, green façades and thoughtfully designed community spaces create a true oasis – while the city centre is just minutes away.
Available brownfield benefits:
10% deposit – 90% payable within 15–45 days
legal fees included in the purchase price
BUILDING & AMENITIES
A modern, premium-category building with 513 apartments, designed with sustainability and comfort in mind.
Residents enjoy:
- green façades, rooftop gardens, decorative pool
- café, fitness centre, sauna
- community kitchen, BBQ and rooftop terrace
- smart app & smart home solutions
- electric aluminium shutters included in the price
- 24/7 reception & parcel service
- secure, gated residential environment
- Energy-efficient systems, solar panels and modern building services ensure low operating costs.
5 REASONS TO CHOOSE THIS HOME
✔ central location with excellent public transport
✔ green, peaceful surroundings – a true urban retreat
✔ premium on-site services
✔ low maintenance costs
✔ fully furnished, immediately rentable or move-in ready
DEVELOPER – A SAFE AND RELIABLE CHOICE
fixed purchase price, no hidden costs
in-house construction team
high-quality materials and execution
full warranty
favourable and fast payment schedule
TRANSPORT & ACCESSIBILITY
- Tram line 1 nearby
- Tram line 2 along the Danube
- Tram line 24 with direct access to Keleti Railway Station
- night buses (901, 908)
- GreenGo, MOL Bubi, micromobility hub
- covered bicycle storage, EV charging stations
Can you imagine yourself living here?
This is more than an apartment – it’s a lifestyle.
Call me for more information!
Registration Number
U0049323
Property Details
Sales
for sale
Legal Status
new
Character
apartment
Construction Method
brick
Net Size
87 m²
Gross Size
105.4 m²
Size of Terrace / Balcony
36.8 m²
Heating
heat pump (air-to-air)
Ceiling Height
265 cm
Number of Levels Within the Property
1
Orientation
South-West
Staircase Type
enclosed staircase
Condition
Excellent
Condition of Facade
Excellent
Condition of Staircase
Excellent
Neighborhood
good transport, central
Year of Construction
2025
Number of Bathrooms
2
Position
garden-facing
Water
Available
Electricity
Available
Sewer
Available
Elevator
available
Distance to Waterfront
500 meters
Rooms
living room
21.56 m²
kitchen
6.36 m²
dining room
1.12 m²
bedroom
11.43 m²
bedroom
11.67 m²
bedroom
11.61 m²
bathroom
5.15 m²
bathroom
4.12 m²
toilet-washbasin
1.73 m²
utility room
2.15 m²
corridor
6.7 m²
entryway
3.25 m²
terrace
39.25 m²
Tóth Róbert
Credit Expert