data_sheet.details.realestate.section.main.otthonstart_flag.label
For sale new construction apartment,
U0049318
Cegléd, Bede
60,000,000 Ft
159,000 €
- 66.5m²
- 4 Rooms
- ground floor
ELADÓ ÚJ ÉPÍTÉSŰ IKERHÁZ FÉL SAJÁT KERTTEL CEGLÉDEN!!!
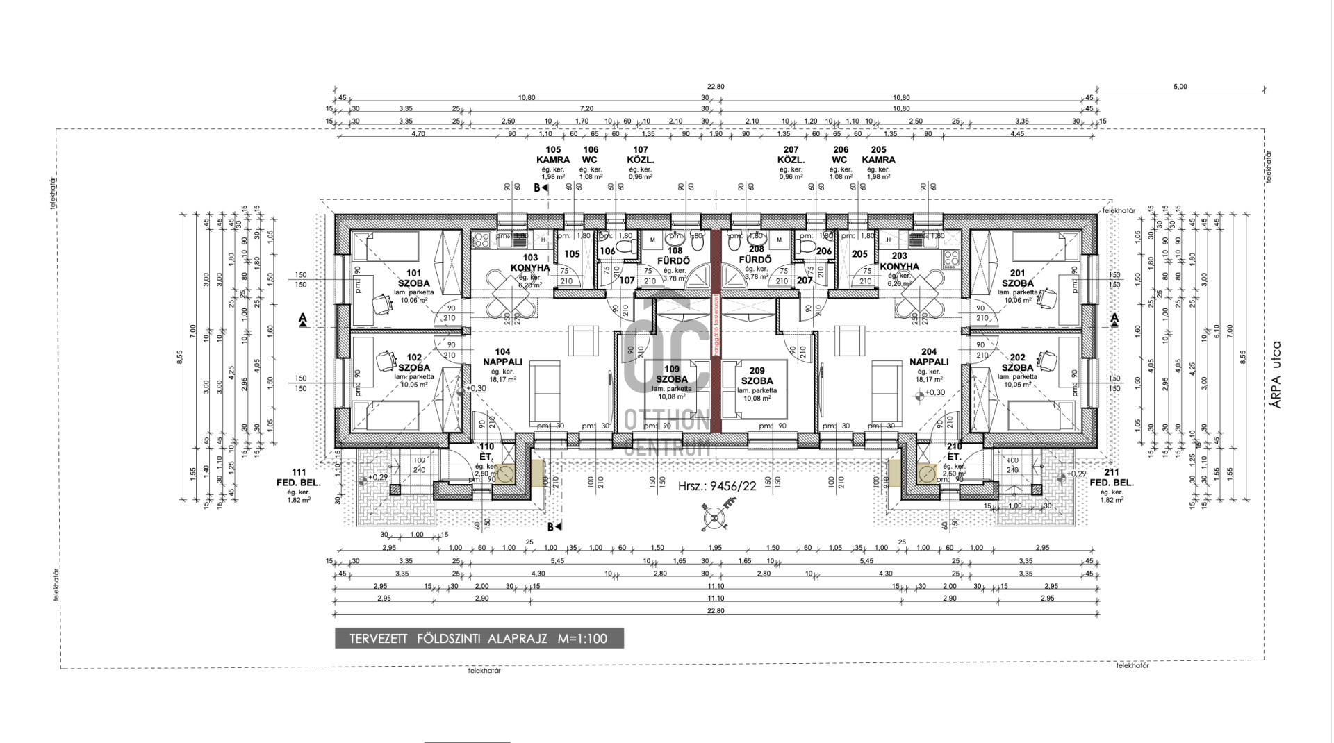
Eladó Cegléden, a Bedében egy most épülő 66.5 nm-es ikerház fél. A környező telkeken már több igényes, új építésű ikerház elkészült, így a környék rendezett utcaképpel rendelkezik.
Az ingatlan műszaki paraméterei:
- Tartó szerkezet:
Az épület alapozása sávalapozással történik, 37.5 cm vastag via blokk falazat
- Válaszfalak :
10 cm vastag válaszfal téglából készülnek
- Födém szerkezet :
Az épületen fa gerendás födém készül fenyő gerendákkal
- Tetőszerkezet :
Fából készül, hagyományos ács és csavaros kötésekkel, fogópárokkal
- Nyílászáró szerkezetek : műanyag
- Burkolatok :
Meleg padlós helyiségnél laminált parketta, hidegpadlós helyiségeknél kerámia burkolat
- Térburkolat: Viacolor térburkolat készül
- Fűtés: Kondenzációs gázkazán padlófűtéssel
- 1 db inverteres klíma
- Külön bejárat a 2 lakáshoz és teljesen különálló kert!!!
- Parkoló: A telken belül két gépkocsi parkolása megoldott
- Társasházi albetét kialakítás
Elosztása: nappali, konyha + 3 hálószoba
Bővebb információkért keressen bizalommal!
Ne hagyja ki ezt a remek lehetőséget!
Az ingatlan műszaki paraméterei:
- Tartó szerkezet:
Az épület alapozása sávalapozással történik, 37.5 cm vastag via blokk falazat
- Válaszfalak :
10 cm vastag válaszfal téglából készülnek
- Födém szerkezet :
Az épületen fa gerendás födém készül fenyő gerendákkal
- Tetőszerkezet :
Fából készül, hagyományos ács és csavaros kötésekkel, fogópárokkal
- Nyílászáró szerkezetek : műanyag
- Burkolatok :
Meleg padlós helyiségnél laminált parketta, hidegpadlós helyiségeknél kerámia burkolat
- Térburkolat: Viacolor térburkolat készül
- Fűtés: Kondenzációs gázkazán padlófűtéssel
- 1 db inverteres klíma
- Külön bejárat a 2 lakáshoz és teljesen különálló kert!!!
- Parkoló: A telken belül két gépkocsi parkolása megoldott
- Társasházi albetét kialakítás
Elosztása: nappali, konyha + 3 hálószoba
Bővebb információkért keressen bizalommal!
Ne hagyja ki ezt a remek lehetőséget!
Registration Number
U0049318
Property Details
Sales
for sale
Legal Status
new
Character
apartment
Construction Method
brick
Net Size
66.5 m²
Gross Size
70 m²
Heating
Gas circulator
Ceiling Height
265 cm
Orientation
South
Staircase Type
none
Condition
Excellent
Condition of Facade
Excellent
Condition of Staircase
Excellent
Year of Construction
2026
Number of Bathrooms
1
Position
street-facing
Water
Available
Gas
Available
Electricity
Available
Sewer
Available
Rooms
living room
18.17 m²
kitchen
6.2 m²
room
10.06 m²
room
10.05 m²
room
10.08 m²
bathroom
3.78 m²
toilet
1.08 m²
corridor
0.96 m²
pantry
1.98 m²