Elérhető Otthon Start hitellel
Eladó újépítésű lakás,
U0049319
Cegléd, Bede
60 000 000 Ft
159 000 €
- 66,5m²
- 4 szoba
- földszint
ELADÓ ÚJÉPÍTÉSŰ TÁRSASHÁZI LAKÁS SAJÁT KERTTEL CEGLÉDEN!!!
Eladó Cegléden, a Bedében egy most épülő 66.5 nm-es ikerház fél. A környező telkeken már több igényes, új építésű ikerház elkészült, így a környék rendezett utcaképpel rendelkezik.
Az ingatlan műszaki paraméterei:
- Tartó szerkezet:
Az épület alapozása sávalapozással történik, 37.5 cm vastag via blokk falazat
- Válaszfalak :
10 cm vastag válaszfal téglából készülnek
- Födém szerkezet :
Az épületen fa gerendás födém készül fenyő gerendákkal
- Tetőszerkezet :
Fából készül, hagyományos ács és csavaros kötésekkel, fogópárokkal
- Nyílászáró szerkezetek : műanyag
- Burkolatok :
Meleg padlós helyiségnél laminált parketta, hidegpadlós helyiségeknél kerámia burkolat
- Térburkolat: Viacolor térburkolat készül
- Fűtés: Kondenzációs gázkazán padlófűtéssel
- 1 db inverteres klíma
- Külön bejárat a 2 lakáshoz és teljesen különálló kert!!!
- Parkoló: A telken belül két gépkocsi parkolása megoldott
- Társasházi albetét kialakítás
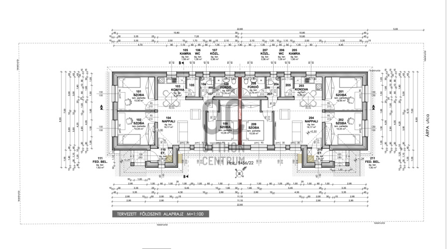
Elosztása: nappali, konyha + 3 hálószoba
Bővebb információkért keressen bizalommal!
Ne hagyja ki ezt a remek lehetőséget!
Az ingatlan műszaki paraméterei:
- Tartó szerkezet:
Az épület alapozása sávalapozással történik, 37.5 cm vastag via blokk falazat
- Válaszfalak :
10 cm vastag válaszfal téglából készülnek
- Födém szerkezet :
Az épületen fa gerendás födém készül fenyő gerendákkal
- Tetőszerkezet :
Fából készül, hagyományos ács és csavaros kötésekkel, fogópárokkal
- Nyílászáró szerkezetek : műanyag
- Burkolatok :
Meleg padlós helyiségnél laminált parketta, hidegpadlós helyiségeknél kerámia burkolat
- Térburkolat: Viacolor térburkolat készül
- Fűtés: Kondenzációs gázkazán padlófűtéssel
- 1 db inverteres klíma
- Külön bejárat a 2 lakáshoz és teljesen különálló kert!!!
- Parkoló: A telken belül két gépkocsi parkolása megoldott
- Társasházi albetét kialakítás
Elosztása: nappali, konyha + 3 hálószoba
Bővebb információkért keressen bizalommal!
Ne hagyja ki ezt a remek lehetőséget!
Regisztrációs szám
U0049319
Az ingatlan adatai
Értékesités
eladó
Jogi státusz
új
Jelleg
lakás
Építési mód
tégla
Méret
66,5 m²
Bruttó méret
70 m²
Fűtés
Gáz cirkó
Belmagasság
265 cm
Tájolás
Dél
Lépcsőház típusa
nincs
Állapot
Kiváló
Homlokzat állapota
Kiváló
Lépcsőház állapota
Kiváló
Építés éve
2026
Fürdőszobák száma
1
Fekvés
utcai
Víz
Van
Gáz
Van
Villany
Van
Csatorna
Van
Helyiségek
nappali
18.17 m²
konyha
6.2 m²
szoba
10.06 m²
szoba
10.05 m²
szoba
10.08 m²
fürdőszoba
3.78 m²
wc
1.08 m²
közlekedő
0.96 m²
kamra
0.98 m²