155,000,000 Ft
396,000 €
- 125m²
- 4 Rooms
Newly built family house in Rákospalota
In the suburban area of Rákospalota, a newly built family house is for sale from a builder with references.
The project is continuously being constructed, with expected turnkey handover in the summer of 2026!
But let's look at the details!
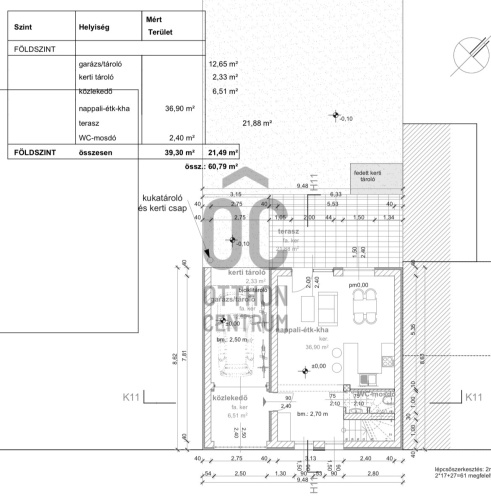
- 341 m2 plot
- 125 m2 net floor area, two-story house
- The ground floor features a large living room with an American kitchen, a restroom, a terrace, and a garage
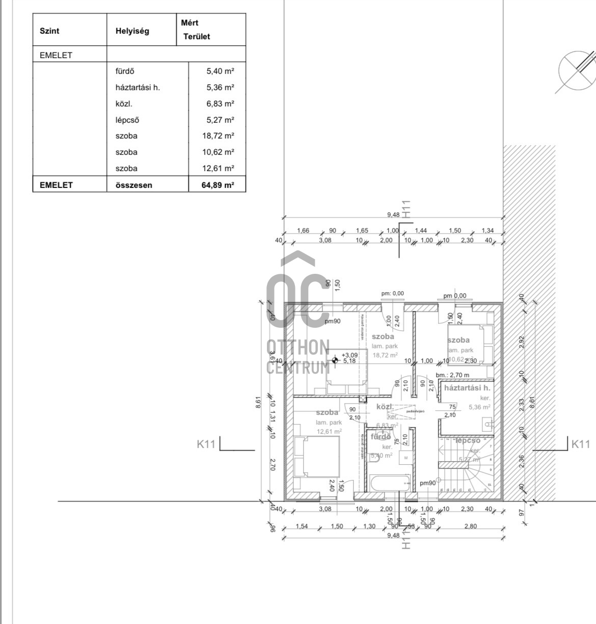
- The upper floor will have 3 bedrooms, a bathroom, and a utility room
- High technical content, anthracite tiled roof, gas circulation heating, cooling-heating air conditioning, triple-glazed plastic windows, 15 cm insulation
- The interior doors, wall colors, coverings, and sanitary fixtures are still selectable!
- The price includes landscaping and the construction of a wooden fence
Excellent location. The M3 motorway is reachable in a few minutes, Pólus Center and shopping options are available within 5 minutes. Bus stop at the corner.
Come and see it today! A great opportunity!
If needed, our independent banking expert is available for free consultation and administration.
The project is continuously being constructed, with expected turnkey handover in the summer of 2026!
But let's look at the details!
- 341 m2 plot
- 125 m2 net floor area, two-story house
- The ground floor features a large living room with an American kitchen, a restroom, a terrace, and a garage
- The upper floor will have 3 bedrooms, a bathroom, and a utility room
- High technical content, anthracite tiled roof, gas circulation heating, cooling-heating air conditioning, triple-glazed plastic windows, 15 cm insulation
- The interior doors, wall colors, coverings, and sanitary fixtures are still selectable!
- The price includes landscaping and the construction of a wooden fence
Excellent location. The M3 motorway is reachable in a few minutes, Pólus Center and shopping options are available within 5 minutes. Bus stop at the corner.
Come and see it today! A great opportunity!
If needed, our independent banking expert is available for free consultation and administration.
Registration Number
U0049302
Property Details
Sales
for sale
Legal Status
new
Character
house
Construction Method
brick
Net Size
125 m²
Gross Size
125 m²
Plot Size
340 m²
Size of Terrace / Balcony
22 m²
Heating
Gas circulator
Ceiling Height
270 cm
Number of Levels Within the Property
1
Orientation
North-West
Condition
Excellent
Condition of Facade
Excellent
Neighborhood
good transport
Year of Construction
2026
Number of Bathrooms
2
Garage
Included in the price
Garage Spaces
1
Water
Available
Gas
Available
Electricity
Available
Sewer
Available
Storage
Independent
Rooms
open-plan living and dining room
36.9 m²
bedroom
18.72 m²
bedroom
10.62 m²
bedroom
12.61 m²
bathroom-toilet
5.4 m²
utility room
5.36 m²
toilet-washbasin
2.4 m²
terrace
21.88 m²
garage
12.65 m²
Czene Enikő Éva
Credit Expert