119,900,000 Ft
314,000 €
- 68m²
- 3 Rooms
- 1st floor
Budafok Belvárosában, 5 lakásos új építésű projekt!
A belváros csendes, zöld környezetében kezd épülni a társasház, amiből már csak 2 lakás eladó.
A kétszintes épületben három emeleti és két földszinti lakás lesz kialakítva, a földszintiek saját kertkapcsolattal rendelkeznek.
Mindegyik lakáshoz egy felszíni gépkocsi beálló tartozik kerten belül.
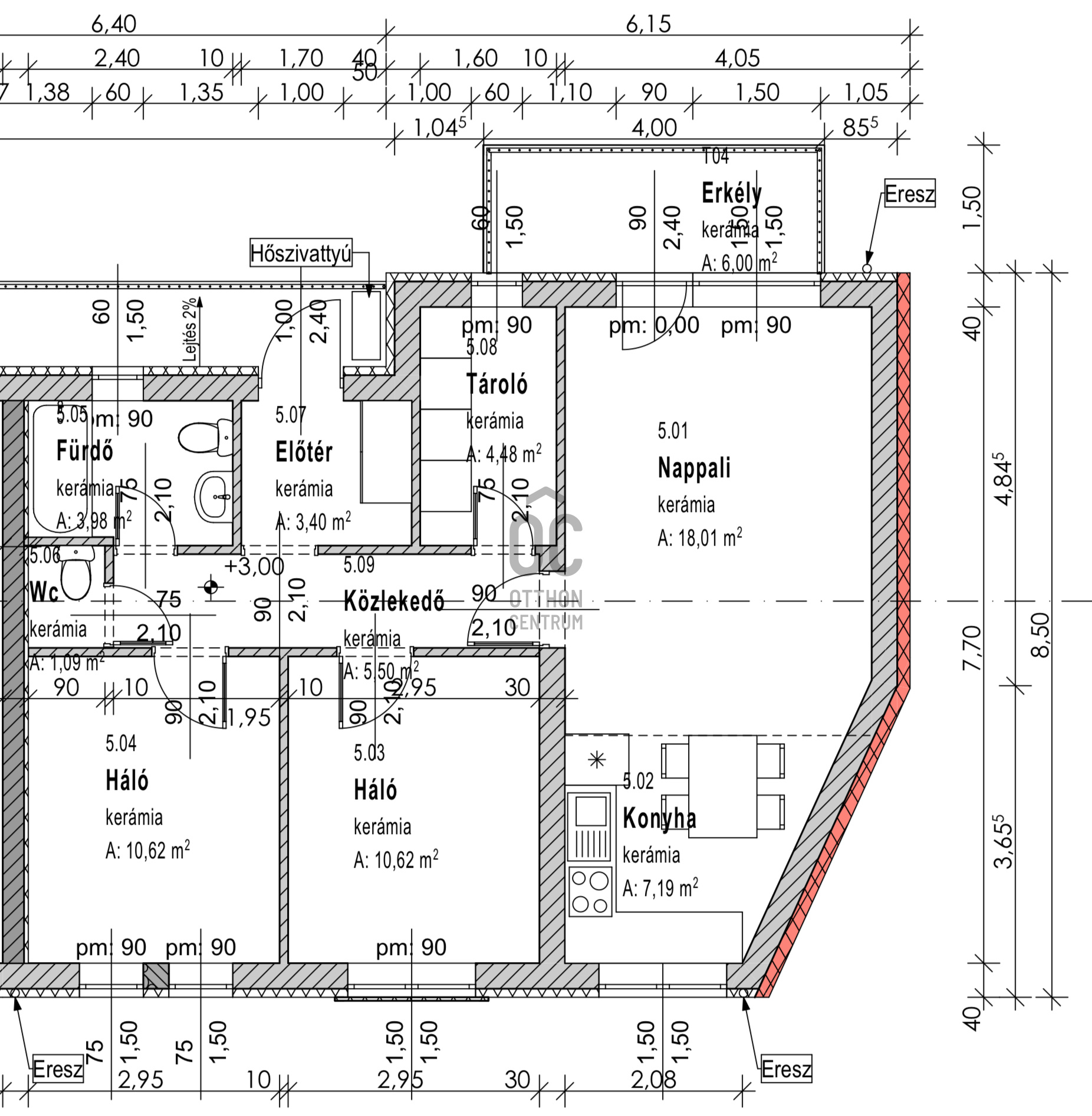
Első emeleti, jobb oldali lakás 68 m2:
- tágas amerikai konyhás nappali 25 m2-en, 6 m2-es erkéllyel
- 2 különnyíló szoba
- kádas fürdőszoba wc-vel
- különálló wc
- tároló/ mosókonyha 5 m2
A projekt kiemelkedő műszaki tartalommal rendelkezik:
- 30 cm-es Porotherm tégla, 10 cm-es Porotherm válaszfalak
- 15 cm-es grafitos homlokzati hőszigetelés
- 12 cm lépésálló szigetelés, 25 cm kőzetgyapot szigetelés a födémen
- Háromrétegű nyílászárók, kívül barna, belül fehér színűek
- Mindenhol padlófűtés lesz, a melegvízről a fűtésről hőszivattyús rendszer gondoskodik
- Redőnytokok, beltéri ajtók, hideg- meleg burkolatok már a vételárban
Abszolút Friss megbízás a piacon!
Az építkezés márciusban kezdődik várható befejezése 2026. december.
A többi eladó lakások:
- 1. Lakás Fszt. bal oldali 129 MFt (94.16 m2) ELADÓ MÉG!
- 2. Lakás Fszt. jobb oldali 119 MFt (92.38 m2) Foglalózva
- 3. Lakás Elkelt! (bal oldali emeleti)
- 4. Lakás az első emeleten a középső 79.9 MFt (55 m2) Foglalózva
- 5. Lakás az első emelet jobb oldalán, a hirdetésben
Bármi kérdés felmerülne, készséggel állok rendelkezésére.
Hívjon még ma, nehogy lemaradjon róla.
A kétszintes épületben három emeleti és két földszinti lakás lesz kialakítva, a földszintiek saját kertkapcsolattal rendelkeznek.
Mindegyik lakáshoz egy felszíni gépkocsi beálló tartozik kerten belül.
Első emeleti, jobb oldali lakás 68 m2:
- tágas amerikai konyhás nappali 25 m2-en, 6 m2-es erkéllyel
- 2 különnyíló szoba
- kádas fürdőszoba wc-vel
- különálló wc
- tároló/ mosókonyha 5 m2
A projekt kiemelkedő műszaki tartalommal rendelkezik:
- 30 cm-es Porotherm tégla, 10 cm-es Porotherm válaszfalak
- 15 cm-es grafitos homlokzati hőszigetelés
- 12 cm lépésálló szigetelés, 25 cm kőzetgyapot szigetelés a födémen
- Háromrétegű nyílászárók, kívül barna, belül fehér színűek
- Mindenhol padlófűtés lesz, a melegvízről a fűtésről hőszivattyús rendszer gondoskodik
- Redőnytokok, beltéri ajtók, hideg- meleg burkolatok már a vételárban
Abszolút Friss megbízás a piacon!
Az építkezés márciusban kezdődik várható befejezése 2026. december.
A többi eladó lakások:
- 1. Lakás Fszt. bal oldali 129 MFt (94.16 m2) ELADÓ MÉG!
- 2. Lakás Fszt. jobb oldali 119 MFt (92.38 m2) Foglalózva
- 3. Lakás Elkelt! (bal oldali emeleti)
- 4. Lakás az első emeleten a középső 79.9 MFt (55 m2) Foglalózva
- 5. Lakás az első emelet jobb oldalán, a hirdetésben
Bármi kérdés felmerülne, készséggel állok rendelkezésére.
Hívjon még ma, nehogy lemaradjon róla.
Registration Number
U0049214
Property Details
Sales
for sale
Legal Status
new
Character
apartment
Construction Method
brick
Net Size
68 m²
Gross Size
70.8 m²
Size of Terrace / Balcony
6 m²
Heating
heat pump
Ceiling Height
265 cm
Orientation
South-West
Staircase Type
enclosed staircase
Condition
Excellent
Condition of Facade
Excellent
Condition of Staircase
Excellent
Neighborhood
quiet, good transport, central
Year of Construction
2026
Number of Bathrooms
1
Position
courtyard-facing
Water
Available
Electricity
Available
Sewer
Available
Rooms
living room
18.01 m²
kitchen
7.19 m²
room
10.62 m²
room
10.62 m²
bathroom-toilet
3.98 m²
toilet-washbasin
1.09 m²
entryway
3.4 m²
storage
4.48 m²
corridor
5.5 m²
balcony
6 m²
Pongó Miklós
Credit Expert