data_sheet.details.realestate.section.main.otthonstart_flag.label
For sale new construction family house,
U0049146
Abony
89,900,000 Ft
230,000 €
- 133m²
- 3 Rooms
Tágas terek, kényelmes otthon Abonyban – új családi ház 3 szobával várja Önt!
Abonyban aszfaltos úton eladó egy új építésű, modern, egyedi kialakítású 3 szobás ház – ahol a stílus és az otthonosság találkozik.
500.000 ft/ nm áron kínálok eladásra új építésű családi házat:
- 2023-as tervek alapján épült
-- jelenleg 60-70% készültség
Alapozás, falazat
- 60 cm széles 80 cm mély beton alapozás
- ytong tégla falazat (25 cm)
- 15 cm homlokzati hőszigetelés
- homlokzati szín
Padlózat rétegei
- vasalt szerelőbeton
- vízszigetelés (bitumen)
- 10 cm lépés álló nikecell
- 6 cm térhálós aljzatbeton
- burkolat
Mennyezet, tető
- könnyűszerkezetes födèm
- hőtükör fólia, 30 cm gyapot szigetelés, osb fedés
- sík Leier antracit beton cserép
- fólia
- a mennyezeten és a belső falakon üvegszálas gipszkartont használtak fel
Nyílászárók
-Marshall pvc ablakok 3 rétegű üveggel
- Marshall pvc biztonsági bejárati ajtó, teraszajtó
- elektromos alumínium redőnyök
- szúnyogháló
Fűtés-hűtès
-6 kw hőszivattyús rendszerrel működő fűtés és melegvíz ellátás
- 5 db klíma a hűtésre
Amit még tartalmaz a vételár
- hideg-meleg burkolatok, szaniterek, villanykapcsolók, konnektorok, melyek még a vevő igénye szerint választhatóak
- belső festès
- kb.140 nm térburkolat ( két autó beállási lehetőséggel)
- zárható, szigetelt tároló beton aljzattal az udvaron
- a telek teljes körbe kerítése megtörtént beton alappal rendelkező kerítéssel
- kiskapu, úszókapu lett kialakítva
- későbbi napelem telepítéshez szükséges kiépítések az ingatlanban és a padláson is megvannak
Fotókkal dokumentált építkezés!
Foglaló kifizetést követő 3 hónapon belül kerül kulcsrakész állapotba és vehető birtokba.
Irodánkban bank független hitel-közvetítéssel állunk ügyfeleink rendelkezésére!
A képek a kész állapotról látványtervek.
A hirdetésben szereplő információkat a megbízótól kaptuk, irodánk azokért felelősséget nem vállal
Keressen bizalommal, nézzük meg együtt!
500.000 ft/ nm áron kínálok eladásra új építésű családi házat:
- 2023-as tervek alapján épült
-- jelenleg 60-70% készültség
Alapozás, falazat
- 60 cm széles 80 cm mély beton alapozás
- ytong tégla falazat (25 cm)
- 15 cm homlokzati hőszigetelés
- homlokzati szín
Padlózat rétegei
- vasalt szerelőbeton
- vízszigetelés (bitumen)
- 10 cm lépés álló nikecell
- 6 cm térhálós aljzatbeton
- burkolat
Mennyezet, tető
- könnyűszerkezetes födèm
- hőtükör fólia, 30 cm gyapot szigetelés, osb fedés
- sík Leier antracit beton cserép
- fólia
- a mennyezeten és a belső falakon üvegszálas gipszkartont használtak fel
Nyílászárók
-Marshall pvc ablakok 3 rétegű üveggel
- Marshall pvc biztonsági bejárati ajtó, teraszajtó
- elektromos alumínium redőnyök
- szúnyogháló
Fűtés-hűtès
-6 kw hőszivattyús rendszerrel működő fűtés és melegvíz ellátás
- 5 db klíma a hűtésre
Amit még tartalmaz a vételár
- hideg-meleg burkolatok, szaniterek, villanykapcsolók, konnektorok, melyek még a vevő igénye szerint választhatóak
- belső festès
- kb.140 nm térburkolat ( két autó beállási lehetőséggel)
- zárható, szigetelt tároló beton aljzattal az udvaron
- a telek teljes körbe kerítése megtörtént beton alappal rendelkező kerítéssel
- kiskapu, úszókapu lett kialakítva
- későbbi napelem telepítéshez szükséges kiépítések az ingatlanban és a padláson is megvannak
Fotókkal dokumentált építkezés!
Foglaló kifizetést követő 3 hónapon belül kerül kulcsrakész állapotba és vehető birtokba.
Irodánkban bank független hitel-közvetítéssel állunk ügyfeleink rendelkezésére!
A képek a kész állapotról látványtervek.
A hirdetésben szereplő információkat a megbízótól kaptuk, irodánk azokért felelősséget nem vállal
Keressen bizalommal, nézzük meg együtt!
Registration Number
U0049146
Property Details
Sales
for sale
Legal Status
new
Character
house
Construction Method
ytong
Net Size
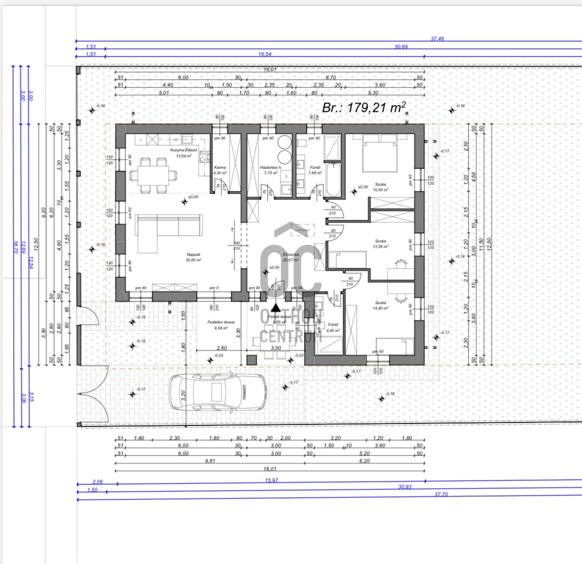
133 m²
Gross Size
180 m²
Plot Size
696 m²
Size of Terrace / Balcony
18 m²
Heating
heat pump
Ceiling Height
285 cm
Orientation
North
Condition
Excellent
Condition of Facade
Excellent
Neighborhood
quiet, good transport
Year of Construction
2025
Number of Bathrooms
2
Condominium Garden
yes
Water
Available
Electricity
Available
Sewer
Available
Storage
Independent
Rooms
open-plan kitchen and dining room
13.6 m²
living room
30.6 m²
pantry
4.5 m²
utility room
7.75 m²
bathroom-toilet
7.6 m²
room
15.7 m²
room
13.5 m²
entryway
20.7 m²
room
14.4 m²
bathroom-toilet
4.8 m²
terrace
18 m²
Szuda Zsolt
Credit Expert