data_sheet.details.realestate.section.main.otthonstart_flag.label
For sale new construction family house,
U0049077
Inárcs
78,990,000 Ft
209,000 €
- 98m²
- 4 Rooms
Eladó új építésű, modern családi ház Inárcson!
Központi elhelyezkedéssel, kiváló műszaki tartalommal és igényes kialakítással kínáljuk megvételre ezt az új építésű családi ikerházat Inárcson.
FÖLDSZINTES! - legkeresettebb kialakítás!
Akár Otthon Start 3%-os hitellel!
Csendes, barátságos utcájában, a természet közelségével és a béke nyugalmával ölelve várja új tulajdonosát ez az új építésű családi ház.
Egy ház, amely nemcsak falakból és tetőből áll – hanem a leendő családi történetek, közös reggelek és napsütötte délutánok ígéretéből.
A két ingatlan csupán a fedett kocsibeállónál érintkezik, nincs közös falszakasz és nincs átjárás, így a saját tér, a saját nyugalmas otthon teljesen adott.
Főbb jellemzők:
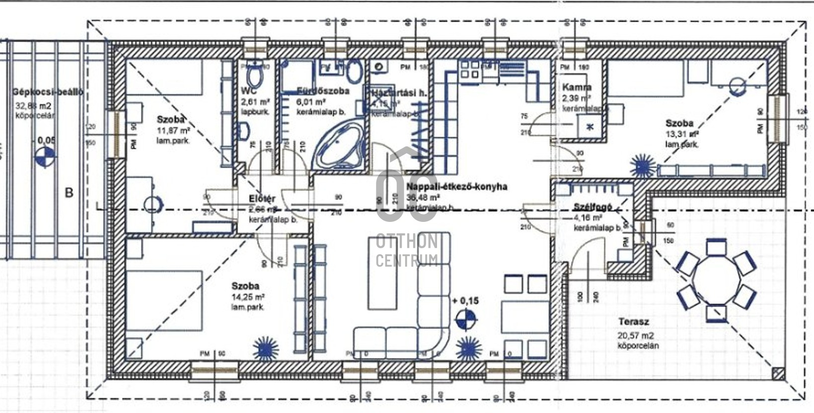
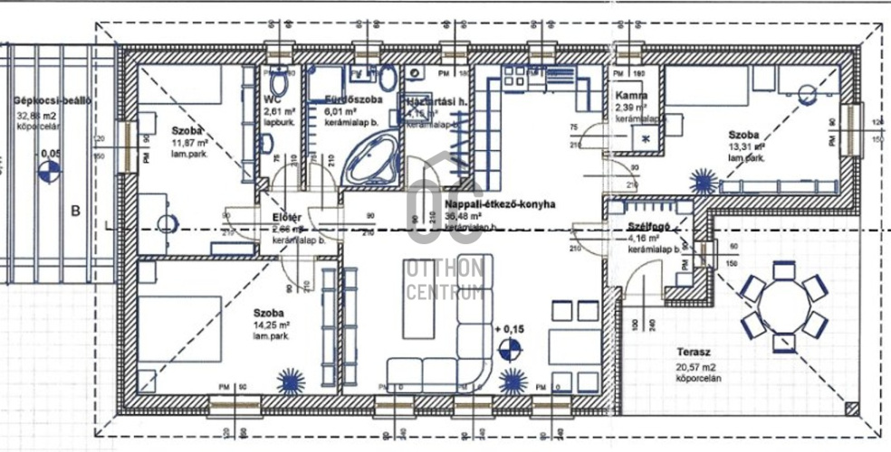
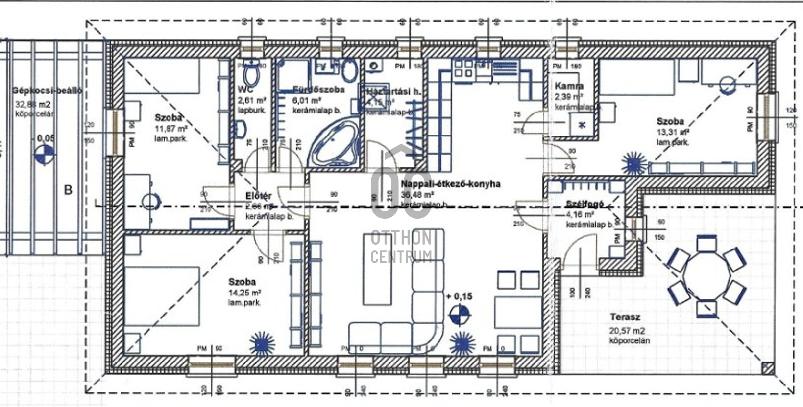
Hasznos alapterület: 98 m²
A házhoz tartozó telekrész: 62,3 m²
Terasz: 20,57 m²
Műszaki tartalom:
- Falazat: 30 cm Porotherm
- Válaszfalak: 10 cm Ytong
- Homlokzati szigetelés: 15 cm
- Födémszigetelés: 25 cm
- Tető: antracit színű betoncserép
- Homlokzat: modern, fehér kialakítás
- Nyílászárók: háromrétegű műanyag ablakok
- Bejárati ajtó: minőségi, biztonságos kivitel
- Hőszivattyús padlófűtés a teljes házban
- 3,5 kW-os hűtő-fűtő klíma beépítve
Biztonság és közművek
- Riasztókiállás előkészítve
- Teljes közművesítés
- Gáz a telken belül
- Elektromos kapu
- Térkövezett udvar
Választható burkolatok és felszerelések (az alábbi értékhatárokig választhatók egyedi igények szerint):
- Hidegburkolatok: 7 000 Ft/m²
- Melegburkolatok: 7 000 Ft/m²
- Beltéri ajtók: 45 000 Ft/db
- Szaniterek: 50 000 Ft/db
- Kád: 85 000 Ft
- Zuhanytelep: 60 000 Ft
- 2 db Geberit WC összesen: 140 000 Ft
- 50 db kapcsoló / ingatlan
- Kültéri fali karos lámpák: 8 000 Ft/db
Kivitelezés
A munkálatokat megbízható, referenciákkal rendelkező kivitelező végzi, garantálva a magas minőséget és a precíz megvalósítást.
Az ár a befejezett állapotra vonatkozik.
Tervezett átadás: 2026.03
Megtekintés céljából keressen bizalommal!
FÖLDSZINTES! - legkeresettebb kialakítás!
Akár Otthon Start 3%-os hitellel!
Csendes, barátságos utcájában, a természet közelségével és a béke nyugalmával ölelve várja új tulajdonosát ez az új építésű családi ház.
Egy ház, amely nemcsak falakból és tetőből áll – hanem a leendő családi történetek, közös reggelek és napsütötte délutánok ígéretéből.
A két ingatlan csupán a fedett kocsibeállónál érintkezik, nincs közös falszakasz és nincs átjárás, így a saját tér, a saját nyugalmas otthon teljesen adott.
Főbb jellemzők:
Hasznos alapterület: 98 m²
A házhoz tartozó telekrész: 62,3 m²
Terasz: 20,57 m²
Műszaki tartalom:
- Falazat: 30 cm Porotherm
- Válaszfalak: 10 cm Ytong
- Homlokzati szigetelés: 15 cm
- Födémszigetelés: 25 cm
- Tető: antracit színű betoncserép
- Homlokzat: modern, fehér kialakítás
- Nyílászárók: háromrétegű műanyag ablakok
- Bejárati ajtó: minőségi, biztonságos kivitel
- Hőszivattyús padlófűtés a teljes házban
- 3,5 kW-os hűtő-fűtő klíma beépítve
Biztonság és közművek
- Riasztókiállás előkészítve
- Teljes közművesítés
- Gáz a telken belül
- Elektromos kapu
- Térkövezett udvar
Választható burkolatok és felszerelések (az alábbi értékhatárokig választhatók egyedi igények szerint):
- Hidegburkolatok: 7 000 Ft/m²
- Melegburkolatok: 7 000 Ft/m²
- Beltéri ajtók: 45 000 Ft/db
- Szaniterek: 50 000 Ft/db
- Kád: 85 000 Ft
- Zuhanytelep: 60 000 Ft
- 2 db Geberit WC összesen: 140 000 Ft
- 50 db kapcsoló / ingatlan
- Kültéri fali karos lámpák: 8 000 Ft/db
Kivitelezés
A munkálatokat megbízható, referenciákkal rendelkező kivitelező végzi, garantálva a magas minőséget és a precíz megvalósítást.
Az ár a befejezett állapotra vonatkozik.
Tervezett átadás: 2026.03
Megtekintés céljából keressen bizalommal!
Registration Number
U0049077
Property Details
Sales
for sale
Legal Status
new
Character
house
Construction Method
brick
Net Size
98 m²
Gross Size
125 m²
Plot Size
62 m²
Size of Terrace / Balcony
21 m²
Garden Size
62 m²
Heating
heat pump
Ceiling Height
270 cm
Orientation
East
View
Green view
Condition
Excellent
Condition of Facade
Excellent
Neighborhood
quiet, good transport, green
Year of Construction
2026
Number of Bathrooms
1
Condominium Garden
yes
Garage
Included in the price
Water
Available
Electricity
Available
Sewer
Available
Rooms
open-plan kitchen and living room
36.48 m²
room
14.25 m²
room
13.31 m²
room
11.87 m²
bathroom-toilet
6.01 m²
toilet-washbasin
2.61 m²
corridor
2.66 m²
utility room
4.15 m²
pantry
2.39 m²
entryway
4.16 m²
terrace
20.57 m²
garage
16.42 m²
Horváth Eleonóra
Credit Expert