data_sheet.details.realestate.section.main.otthonstart_flag.label
For sale new construction family house,
U0048806
Nemesbük
94,500,000 Ft
241,000 €
- 87.1m²
- 3 Rooms








Találja meg fel álmai otthonát Nemesbükön : újépítésű 3 szobás családi ház szépen gondozott kerttel, autóbeállóval, garázzsal
Fedezze fel álmai otthonát Zala vármegyében, Nemesbük csendes és idilli környezetében, a Gesztenyeligetben!
3% OTTHON START ÉS FALUSI CSOK IGÉNYBE VEHETŐ!
VÁRHATÓ ÁTADÁS 2026 III. NEGYEDÉV
A 4 lakóegységből álló Gesztenyeliget lakóparkban lesz elérhető 2026-ban az új építésű, modern kivitelű tégla lakóház, amely tökéletes választás fiatal párok és családok számára, akik saját otthonra vágynak, vagy befektetési lehetőséget keresnek.
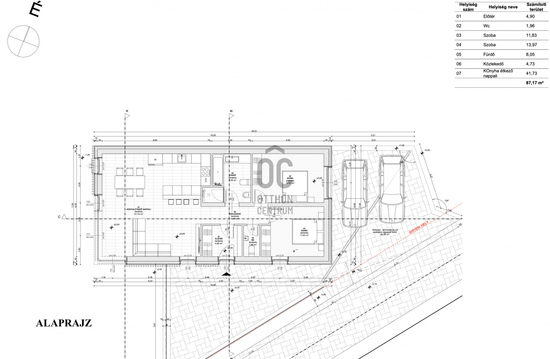
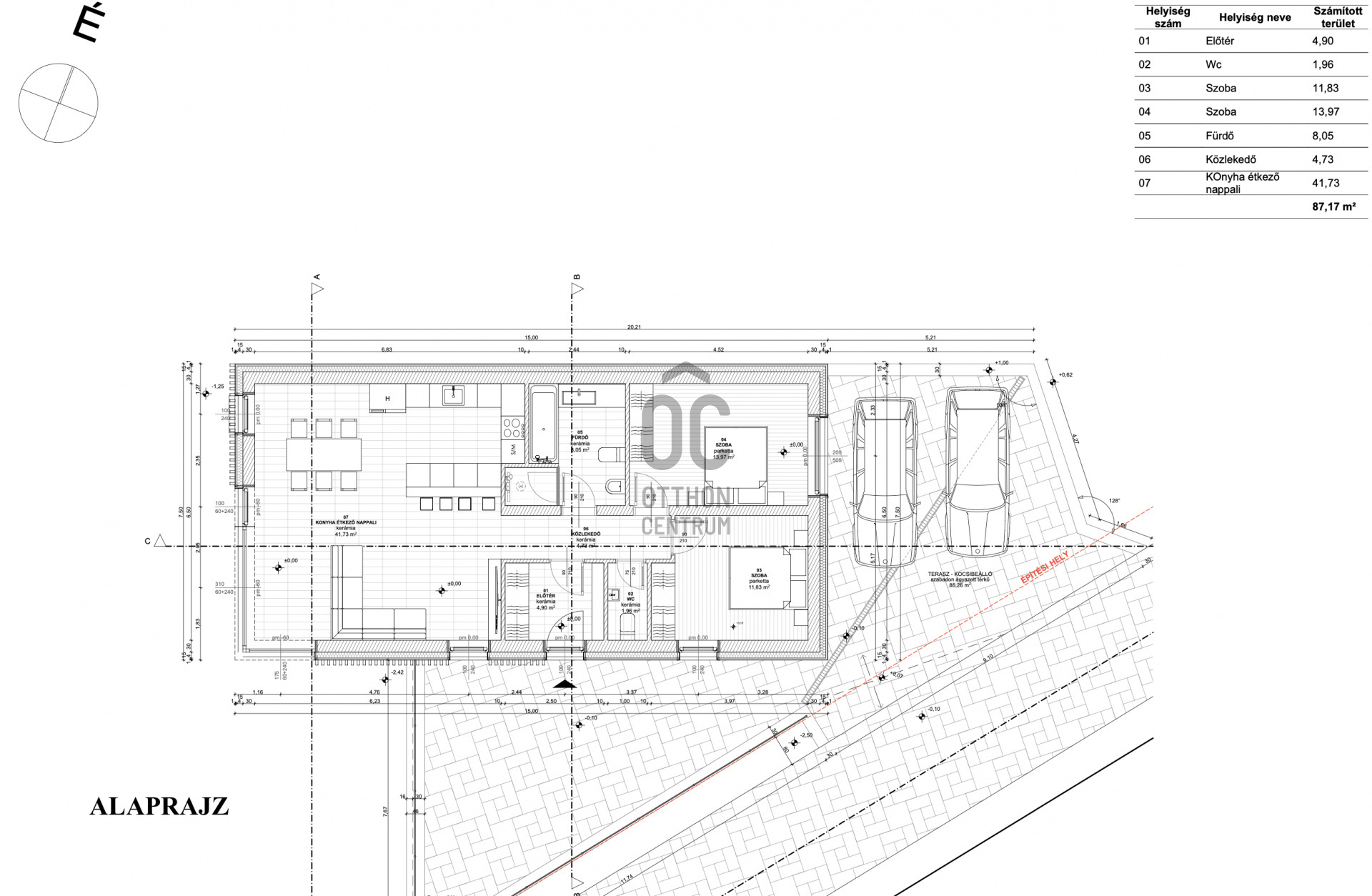
Az ingatlan 87,17 nm hasznos alapterülettel rendelkezik, amely 2 tágas szobát, nagy méretű nappali/konyha/étkezőt és egy modern fürdőszobát foglal magában. A ház elrendezése ideális a kényelmes mindennapokhoz. A fűtés elektromos fűtőpanelek és padlófűtés által biztosított, ami lehetővé teszi a gazdaságos üzemeltetést és a könnyű karbantartást. Az ingatlan panorámás kilátást kínál, a környező erdőségre, dombokra, amely minden reggel új élményekkel ajándékozza meg lakóit. A környék nyugodt, biztonságos és zöldövezeti, így ideális helyszín a pihenésre és a feltöltődésre.
az ingatlan főbb jellemzői:
- egyedi építésű földszintes lakóház
- letisztult formák
- csendes, természetközeli fekvés, hangulatos gesztenyefák ölelésében
- festői környezet
- privát lakópark, amely 3.649 nm területen 4 db családi házból áll
- INGATLAN NYILVÁNTARTÁS SZERINT: LAKÓHÁZ
- kulcsrakész átadás
- 87,17 nm hasznos alapterület
- a lakóépülethez térkövezett terasz és 2 gépkocsi számára beálló is tartozik (85,26nm)
- kizárólagos garázs használati jog az utcafronti épületben
- kedvező DNY-i tájolás
- háromrétegű üveggel szerelt alumínium szerkezetű nyílászárók
- fürdőszoba zuhannyal, bidével és WC-vel felszerelt
- fűtés: Norvég NOBU elektromos fűtőpanelek, egyedi méréssel, a fürdőszobában és a nappaliban elektromos padlófűtés.
- klíma előkészítés
- riasztó előkészítés
- napelem előkészítés
- LEGRAND típusú elektromos szerelvények
- monolit vasbeton födém
- PTH 30 NF hőszigetelő BAUMIT habarcsban falazva
- a külső homlokzaton Grafit hőszigetelés a Prefa állókarcos lemezborítás /20 cm kőzetgyapot hőszigeteléssel/ alatt
PRAKTIKUS BELSŐ KIALAKÍTÁS, TÁGAS TEREKKEL:
- előtér
- vendég WC
- szoba
- szoba
- fürdőszoba
- közlekedő
- nappali,/ konyha/ étkező (41,73nm)
- térkövezett terasz és gépkocsi beálló 2 autó részére
RUGALMAS FIZETÉSI FELTÉTELEK: SZERZŐDÉSKÖTÉS MÁR 10% FOGLALÓVAL, TOVÁBBI FIZETÉSI ÜTEMEZÉS AZ ÉPÍTÉSI MUNKÁLATOK ELŐREHALADTÁVAL.
A KIVITELEZŐ CÉG üzemeltetőként fog gondoskodni az épület fenntartásáról, karbantartásáról, szolgáltatásairól.
Nemesbük egy 700 lakosú csendes, rendezett település a világhírű Hévízi-tó közvetlen szomszédságában. Nemcsak festői környezetet kínál, hanem a közlekedési lehetőségek terén is kedvező adottságokkal bír. A település jól megközelíthető autóval, hiszen az M7-es autópálya és a a 76-os főút közelsége lehetővé teszi a gyors eljutást Zalaegerszegre, Keszthelyre, Hévízre, Budapest kb . 2 órás autóútra található. A közeli autóbusz megálló és az elérhető főbb közlekedési utak lehetővé teszik a gyors és egyszerű közlekedést Zalaegerszeg, az ismert gyógyfürdők, mint Hévíz (3,5 Km) , Kehidakustány és Zalakaros irányába. Keszthely (13Km) közelsége számos lehetőséget kínál, legyen szó bevásárlásról, szórakozásról vagy kulturális programokról. A környék gazdag természeti szépségekben, az aktív szabadidős tevékenységek kedvelői is megtalálják számításaikat. A közeli közintézmények, iskolák, óvodák és egészségügyi szolgáltatások, mind hozzájárulnak a környék vonzerejéhez, így a családosok számára is ideális választás lehet. Az ingatlan elhelyezkedése és modern kialakítása egyaránt vonzó lehet a fiatal felnőttek és befektetők számára, akik értékelik a kényelmet és a praktikusságot.
Az ingatlan ideális választás lehet mindazok számára, akik a városi élet előnyeit és a természet közelségét is szeretnék élvezni. A környék gazdag kulturális és szabadidős lehetőségekben, hiszen a közeli termálfürdők (Hévíz termál tó, Zalakaros, Kehidakustány) és a természetvédelmi területek számos kikapcsolódási lehetőséget kínálnak.
Egy kiváló lehetőség arra, hogy különleges, természetközeli otthonra leljen, amely minden igényét kielégíti.
Ha kérdései vannak az ingatlannal vagy a vásárlási folyamattal kapcsolatban, keressen bizalommal!
Az adatok tájékoztató jellegűek.
3% OTTHON START ÉS FALUSI CSOK IGÉNYBE VEHETŐ!
VÁRHATÓ ÁTADÁS 2026 III. NEGYEDÉV
A 4 lakóegységből álló Gesztenyeliget lakóparkban lesz elérhető 2026-ban az új építésű, modern kivitelű tégla lakóház, amely tökéletes választás fiatal párok és családok számára, akik saját otthonra vágynak, vagy befektetési lehetőséget keresnek.
Az ingatlan 87,17 nm hasznos alapterülettel rendelkezik, amely 2 tágas szobát, nagy méretű nappali/konyha/étkezőt és egy modern fürdőszobát foglal magában. A ház elrendezése ideális a kényelmes mindennapokhoz. A fűtés elektromos fűtőpanelek és padlófűtés által biztosított, ami lehetővé teszi a gazdaságos üzemeltetést és a könnyű karbantartást. Az ingatlan panorámás kilátást kínál, a környező erdőségre, dombokra, amely minden reggel új élményekkel ajándékozza meg lakóit. A környék nyugodt, biztonságos és zöldövezeti, így ideális helyszín a pihenésre és a feltöltődésre.
az ingatlan főbb jellemzői:
- egyedi építésű földszintes lakóház
- letisztult formák
- csendes, természetközeli fekvés, hangulatos gesztenyefák ölelésében
- festői környezet
- privát lakópark, amely 3.649 nm területen 4 db családi házból áll
- INGATLAN NYILVÁNTARTÁS SZERINT: LAKÓHÁZ
- kulcsrakész átadás
- 87,17 nm hasznos alapterület
- a lakóépülethez térkövezett terasz és 2 gépkocsi számára beálló is tartozik (85,26nm)
- kizárólagos garázs használati jog az utcafronti épületben
- kedvező DNY-i tájolás
- háromrétegű üveggel szerelt alumínium szerkezetű nyílászárók
- fürdőszoba zuhannyal, bidével és WC-vel felszerelt
- fűtés: Norvég NOBU elektromos fűtőpanelek, egyedi méréssel, a fürdőszobában és a nappaliban elektromos padlófűtés.
- klíma előkészítés
- riasztó előkészítés
- napelem előkészítés
- LEGRAND típusú elektromos szerelvények
- monolit vasbeton födém
- PTH 30 NF hőszigetelő BAUMIT habarcsban falazva
- a külső homlokzaton Grafit hőszigetelés a Prefa állókarcos lemezborítás /20 cm kőzetgyapot hőszigeteléssel/ alatt
PRAKTIKUS BELSŐ KIALAKÍTÁS, TÁGAS TEREKKEL:
- előtér
- vendég WC
- szoba
- szoba
- fürdőszoba
- közlekedő
- nappali,/ konyha/ étkező (41,73nm)
- térkövezett terasz és gépkocsi beálló 2 autó részére
RUGALMAS FIZETÉSI FELTÉTELEK: SZERZŐDÉSKÖTÉS MÁR 10% FOGLALÓVAL, TOVÁBBI FIZETÉSI ÜTEMEZÉS AZ ÉPÍTÉSI MUNKÁLATOK ELŐREHALADTÁVAL.
A KIVITELEZŐ CÉG üzemeltetőként fog gondoskodni az épület fenntartásáról, karbantartásáról, szolgáltatásairól.
Nemesbük egy 700 lakosú csendes, rendezett település a világhírű Hévízi-tó közvetlen szomszédságában. Nemcsak festői környezetet kínál, hanem a közlekedési lehetőségek terén is kedvező adottságokkal bír. A település jól megközelíthető autóval, hiszen az M7-es autópálya és a a 76-os főút közelsége lehetővé teszi a gyors eljutást Zalaegerszegre, Keszthelyre, Hévízre, Budapest kb . 2 órás autóútra található. A közeli autóbusz megálló és az elérhető főbb közlekedési utak lehetővé teszik a gyors és egyszerű közlekedést Zalaegerszeg, az ismert gyógyfürdők, mint Hévíz (3,5 Km) , Kehidakustány és Zalakaros irányába. Keszthely (13Km) közelsége számos lehetőséget kínál, legyen szó bevásárlásról, szórakozásról vagy kulturális programokról. A környék gazdag természeti szépségekben, az aktív szabadidős tevékenységek kedvelői is megtalálják számításaikat. A közeli közintézmények, iskolák, óvodák és egészségügyi szolgáltatások, mind hozzájárulnak a környék vonzerejéhez, így a családosok számára is ideális választás lehet. Az ingatlan elhelyezkedése és modern kialakítása egyaránt vonzó lehet a fiatal felnőttek és befektetők számára, akik értékelik a kényelmet és a praktikusságot.
Az ingatlan ideális választás lehet mindazok számára, akik a városi élet előnyeit és a természet közelségét is szeretnék élvezni. A környék gazdag kulturális és szabadidős lehetőségekben, hiszen a közeli termálfürdők (Hévíz termál tó, Zalakaros, Kehidakustány) és a természetvédelmi területek számos kikapcsolódási lehetőséget kínálnak.
Egy kiváló lehetőség arra, hogy különleges, természetközeli otthonra leljen, amely minden igényét kielégíti.
Ha kérdései vannak az ingatlannal vagy a vásárlási folyamattal kapcsolatban, keressen bizalommal!
Az adatok tájékoztató jellegűek.
Registration Number
U0048806
Property Details
Sales
for sale
Legal Status
new
Character
house
Construction Method
brick
Net Size
87.1 m²
Gross Size
192 m²
Plot Size
3,649 m²
Size of Terrace / Balcony
85.2 m²
Ceiling Height
270 cm
Orientation
South-West
View
Green view
Condition
Excellent
Condition of Facade
Excellent
Neighborhood
quiet, good transport, green
Year of Construction
2026
Number of Bathrooms
1
Garage
Included in the price
Water
Available
Gas
On the street
Electricity
Available
Sewer
Available
Distance to Waterfront
more than 500 meters
Rooms
entryway
4.9 m²
toilet-washbasin
1.96 m²
room
11.83 m²
room
13.97 m²
bathroom
8.05 m²
corridor
4.73 m²
open-plan kitchen and living room
41.73 m²
terrace
85.26 m²
parking space
1 m²
garage
20 m²

Edve János
Credit Expert