data_sheet.details.realestate.section.main.otthonstart_flag.label
For sale new construction apartment,
U0048042
Csomád
99,500,000 Ft
264,000 €
- 102m²
- 4 Rooms
- ground floor
Új építésű ikerházfél Csomád csendes, kertvárosi részén – modern otthon, kiváló elrendezéssel!
Eladó egy vadonatúj, kétszintes, belső kialakítású ikerházfél Csomád egyik legnyugodtabb utcájában.
Az ingatlan praktikus elrendezésével, energiatakarékos megoldásaival és saját garázsával tökéletes választás családok vagy párok számára is!
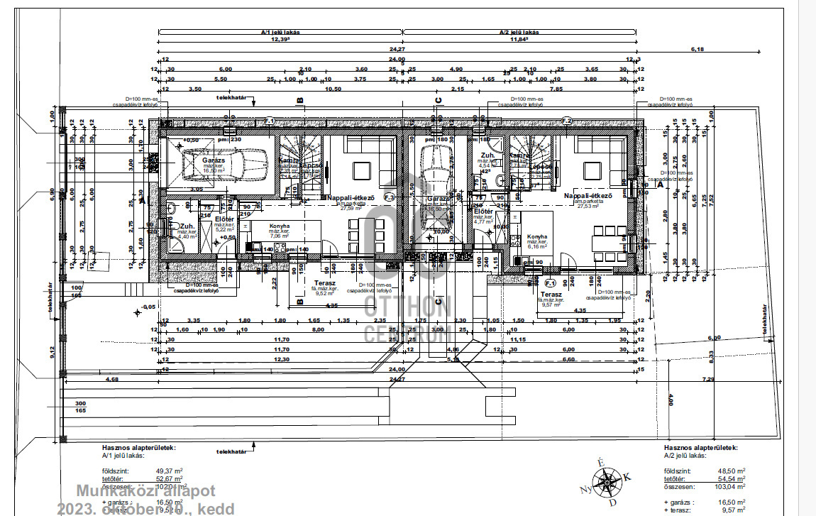
➤ Földszint:
Tágas, világos amerikai konyhás nappali
Külön kamra – ritka és praktikus extra!
Zuhanyzós fürdőszoba WC-vel
16,5 m²-es garázs, amelyből közvetlen bejárat nyílik az előtérbe
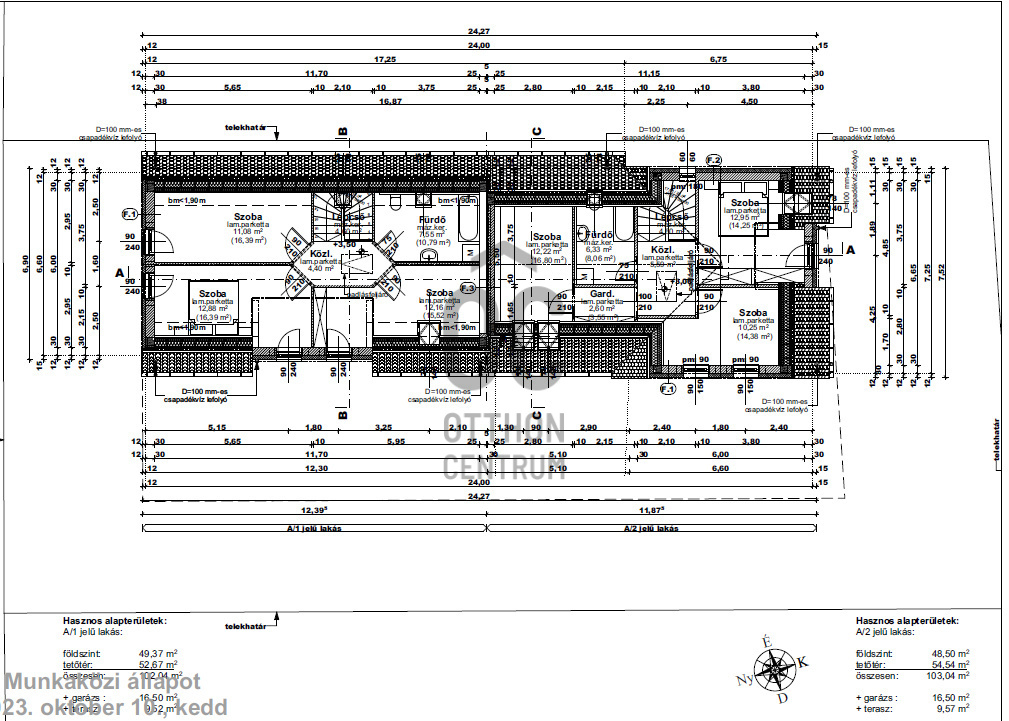
➤ Emelet:
Tágas előtér
3 külön nyíló szoba
Kádas fürdőszoba WC-vel
- Műszaki tartalom – korszerű, energiatakarékos rendszer:
Hőszivattyús padlófűtés (8 kW-os rendszer, beépített 190 literes melegvíztárolóval)
6 légkamrás, 3 rétegű műanyag nyílászárók (1.0 W/m²K)
Legrand szerelvények – prémium minőség
12 cm külső dryvit szigetelés – kiváló hőmegtartás
1×32A elektromos betáplálás – ideális elektromos fűtéshez, autótöltőhöz is
Miért ez az otthon a jó választás?
- Csendes, kertvárosi környezet
- Modern gépészet, alacsony rezsi
- Kiváló elosztás, tágas terek
- Saját garázs és közvetlen bejárat
- Közel Budapesthez, mégis nyugodt környezetben
Amennyiben hirdetésem felkeltette érdeklődését, keressen bizalommal!
Ha hitelre van szüksége, irodánkban teljes körű, bankfüggetlen hitel ügyintézéssel állunk rendelkezésére.
A hirdetésben szereplő információk a megbízótól kapott adatok alapján készültek, pontosságukért felelősséget nem vállalunk
Az ingatlan praktikus elrendezésével, energiatakarékos megoldásaival és saját garázsával tökéletes választás családok vagy párok számára is!
➤ Földszint:
Tágas, világos amerikai konyhás nappali
Külön kamra – ritka és praktikus extra!
Zuhanyzós fürdőszoba WC-vel
16,5 m²-es garázs, amelyből közvetlen bejárat nyílik az előtérbe
➤ Emelet:
Tágas előtér
3 külön nyíló szoba
Kádas fürdőszoba WC-vel
- Műszaki tartalom – korszerű, energiatakarékos rendszer:
Hőszivattyús padlófűtés (8 kW-os rendszer, beépített 190 literes melegvíztárolóval)
6 légkamrás, 3 rétegű műanyag nyílászárók (1.0 W/m²K)
Legrand szerelvények – prémium minőség
12 cm külső dryvit szigetelés – kiváló hőmegtartás
1×32A elektromos betáplálás – ideális elektromos fűtéshez, autótöltőhöz is
Miért ez az otthon a jó választás?
- Csendes, kertvárosi környezet
- Modern gépészet, alacsony rezsi
- Kiváló elosztás, tágas terek
- Saját garázs és közvetlen bejárat
- Közel Budapesthez, mégis nyugodt környezetben
Amennyiben hirdetésem felkeltette érdeklődését, keressen bizalommal!
Ha hitelre van szüksége, irodánkban teljes körű, bankfüggetlen hitel ügyintézéssel állunk rendelkezésére.
A hirdetésben szereplő információk a megbízótól kapott adatok alapján készültek, pontosságukért felelősséget nem vállalunk
Registration Number
U0048042
Property Details
Sales
for sale
Legal Status
new
Character
apartment
Construction Method
brick
Net Size
102 m²
Gross Size
115 m²
Heating
heat pump
Ceiling Height
270 cm
Number of Levels Within the Property
1
Orientation
South-East
Staircase Type
none
Condition
Excellent
Condition of Facade
Excellent
Condition of Staircase
Excellent
Year of Construction
2024
Number of Bathrooms
2
Position
street-facing
Water
Available
Gas
On the street
Electricity
Available
Sewer
Available
Connected to Garden
yes
Rooms
entryway
5.22 m²
kitchen
7.06 m²
staircase
2.75 m²
corridor
4.4 m²
room
12.88 m²
room
11.08 m²
open-plan living and dining room
27.59 m²
pantry
2.35 m²
shower
4.4 m²
bathroom
7.55 m²
room
12.16 m²