64,700,000 Ft
181,000 €
- 43m²
- 2 Rooms
- 1st floor
Balatonra panorámás, új építésű, prémium mínőségű, természetközeli 2 szobás lakás, Hévíztől csupán néhány percre
Fedezze fel ezt a kivételes lehetőséget, amely egy új, modern lakás formájában kínálja Önnek az otthon melegét Hévíztől és a Balaton partjától pár percre, a festői Nemesbükön, a természetközeli fekvésű Hill Gate Apartmanház részeként.
BEFEKTETŐK FIGYELEM! AZ INGATLAN BRUTTÓ HIRDETÉSI ÁRA 27% ÁFÁT TARTALMAZ, AMELY CÉGES VÁSÁRLÁS ESETÉN VISSZAIGÉNYELHETŐ.
A exkluzív 8 lakásból álló, prémium minőségben megépülő ingatlan a legújabb építési technológiáknak köszönhetően nemcsak esztétikai élményt nyújt, hanem a fenntarthatóság és energiahatékonyság szempontjából is kiemelkedő.
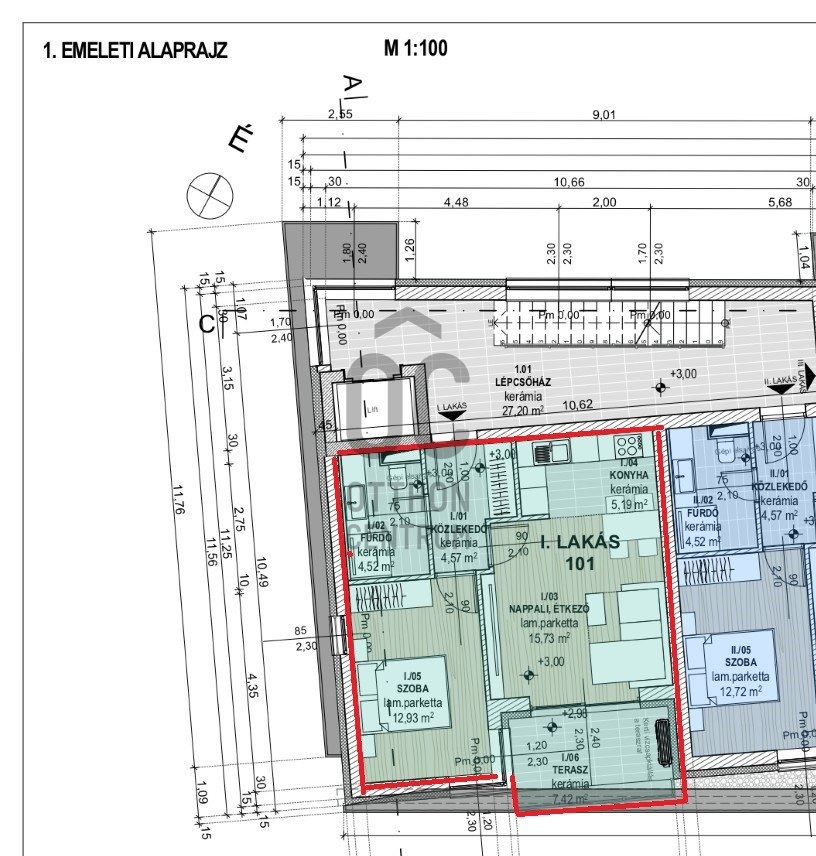
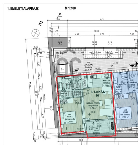
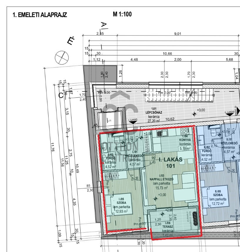
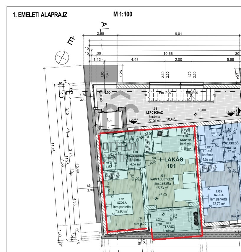
A 43 nm lakásban2 szoba található, amelyek ideálisak családi életre vagy akár befektetési céllal történő hasznosításra. A 7,42 négyzetméteres teraszról gyönyörű panoráma nyílik a környező tájra, amely tökéletes helyszínt biztosít a pihenéshez, feltöltődéshez.
AZ INGATLAN FŐBB JELLEMZŐI:
- egész évben kiváló megközelítés
- kiváló lokáció ( Hévíz, Keszthely, Balaton Airport, Zala Sprigs Golf Resort Zalacsány a közelben)
- természetközeli fekvés (belterület)
- balatoni örök panoráma és csodás kilátás a Zalai-dombságra illetve a Keszthelyi-hegységre
- 8 lakásból álló, 4 szintes, új építésű tégla épület tetőkerttel, lifttel, fedett parkolóval
- tájképi társasházi kert, tervezett medencével 5.563 nm nagyságú
- várható átadás 2026 december
- egyedi építészeti koncepció, kiválóan élhető, funkcionális üzleti célú lakásokkal
- a földszinten közös wellness részleg kerül kialakításra finn szaunával és jakuzzival és tároló áll rendelkezésre
- itt kap helyet a fedett gépkocsibeálló is
- első emelet
- 43 nm hasznos alapterület és egy D-i tájolású panorámás terasz ( 7,42 nm)
KIVÁLÓ BELSŐ ELOSZTÁS, TÁGAS TEREKKEL, PANORÁMÁS KILÁTÁSSAL:
- közlekedő
- hálószoba
- nappali/étkező ( 15,73 nm)
- konyha
- fürdőszoba/WC
- terasz ( 7,42 nm)
- a földszinten a lakáshoz tartozik egy fedett gépkocsibeálló, amely a vételár részét képezi
MŰSZAKI LEÍRÁS:
- alumínium nyílászárók háromrétegű üveggel
- a leendő tulajdonosok jelenlegi építési fázisban maguk választhatják ki a hideg/meleg burkolatokat bruttó 10.000 Ft/nm árig
- külön mérőórák
- a beépítésre kerülő anyagok nagy múltú gyártók termékeiből készülnek, ez garantálja a magas minőséget
- fűtés norvég NOBU elektromos fűtőpanellel, a fürdőszobában és a nappaliban elektromos padlófűtéssel
- a meleg vizet Ariston villanybojler biztosítja
- klíma, riasztó és napelem előkészítés (!)
- kedvező H tarifa kiépítése
- LEGRAND típusú elektromos szerelvények
- monolit vasbeton födém
- PTH 30 NF, BAUMIT habarcsba rakva, PTH 10 válaszfaltégla
- 30-as SILKA hanggátló tégla a lakások között
- BAUMIT gépi vakolat a belső felületeken, DULUX fehér festés RIGIPS simítás után
- a külső homlokzaton grafit hőszigetelés
Nemesbük egy 700 lakosú rendezett település a világhírű Hévízi-tó szomszédságában. Nemcsak csendes és festői környezetet kínál, hanem a közlekedési lehetőségek terén is kedvező adottságokkal bír. A település jól megközelíthető autóval, hiszen az M7-es autópálya és a a 76-os főút közelsége lehetővé teszi a gyors eljutást Zalaegerszegre, Keszthelyre, Hévízre, Budapest kb . 2 órás autóútra található. A lakás ideális választás lehet mindazok számára, akik a városi élet előnyeit és a természet közelségét is szeretnék élvezni. A környék gazdag kulturális és szabadidős lehetőségekben, hiszen a közeli termálfürdők (Hévíz termál tó, Zalakaros, Kehidakustány) és a természetvédelmi területek számos kikapcsolódási lehetőséget kínálnak. A helyi közösség barátságos és összetartó, így Ön is könnyen beilleszkedhet a környék életébe.
Ez az ingatlan nemcsak egy lakás, hanem egy lehetőség arra, hogy egy olyan különleges, természetközeli otthonra leljen, amely minden igényét kielégíti.
Ha kérdései vannak az ingatlannal vagy a vásárlási folyamattal kapcsolatban, keressen bizalommal!
Az adatok tájékoztató jellegűek.
BEFEKTETŐK FIGYELEM! AZ INGATLAN BRUTTÓ HIRDETÉSI ÁRA 27% ÁFÁT TARTALMAZ, AMELY CÉGES VÁSÁRLÁS ESETÉN VISSZAIGÉNYELHETŐ.
A exkluzív 8 lakásból álló, prémium minőségben megépülő ingatlan a legújabb építési technológiáknak köszönhetően nemcsak esztétikai élményt nyújt, hanem a fenntarthatóság és energiahatékonyság szempontjából is kiemelkedő.
A 43 nm lakásban2 szoba található, amelyek ideálisak családi életre vagy akár befektetési céllal történő hasznosításra. A 7,42 négyzetméteres teraszról gyönyörű panoráma nyílik a környező tájra, amely tökéletes helyszínt biztosít a pihenéshez, feltöltődéshez.
AZ INGATLAN FŐBB JELLEMZŐI:
- egész évben kiváló megközelítés
- kiváló lokáció ( Hévíz, Keszthely, Balaton Airport, Zala Sprigs Golf Resort Zalacsány a közelben)
- természetközeli fekvés (belterület)
- balatoni örök panoráma és csodás kilátás a Zalai-dombságra illetve a Keszthelyi-hegységre
- 8 lakásból álló, 4 szintes, új építésű tégla épület tetőkerttel, lifttel, fedett parkolóval
- tájképi társasházi kert, tervezett medencével 5.563 nm nagyságú
- várható átadás 2026 december
- egyedi építészeti koncepció, kiválóan élhető, funkcionális üzleti célú lakásokkal
- a földszinten közös wellness részleg kerül kialakításra finn szaunával és jakuzzival és tároló áll rendelkezésre
- itt kap helyet a fedett gépkocsibeálló is
- első emelet
- 43 nm hasznos alapterület és egy D-i tájolású panorámás terasz ( 7,42 nm)
KIVÁLÓ BELSŐ ELOSZTÁS, TÁGAS TEREKKEL, PANORÁMÁS KILÁTÁSSAL:
- közlekedő
- hálószoba
- nappali/étkező ( 15,73 nm)
- konyha
- fürdőszoba/WC
- terasz ( 7,42 nm)
- a földszinten a lakáshoz tartozik egy fedett gépkocsibeálló, amely a vételár részét képezi
MŰSZAKI LEÍRÁS:
- alumínium nyílászárók háromrétegű üveggel
- a leendő tulajdonosok jelenlegi építési fázisban maguk választhatják ki a hideg/meleg burkolatokat bruttó 10.000 Ft/nm árig
- külön mérőórák
- a beépítésre kerülő anyagok nagy múltú gyártók termékeiből készülnek, ez garantálja a magas minőséget
- fűtés norvég NOBU elektromos fűtőpanellel, a fürdőszobában és a nappaliban elektromos padlófűtéssel
- a meleg vizet Ariston villanybojler biztosítja
- klíma, riasztó és napelem előkészítés (!)
- kedvező H tarifa kiépítése
- LEGRAND típusú elektromos szerelvények
- monolit vasbeton födém
- PTH 30 NF, BAUMIT habarcsba rakva, PTH 10 válaszfaltégla
- 30-as SILKA hanggátló tégla a lakások között
- BAUMIT gépi vakolat a belső felületeken, DULUX fehér festés RIGIPS simítás után
- a külső homlokzaton grafit hőszigetelés
Nemesbük egy 700 lakosú rendezett település a világhírű Hévízi-tó szomszédságában. Nemcsak csendes és festői környezetet kínál, hanem a közlekedési lehetőségek terén is kedvező adottságokkal bír. A település jól megközelíthető autóval, hiszen az M7-es autópálya és a a 76-os főút közelsége lehetővé teszi a gyors eljutást Zalaegerszegre, Keszthelyre, Hévízre, Budapest kb . 2 órás autóútra található. A lakás ideális választás lehet mindazok számára, akik a városi élet előnyeit és a természet közelségét is szeretnék élvezni. A környék gazdag kulturális és szabadidős lehetőségekben, hiszen a közeli termálfürdők (Hévíz termál tó, Zalakaros, Kehidakustány) és a természetvédelmi területek számos kikapcsolódási lehetőséget kínálnak. A helyi közösség barátságos és összetartó, így Ön is könnyen beilleszkedhet a környék életébe.
Ez az ingatlan nemcsak egy lakás, hanem egy lehetőség arra, hogy egy olyan különleges, természetközeli otthonra leljen, amely minden igényét kielégíti.
Ha kérdései vannak az ingatlannal vagy a vásárlási folyamattal kapcsolatban, keressen bizalommal!
Az adatok tájékoztató jellegűek.
Registration Number
U0047722
Property Details
Sales
for sale
Legal Status
new
Character
apartment
Construction Method
brick
Net Size
43 m²
Gross Size
50 m²
Size of Terrace / Balcony
7.4 m²
Ceiling Height
265 cm
Orientation
South-West
View
river or lake view
Staircase Type
enclosed staircase
Condition
Excellent
Condition of Facade
Excellent
Condition of Staircase
Excellent
Neighborhood
quiet, good transport, green
Year of Construction
2026
Number of Bathrooms
1
Position
garden-facing
Condominium Garden
yes
Garage
Included in the price
Number of Covered Parking Spots
1
Water
Available
Gas
On the street
Electricity
Available
Sewer
Available
Elevator
available
Storage
Shared
Distance to Waterfront
more than 500 meters
Rooms
corridor
4.57 m²
bathroom-toilet
4.52 m²
kitchen
5.19 m²
bedroom
12.93 m²
open-plan living and dining room
15.73 m²
terrace
7.42 m²
parking space
1 m²
Edve János
Credit Expert