285,250,000 Ft
760,000 €
- 163m²
- 4 Rooms
Luxus ház Zánkán eladó!
Zánkán a vízparton mesés ingatlan leköthető!
A vízparttól 50 méterre épülő, kiemelten frekventált helyen kínáljuk megvételre ezt az örökpanorámás ingatlant.
EXTRÁK:
-gondozás mentes pázsit, prémium minőségű anyag választás.
--VOLTI elektromos autó töltő állomás(minden ingatlannak egyedileg)
-WPC burkolat antracit színben teraszon
-24 nm es alumínium antracit egyedileg gyártott elektromos pergola (több funkcióban állítható lamellák és világítás)
WELLNESS
-Kültéri a teraszra telepített egyedileg gyártott Finn szauna 4-6 személye
-Kültéri 4-6 személyes pezsgőfürdő
-Dézsafürdő
BIZTONSÁGI felszerelés
-Riasztó rendszer
-Kamera rendszer
BELTÉRI egyéb felszerelés
-Teljes gépesített konyha
-Elektromos redőnyök
Az ikerház teljesen külön két bejárattal, két házként kezelhetőnek épül, mivel építtető a belső udvart is teljesen önállóan leválasztja.
A házak a legmodernebb anyagokból, minden igényt kielégítően épülnek, akár az Ön ízlése is már tükrözheti majd, mert most még lehetőség van arra, hogy ezt Ön mint vevő befolyásolja.
A kétszintes ingatlanok nem csak nyári rezidenciának, hanem téli időszakban is használhatóak lesznek, hiszen építtető négy évszakosra tervezte.
Mindkét ingatlan 120 m2-es-re tervezett két szinten helyezkedik el, hatalmas, 86 m2-es terasszal épül, mint említettem már minőségi anyagokból, praktikus, kiváló elrendezéssel.
A kültéren szauna, pezsgőfürdő is gondoskodik az Ön és családja kényelméről, és nem utolsó sorban a panoráma amit kap, az teljesen egyedi.
A ház falazata 30-as külső és 10-es belsővel tervezett, vasbeton födémmel, szigeteléssel 15 cm, cserépfedéssel.
Fűtése és hűtése hőszivattyús megoldással tervezett. A konyha teljes gépesítettre tervezett és kiépített kamerarendszer és riasztó vigyázza majd az Ön ingatlanát.
Gépkocsijának fedett autóbeálló áll a rendelkezésre.
Kérem, gondolja meg, ha full panorámát, közvetlen vízpartot keres, mert ez egy kivételes lehetőség Önnek és családjának.
A vízparttól 50 méterre épülő, kiemelten frekventált helyen kínáljuk megvételre ezt az örökpanorámás ingatlant.
EXTRÁK:
-gondozás mentes pázsit, prémium minőségű anyag választás.
--VOLTI elektromos autó töltő állomás(minden ingatlannak egyedileg)
-WPC burkolat antracit színben teraszon
-24 nm es alumínium antracit egyedileg gyártott elektromos pergola (több funkcióban állítható lamellák és világítás)
WELLNESS
-Kültéri a teraszra telepített egyedileg gyártott Finn szauna 4-6 személye
-Kültéri 4-6 személyes pezsgőfürdő
-Dézsafürdő
BIZTONSÁGI felszerelés
-Riasztó rendszer
-Kamera rendszer
BELTÉRI egyéb felszerelés
-Teljes gépesített konyha
-Elektromos redőnyök
Az ikerház teljesen külön két bejárattal, két házként kezelhetőnek épül, mivel építtető a belső udvart is teljesen önállóan leválasztja.
A házak a legmodernebb anyagokból, minden igényt kielégítően épülnek, akár az Ön ízlése is már tükrözheti majd, mert most még lehetőség van arra, hogy ezt Ön mint vevő befolyásolja.
A kétszintes ingatlanok nem csak nyári rezidenciának, hanem téli időszakban is használhatóak lesznek, hiszen építtető négy évszakosra tervezte.
Mindkét ingatlan 120 m2-es-re tervezett két szinten helyezkedik el, hatalmas, 86 m2-es terasszal épül, mint említettem már minőségi anyagokból, praktikus, kiváló elrendezéssel.
A kültéren szauna, pezsgőfürdő is gondoskodik az Ön és családja kényelméről, és nem utolsó sorban a panoráma amit kap, az teljesen egyedi.
A ház falazata 30-as külső és 10-es belsővel tervezett, vasbeton födémmel, szigeteléssel 15 cm, cserépfedéssel.
Fűtése és hűtése hőszivattyús megoldással tervezett. A konyha teljes gépesítettre tervezett és kiépített kamerarendszer és riasztó vigyázza majd az Ön ingatlanát.
Gépkocsijának fedett autóbeálló áll a rendelkezésre.
Kérem, gondolja meg, ha full panorámát, közvetlen vízpartot keres, mert ez egy kivételes lehetőség Önnek és családjának.
Registration Number
U0045708
Property Details
Sales
for sale
Legal Status
new
Character
house
Construction Method
brick
Net Size
163 m²
Gross Size
200 m²
Plot Size
350 m²
Size of Terrace / Balcony
49 m²
Heating
heat pump
Ceiling Height
270 cm
Number of Levels Within the Property
2
Orientation
South
View
river or lake view
Condition
Excellent
Condition of Facade
Excellent
Neighborhood
quiet, good transport, green, central
Year of Construction
2024
Number of Bathrooms
2
Water
Available
Electricity
Available
Sewer
Available
Distance to Waterfront
Direct waterfront
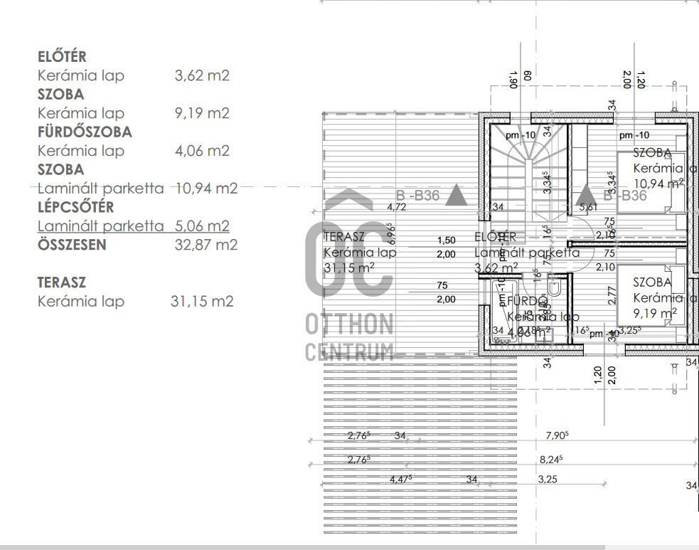
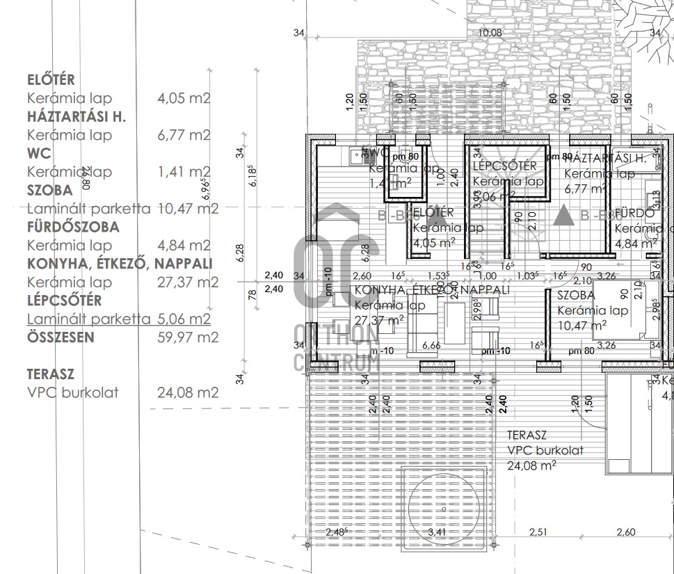
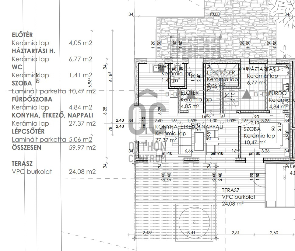
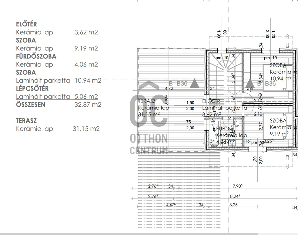
Rooms
living room
27 m²
bathroom
5 m²
room
10 m²
room
12 m²
bathroom
4 m²
room
9 m²