75,000,000 Ft
198,000 €
- 464m²
Kivételes lehetőség Rákospalota újonnan épülő lakóövezetében!!!
Kulcsrakész tervek, azonnali építkezés: Projekttelek Palotaújfalun!!!
Már régóta az jár a fejében, hogy szeretne egy zöld, élhető, kisvárosias környezetben, de mégis Budapesten élni, akkor megtalálta az ideális helyszínt!!
Kiváló lehetőség várja Rákospalota–Palotaújfalu frissen parcellázott, nívós negyedében.
Megvételre kínálok egy 464 m²-es telekrészt, amely teljes körű tervdokumentációval és jogerős építési engedéllyel rendelkezik, így a munkálatok várakozás nélkül, azonnal indíthatók.
Az ingatlan főbb jellemzői:
A telek egy modern ikerház egyik felének ad helyet. A telekmegosztás már a jóváhagyott terveknek megfelelően megtörtént, biztosítva a jog tiszta helyzetet.
Kötött külső, szabad belső: Az épület külső megjelenése és paraméterei a jogerős engedély miatt fixek, azonban a belső terek (válaszfalak, burkolatok, színek) teljesen a saját ízlésére szabhatók.
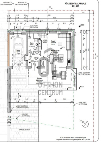
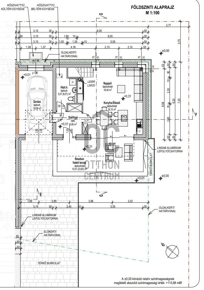
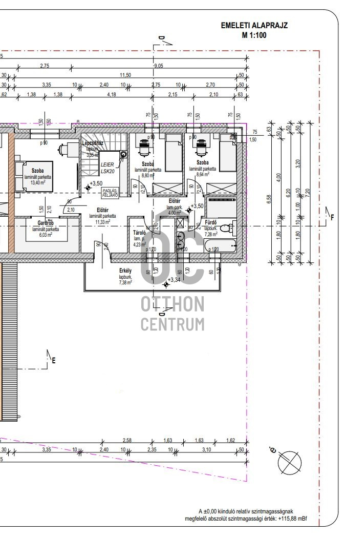
Tágas élettér: A tervezett lakóegység összesen 141,77 m², elosztása pedig ideális családok számára:
Földszint: Tágas amerikai konyhás nappali és praktikus háztartási helyiség.
Emelet: Három különálló hálószoba és egy kényelmes fürdőszoba.
Extrák: Saját, különálló garázs a vételár részét képezi.
Fontos tudnivalók a kivitelezésről: Mivel az ikerház két fele szerkezetileg összefügg, a két lakóegység építését egyidejűleg kell elkezdeni. Olyan partnert keresünk, aki készen áll a projekt mielőbbi elindítására. A tervezésnél elsődleges szempont volt a privát szféra, így a lakások elszeparáltsága és a minimális áthallás garantált.
Környezet és lokáció: A telek egy csendes, zöldövezeti, kizárólag új építésű házakkal beépült utcában található. A nyugalom mellett a közlekedés is kiváló:
Gyors bejutás a belvárosba: Az M3-as és M0-s autópályák percek alatt elérhetők. Kiváló infrastruktúra autóval és tömegközlekedéssel egyaránt.
Szeretné megtekinteni a részletes tervdokumentációt vagy a helyszínt? Szívesen segítek a további lépésekben!
Már régóta az jár a fejében, hogy szeretne egy zöld, élhető, kisvárosias környezetben, de mégis Budapesten élni, akkor megtalálta az ideális helyszínt!!
Kiváló lehetőség várja Rákospalota–Palotaújfalu frissen parcellázott, nívós negyedében.
Megvételre kínálok egy 464 m²-es telekrészt, amely teljes körű tervdokumentációval és jogerős építési engedéllyel rendelkezik, így a munkálatok várakozás nélkül, azonnal indíthatók.
Az ingatlan főbb jellemzői:
A telek egy modern ikerház egyik felének ad helyet. A telekmegosztás már a jóváhagyott terveknek megfelelően megtörtént, biztosítva a jog tiszta helyzetet.
Kötött külső, szabad belső: Az épület külső megjelenése és paraméterei a jogerős engedély miatt fixek, azonban a belső terek (válaszfalak, burkolatok, színek) teljesen a saját ízlésére szabhatók.
Tágas élettér: A tervezett lakóegység összesen 141,77 m², elosztása pedig ideális családok számára:
Földszint: Tágas amerikai konyhás nappali és praktikus háztartási helyiség.
Emelet: Három különálló hálószoba és egy kényelmes fürdőszoba.
Extrák: Saját, különálló garázs a vételár részét képezi.
Fontos tudnivalók a kivitelezésről: Mivel az ikerház két fele szerkezetileg összefügg, a két lakóegység építését egyidejűleg kell elkezdeni. Olyan partnert keresünk, aki készen áll a projekt mielőbbi elindítására. A tervezésnél elsődleges szempont volt a privát szféra, így a lakások elszeparáltsága és a minimális áthallás garantált.
Környezet és lokáció: A telek egy csendes, zöldövezeti, kizárólag új építésű házakkal beépült utcában található. A nyugalom mellett a közlekedés is kiváló:
Gyors bejutás a belvárosba: Az M3-as és M0-s autópályák percek alatt elérhetők. Kiváló infrastruktúra autóval és tömegközlekedéssel egyaránt.
Szeretné megtekinteni a részletes tervdokumentációt vagy a helyszínt? Szívesen segítek a további lépésekben!
Registration Number
T041286
Property Details
Sales
for sale
Character
plot
Type of Land
Building plot
Zone
residential zone
Plot Size
464 m²
Orientation
East
View
Green view
Neighborhood
quiet, good transport, green
Slope of Land
flat
Buildability
25%
Facade Height
750
Type of Buildable Property
Semi-detached house
Torma Zsuzsanna
Credit Expert