30,000,000 Ft
78,000 €
- 1,213m²










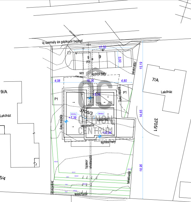
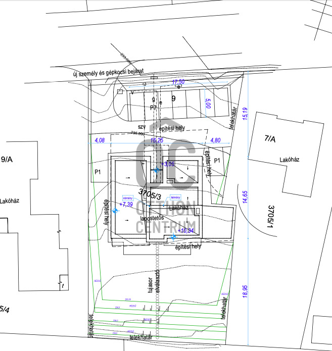
Szentgotthárd Tóthfalusi úton eladó egy 1, 213m2 nagyságú telek engedélyes (építész, statika és gépészet) tervekkel.
A tervek alapján egy 4 lakásos társasház + 1 iroda építhető rá.
A meglévő tervek előnye, hogy a beruházás azonnal indítható.
Komoly érdeklődés esetén minden további kérdésre állok rendelkezésére.
A tervek alapján egy 4 lakásos társasház + 1 iroda építhető rá.
A meglévő tervek előnye, hogy a beruházás azonnal indítható.
Komoly érdeklődés esetén minden további kérdésre állok rendelkezésére.
Registration Number
T040072
Property Details
Sales
for sale
Character
plot
Type of Land
Building plot
Zone
residential zone
Plot Size
1,213 m²
Orientation
South-East
Neighborhood
quiet, good transport
Water
Available
Gas
On the street
Electricity
Available
Sewer
Available
Buildability
25%
Facade Height
770
Type of Buildable Property
Condominium up to 4 apartments

Plébán László
Credit Expert