59,900,000 Ft
155,000 €
- 804m²




























BELTERÜLETI ÉPÍTÉSI TELEK, SZERKEZETKÉSZ HÁZZAL, TELJES TERVVEL!!! PANORÁMÁVAL!!
CSÖMÖRÖN, CSENDES UTCÁJÁBAN! Eladó egy szerkezetkész ház, teljes tervdokumentációval!
Eladásra kínálunk egy 804 nm-es, összközműves telket, melyen található egy szerkezetkész ingatlan, amely egyedi tervek alapján készült, masszív, stabil alapra, ami egy igazán különleges otthon alapjait képezi.
Az ingatlan egy nyugodt, csendes utcában helyezkedik el. Ideális választás mindazok számára, akik szeretnék saját elképzeléseik szerint befejezni új otthonukat.
Ingatlan paraméterek:
Telek mérete: 804 m²
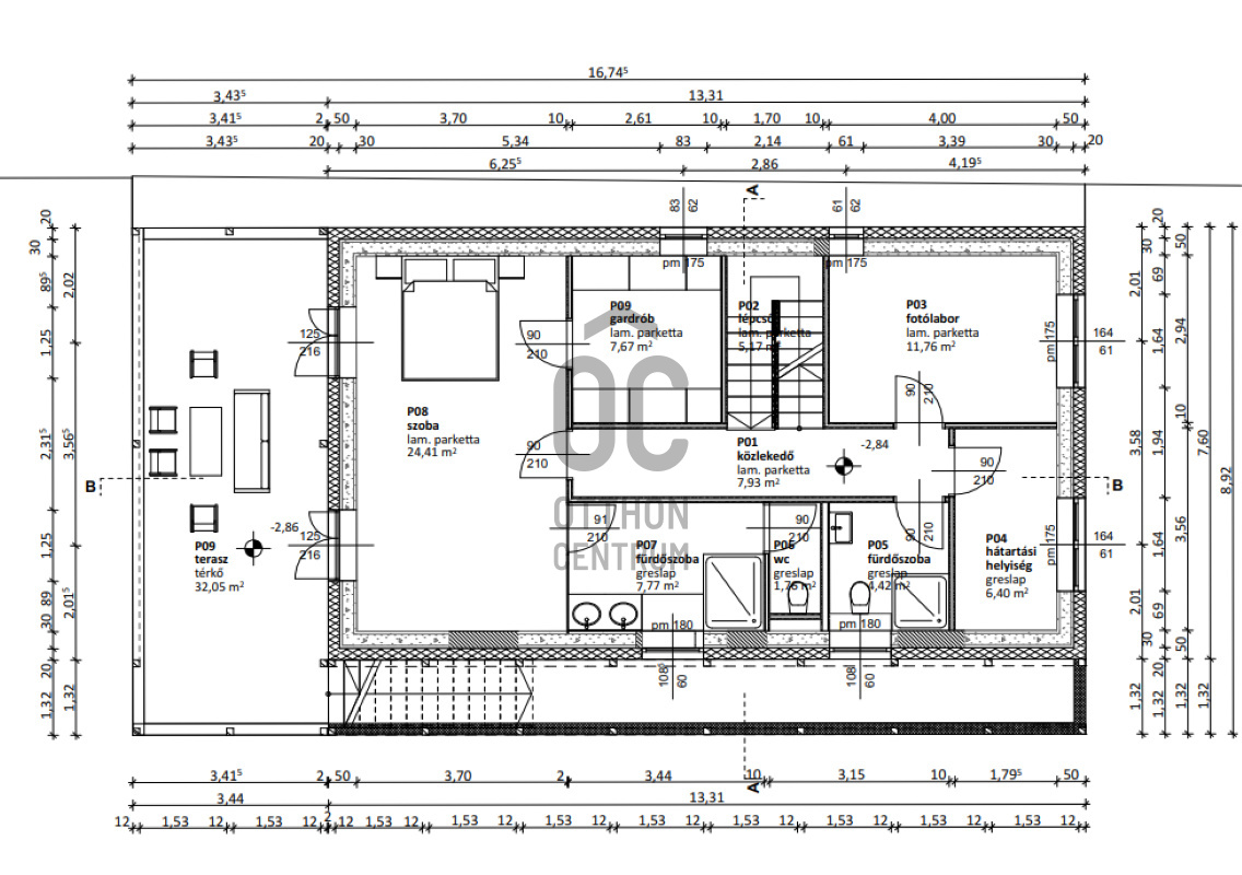
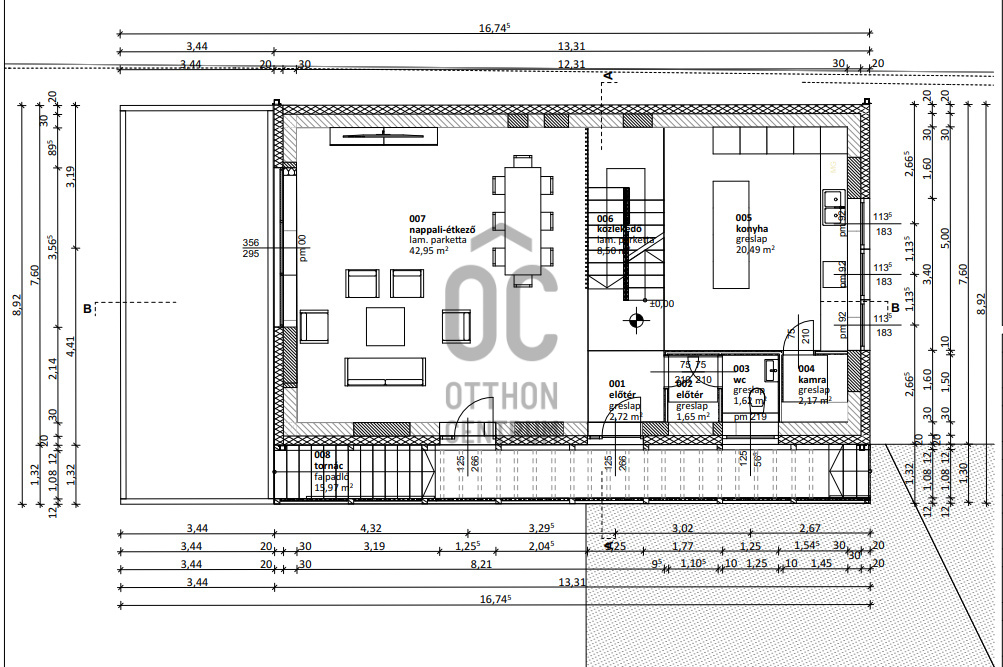
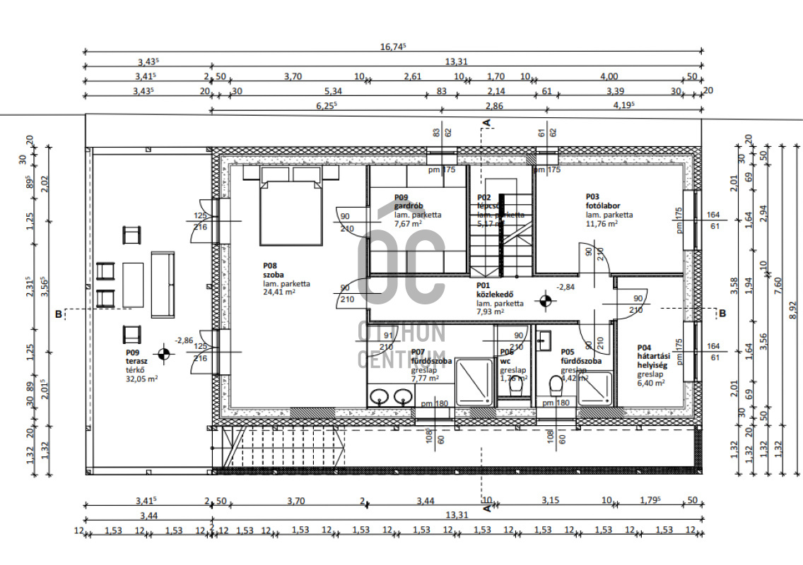
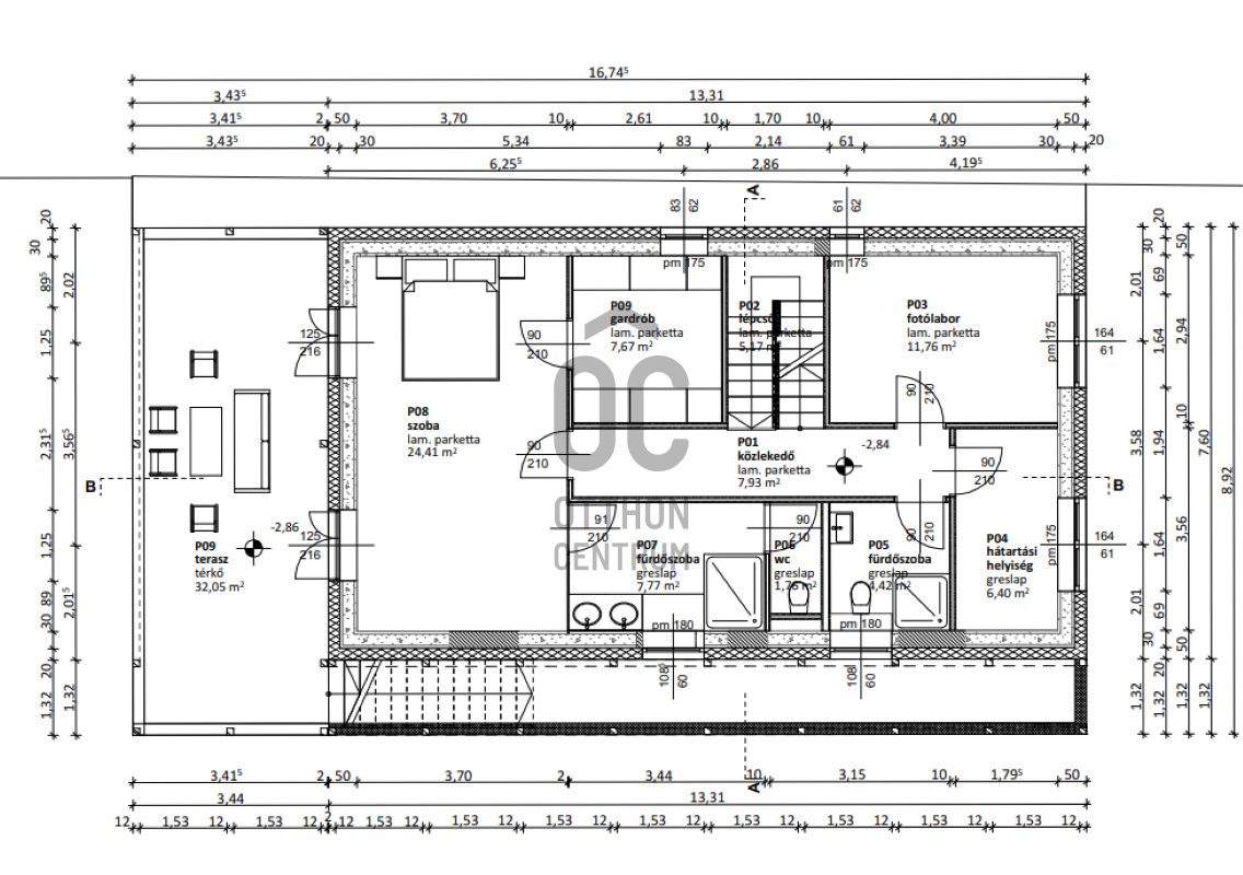
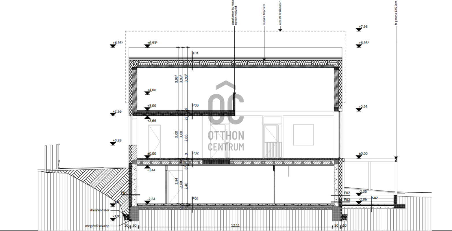
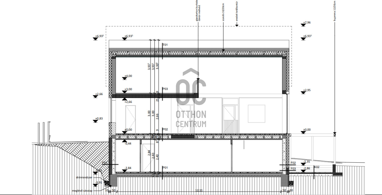
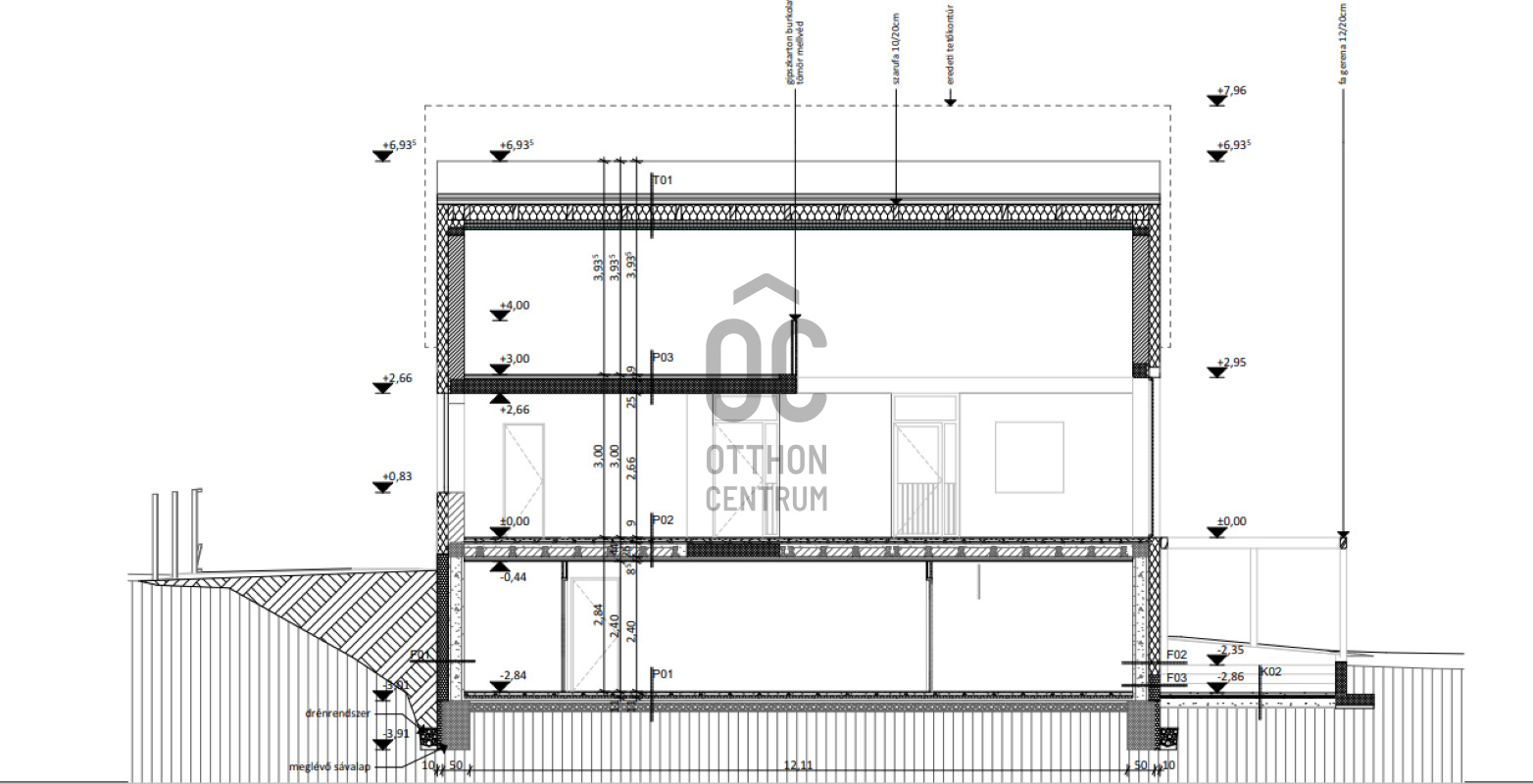
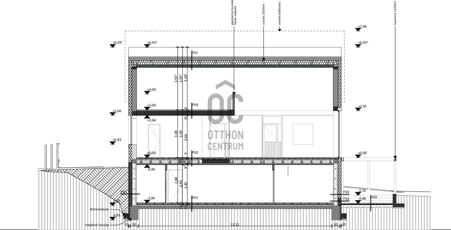
A házhoz teljeskörűen megtervezett építési és engedélyezési tervek állnak rendelkezésre, amik a településképi véleményezés által is el lettek fogadva, így az új tulajdonosnak már csak a kiviteli terveket kell megcsináltatnia.
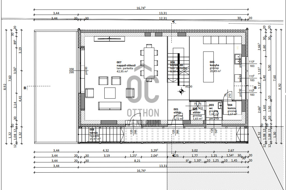
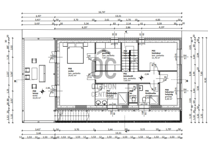
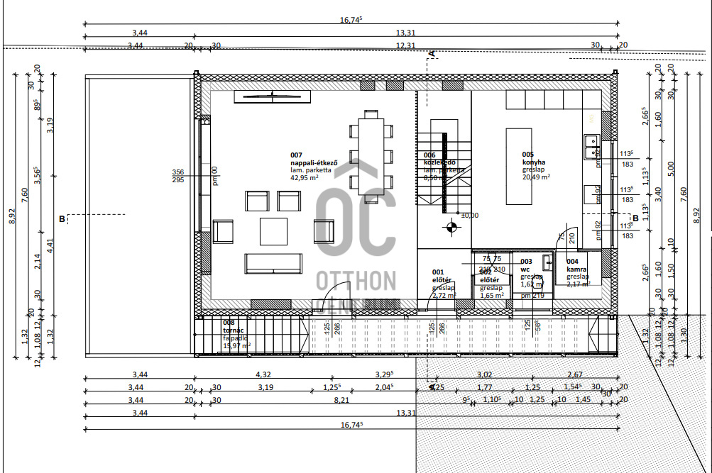
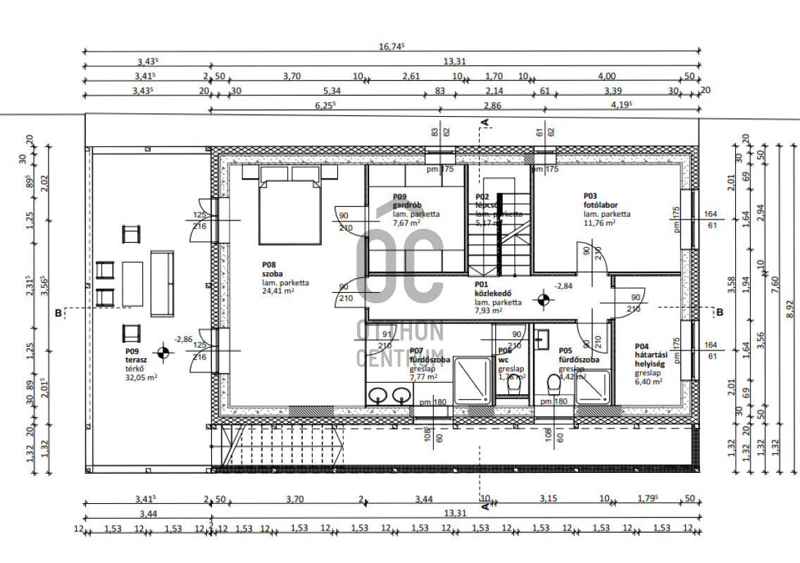
Tervezett ingatlan paraméterei: 3 x 77 nm, egy nyitott galériával, ahol ki lehet alakítani akár szobákat is. A fűtés hőszivattyúval van megtervezve.
Kivitelezési lehetőségek: Az épület modern, egyedi tervek szerint készült, amik az optimális térkihasználást és funkcionalitást célozzák meg, mégis maximálisan lehetőséget biztosítanak a személyre szabott kivitelezésre.
Kiemelt előnyök:
Csendes környék, a telek egy nyugodt, forgalommentes utcában található, ahol a mindennapi élethez szükséges kényelmet és nyugalmat biztosítja a környezet.
Közel a városhoz, a buszvégállomáshoz, boltokhoz, óvodához, mégis a természet közelében: Az ingatlan elhelyezkedése ideális azoknak, akik a város közelségét szeretnék élvezni, de értékelik a zöld környezetet és a nyugodt lakóhelyet.
Ez a kivételes ingatlan lehetőséget biztosít arra, hogy a leendő tulajdonos egy saját igényeire szabott, prémium minőségű otthont valósítson meg.
Az ingatlan felépítését is tudjuk vállalni, kulcsrakész állapotban az ára: 169 Mft.
Ne hagyja ki ezt a ritka lehetőséget és lépjen kapcsolatba velünk további információkért!
Eladásra kínálunk egy 804 nm-es, összközműves telket, melyen található egy szerkezetkész ingatlan, amely egyedi tervek alapján készült, masszív, stabil alapra, ami egy igazán különleges otthon alapjait képezi.
Az ingatlan egy nyugodt, csendes utcában helyezkedik el. Ideális választás mindazok számára, akik szeretnék saját elképzeléseik szerint befejezni új otthonukat.
Ingatlan paraméterek:
Telek mérete: 804 m²
A házhoz teljeskörűen megtervezett építési és engedélyezési tervek állnak rendelkezésre, amik a településképi véleményezés által is el lettek fogadva, így az új tulajdonosnak már csak a kiviteli terveket kell megcsináltatnia.
Tervezett ingatlan paraméterei: 3 x 77 nm, egy nyitott galériával, ahol ki lehet alakítani akár szobákat is. A fűtés hőszivattyúval van megtervezve.
Kivitelezési lehetőségek: Az épület modern, egyedi tervek szerint készült, amik az optimális térkihasználást és funkcionalitást célozzák meg, mégis maximálisan lehetőséget biztosítanak a személyre szabott kivitelezésre.
Kiemelt előnyök:
Csendes környék, a telek egy nyugodt, forgalommentes utcában található, ahol a mindennapi élethez szükséges kényelmet és nyugalmat biztosítja a környezet.
Közel a városhoz, a buszvégállomáshoz, boltokhoz, óvodához, mégis a természet közelében: Az ingatlan elhelyezkedése ideális azoknak, akik a város közelségét szeretnék élvezni, de értékelik a zöld környezetet és a nyugodt lakóhelyet.
Ez a kivételes ingatlan lehetőséget biztosít arra, hogy a leendő tulajdonos egy saját igényeire szabott, prémium minőségű otthont valósítson meg.
Az ingatlan felépítését is tudjuk vállalni, kulcsrakész állapotban az ára: 169 Mft.
Ne hagyja ki ezt a ritka lehetőséget és lépjen kapcsolatba velünk további információkért!
Registration Number
T039676
Property Details
Sales
for sale
Character
plot
Type of Land
Building plot
Zone
residential zone
Plot Size
804 m²
Orientation
South-West
View
Green view
Neighborhood
quiet, good transport, green
Water
Available
Electricity
Available
Sewer
On the street
Distance to Waterfront
more than 500 meters
Slope of Land
flat
Buildability
24%
Type of Buildable Property
Family house

Pomaházi Pál
Credit Expert