580,000,000 Ft
1,532,000 €
- 168m²
- 5 Rooms
- 1st floor
XII. ORBÁNHEGY, CSENDES, ÚJÉPÍTÉSŰ 3, 4, és 5 SZOBÁS PRÉMIUMKATEGÓRIÁS LAKÁSOK, LAKÁSON BELÜL SAJÁT LIFTTEL
XII. ORBÁNHEGY, CSENDES, ÚJÉPÍTÉSŰ 5 SZOBÁS, 53 m2 TERASSZAL
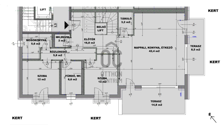
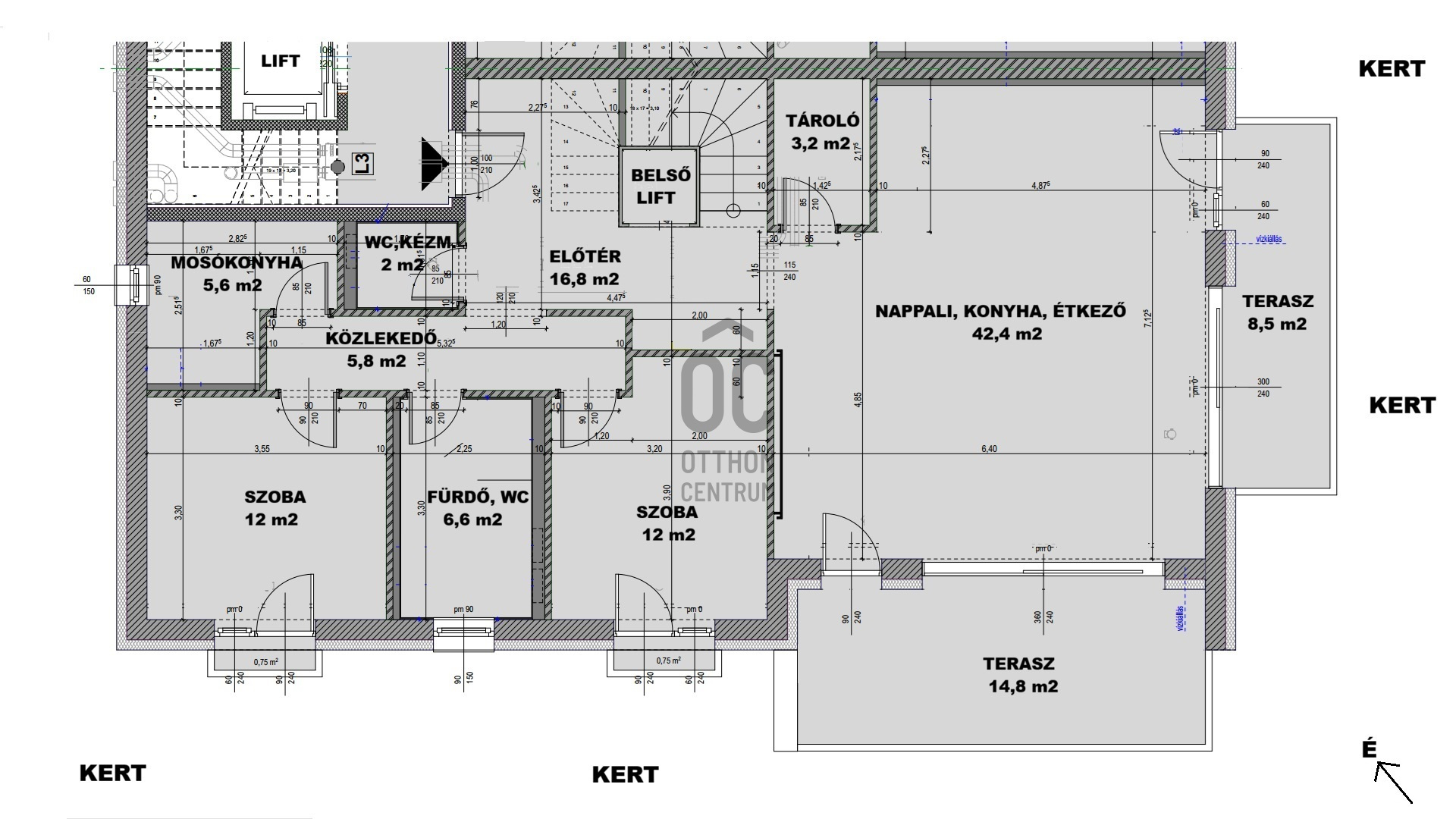
XII. Kerület ORBÁNHEGY körzetében, CSENDES (átmenőforgalomtól mentes), ZÖLDÖVEZETI ŐSFÁS MELLÉKUTCÁBAN, SÍK, téglalap alakú, 1127 m2-es TELKEN épülő, 4 LAKÁSOS, LIFTES TÁRSASHÁZBAN kínálunk eladásra, egy FÖLDSZINTI, DNY-i tájolású, KERTRE NÉZŐ, 168 m2-es (53 m2 terasz 1/3 méretének a beszámítása mellett. A terasz, és a lakáson belüli falak alatti területek nélküli méret 150 m2) 5 SZOBÁS, 2 FÜRDŐSZOBÁS, BELSŐ KÉT SZINTES, LAKÁSON BELÜL SAJÁT LIFTTEL, 2 db TEREMGARÁZS HELLYEL (+17 Mft/db), és egy db 14 m2 tárolóval (+18 Mft) rendelkező, PRÉMIUMKATEGÓRIÁS újépítésű lakást.
Az ingatlan autóval és tömegközlekedéssel is jól megközelíthető: buszmegálló 5 perc sétatávolságra, ill. a MOM PARK és a HEGYVIDÉK BEVÁSÁRLÓKÖZPONT is PERCEK ALATT ELÉRHETŐ.
Elérhető lakások
•L1 lakás: 105,63 m² + 12 m² terasz – 378 MFt
•L2 lakás: 113 m² + 12 m² terasz – 398 MFt
•L3 lakás: 150 m² + 53 m² terasz/erkély – 580 MFt
•L4 lakás: 150 m² + 46 m² terasz/erkély – 570 MFt
MŰSZAKI TARTALOM – PRÉMIUM SZINTŰ MEGOLDÁSOK
Az épület a 2022. évi AA+ energetikai követelményeknek megfelelően, a legmodernebb gépészeti technológiákkal és KNX intelligens épületautomatika rendszerrel kerül kivitelezésre.
Lakásonként egyedi gépészet:
•Mennyezeti hűtés–fűtés és padlófűtés, harmatpont-érzékelővel
•Panasonic víz–levegő hőszivattyús rendszer a fűtés és a használati melegvíz biztosítására
•KNX intelligens otthon rendszer, melynek segítségével akár mobiltelefonról, távolról is vezérelhető a fűtés, hűtés, világítás stb.
•Zehnder hővisszanyerős szellőztetőrendszer, folyamatos friss, szűrt levegővel
További műszaki és kényelmi elemek:
•Háromrétegű hőszigetelt üvegezésű fa nyílászárók
•Távirányítással működtethető alumínium redőnyrendszer
•Falsíkban záródó belső ajtók
•Minőségi hideg- és melegburkolatok
•Villeroy & Boch szaniterek és fürdőszobabútorok
•Hansgrohe csaptelepek
•Hüppe zuhanykabinok
•Okosotthon-kompatibilis kapcsolók és konnektorok
•Fűtött lehajtó a mélygarázsba
•Automata garázs- és kertkapu
•Riasztórendszer-, TV- és internet-előkészítés
•Videó kaputelefon
•Épített kert automata öntözőrendszerrel
•Kerti világítás
•Az épületben a teremgarázs szintről induló felvonó kerül beépítésre
BELSŐÉPÍTÉSZET ÉS EGYEDI IGÉNYEK:
A lakások a Geppetto Belsőépítész Iroda által készített részletes belsőépítészeti kiviteli tervek alapján valósulnak meg.
A kivitelezés során – a műszaki lehetőségek figyelembevételével – lehetőség van a lakások vevői igény szerinti egyedi módosítására.
A lakások átadásának időpontja: 2027. II. félév
FIZETÉSI ÜTEMEZÉS:
•Szerződéskötéskor: 10% foglaló + 10% vételárelőleg
•A fennmaradó vételár megfizetése a készültségi szintnek megfelelően, további 6 részletben történik
TISZTELT ÉRDEKLŐDŐ!
TÖBB MINT 20 ÉVE FOGLALKOZOM INGATLANOK ÉRTÉKESÍTÉSÉVEL MAGYARORSZÁG PIACVEZETŐ INGATLANKÖZVETÍTŐ HÁLÓZATÁNÁL, AZ OTTHON CENTRUMNÁL. AMENNYIBEN SZÁNDÉKÁBAN ÁLL INGATLANT ELADNI - A LEGRÖVIDEBB IDŐN BELÜL, GARANTÁLT JOGI, ÉS BANKI HÁTTÉRREL - KERESSEN BIZALOMMAL, HOGY EGY HELYSZÍNI FELMÉRÉST KÖVETŐ INGYENES ÉRTÉKMEGÁLLAPÍTÁS UTÁN, EGYÜTT TUDJUNK MŰKÖDNI AZ ÖN INGATLANÁNAK AZ ELADÁSÁBAN IS!
XII. Kerület ORBÁNHEGY körzetében, CSENDES (átmenőforgalomtól mentes), ZÖLDÖVEZETI ŐSFÁS MELLÉKUTCÁBAN, SÍK, téglalap alakú, 1127 m2-es TELKEN épülő, 4 LAKÁSOS, LIFTES TÁRSASHÁZBAN kínálunk eladásra, egy FÖLDSZINTI, DNY-i tájolású, KERTRE NÉZŐ, 168 m2-es (53 m2 terasz 1/3 méretének a beszámítása mellett. A terasz, és a lakáson belüli falak alatti területek nélküli méret 150 m2) 5 SZOBÁS, 2 FÜRDŐSZOBÁS, BELSŐ KÉT SZINTES, LAKÁSON BELÜL SAJÁT LIFTTEL, 2 db TEREMGARÁZS HELLYEL (+17 Mft/db), és egy db 14 m2 tárolóval (+18 Mft) rendelkező, PRÉMIUMKATEGÓRIÁS újépítésű lakást.
Az ingatlan autóval és tömegközlekedéssel is jól megközelíthető: buszmegálló 5 perc sétatávolságra, ill. a MOM PARK és a HEGYVIDÉK BEVÁSÁRLÓKÖZPONT is PERCEK ALATT ELÉRHETŐ.
Elérhető lakások
•L1 lakás: 105,63 m² + 12 m² terasz – 378 MFt
•L2 lakás: 113 m² + 12 m² terasz – 398 MFt
•L3 lakás: 150 m² + 53 m² terasz/erkély – 580 MFt
•L4 lakás: 150 m² + 46 m² terasz/erkély – 570 MFt
MŰSZAKI TARTALOM – PRÉMIUM SZINTŰ MEGOLDÁSOK
Az épület a 2022. évi AA+ energetikai követelményeknek megfelelően, a legmodernebb gépészeti technológiákkal és KNX intelligens épületautomatika rendszerrel kerül kivitelezésre.
Lakásonként egyedi gépészet:
•Mennyezeti hűtés–fűtés és padlófűtés, harmatpont-érzékelővel
•Panasonic víz–levegő hőszivattyús rendszer a fűtés és a használati melegvíz biztosítására
•KNX intelligens otthon rendszer, melynek segítségével akár mobiltelefonról, távolról is vezérelhető a fűtés, hűtés, világítás stb.
•Zehnder hővisszanyerős szellőztetőrendszer, folyamatos friss, szűrt levegővel
További műszaki és kényelmi elemek:
•Háromrétegű hőszigetelt üvegezésű fa nyílászárók
•Távirányítással működtethető alumínium redőnyrendszer
•Falsíkban záródó belső ajtók
•Minőségi hideg- és melegburkolatok
•Villeroy & Boch szaniterek és fürdőszobabútorok
•Hansgrohe csaptelepek
•Hüppe zuhanykabinok
•Okosotthon-kompatibilis kapcsolók és konnektorok
•Fűtött lehajtó a mélygarázsba
•Automata garázs- és kertkapu
•Riasztórendszer-, TV- és internet-előkészítés
•Videó kaputelefon
•Épített kert automata öntözőrendszerrel
•Kerti világítás
•Az épületben a teremgarázs szintről induló felvonó kerül beépítésre
BELSŐÉPÍTÉSZET ÉS EGYEDI IGÉNYEK:
A lakások a Geppetto Belsőépítész Iroda által készített részletes belsőépítészeti kiviteli tervek alapján valósulnak meg.
A kivitelezés során – a műszaki lehetőségek figyelembevételével – lehetőség van a lakások vevői igény szerinti egyedi módosítására.
A lakások átadásának időpontja: 2027. II. félév
FIZETÉSI ÜTEMEZÉS:
•Szerződéskötéskor: 10% foglaló + 10% vételárelőleg
•A fennmaradó vételár megfizetése a készültségi szintnek megfelelően, további 6 részletben történik
TISZTELT ÉRDEKLŐDŐ!
TÖBB MINT 20 ÉVE FOGLALKOZOM INGATLANOK ÉRTÉKESÍTÉSÉVEL MAGYARORSZÁG PIACVEZETŐ INGATLANKÖZVETÍTŐ HÁLÓZATÁNÁL, AZ OTTHON CENTRUMNÁL. AMENNYIBEN SZÁNDÉKÁBAN ÁLL INGATLANT ELADNI - A LEGRÖVIDEBB IDŐN BELÜL, GARANTÁLT JOGI, ÉS BANKI HÁTTÉRREL - KERESSEN BIZALOMMAL, HOGY EGY HELYSZÍNI FELMÉRÉST KÖVETŐ INGYENES ÉRTÉKMEGÁLLAPÍTÁS UTÁN, EGYÜTT TUDJUNK MŰKÖDNI AZ ÖN INGATLANÁNAK AZ ELADÁSÁBAN IS!
Registration Number
P4796-1-01-01-003
Property Details
Sales
for sale
Legal Status
new
Character
apartment
Construction Method
brick
Net Size
168 m²
Gross Size
203 m²
Size of Terrace / Balcony
53 m²
Garden Size
800 m²
Heating
renewable
Ceiling Height
270 cm
Orientation
South-West
Staircase Type
enclosed staircase
Condition
Excellent
Condition of Facade
Excellent
Condition of Staircase
Excellent
Neighborhood
quiet, good transport, green, central
Year of Construction
2026
Number of Bathrooms
2
Position
garden-facing
Condominium Garden
yes
Garage
Separately purchasable
Water
Available
Electricity
Available
Sewer
Available
Elevator
available
Storage
Independent
Rooms
open-plan kitchen and living room
42.4 m²
room
12 m²
room
12 m²
bathroom-toilet
6.6 m²
laundry room
5.6 m²
storage
3.2 m²
toilet-washbasin
2 m²
terrace
23.3 m²
room
13.4 m²
room
11.9 m²
bathroom-toilet
7.6 m²
terrace
30 m²
Ruczek János
Credit Expert