For sale new construction apartment, P4756-A-01-FZ-001
Budapest III. kerület, Táborhegy, Ér utca

339,000,000 Ft

888,000 €

  • 124m²
  • 5 Rooms
  • ground floor
Exclusive Contract

Registration Number

P4756-A-01-FZ-001

Property Details

Sales
for sale
Legal Status
new
Character
apartment
Construction Method
brick
Net Size
124 m²
Gross Size
124 m²
Size of Terrace / Balcony
39 m²
Garden Size
220 m²
Heating
heat pump
Ceiling Height
270 cm
Number of Levels Within the Property
1
Orientation
East
View
city view
Staircase Type
enclosed staircase
Condition
Excellent
Condition of Facade
Excellent
Condition of Staircase
Excellent
Neighborhood
quiet, green
Year of Construction
2025
Number of Bathrooms
2
Position
street-facing
Condominium Garden
yes
Garage
Mandatory to buy
Water
Available
Gas
On the street
Electricity
Available
Sewer
Available
Connected to Garden
yes
Storage
Mandatory to buy

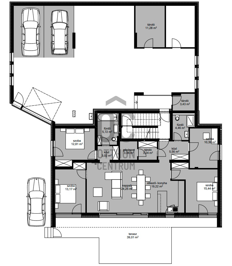
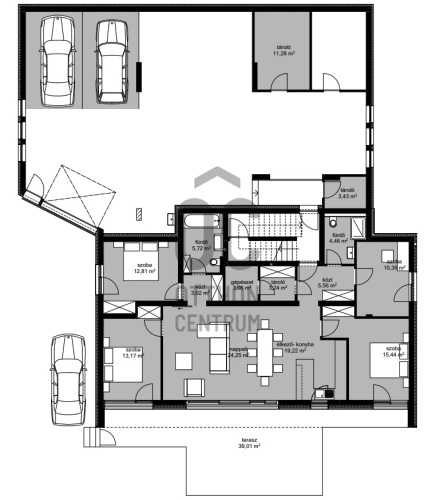
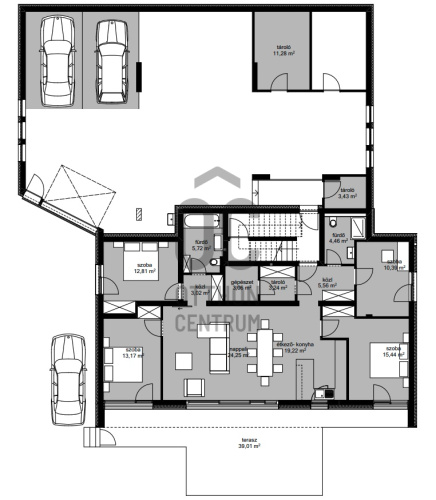
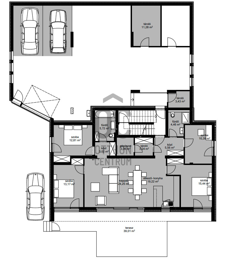
Rooms

corridor
5.56 m²
bathroom-toilet
4.46 m²
bedroom
10.39 m²
storage
3.24 m²
utility room
3.06 m²
living room
24.25 m²
open-plan kitchen and dining room
19.22 m²
bedroom
15.44 m²
bedroom
13.17 m²
corridor
3.02 m²
bathroom-toilet
5.72 m²
bedroom
12.81 m²
terrace
39.01 m²
Ruczek János
Ruczek János

Credit Expert

From Our Office Listings - II. kerület - TDG

for sale new construction apartment

Index image
11

for sale new construction apartment

Index image
24

for sale apartment

Index image
18

for sale semi-detached house

Index image
35

for sale apartment

Index image
20

for sale apartment

Index image
data_sheet.details.realestate.section.main.otthonstart_flag.label
13

for sale apartment

Index image
12

for sale apartment

Index image
17

for sale apartment

Index image
data_sheet.details.realestate.section.main.otthonstart_flag.label
13

for sale apartment

Index image
12

for sale apartment

Index image
28

for sale apartment

Index image
13