295,000,000 Ft
825,000 €
- 85m²
- 3 Rooms
- 1st floor
Modern, napfényes I. emeleti lakás – nagy méretű terasszal a II. kerület zöldövezetében!
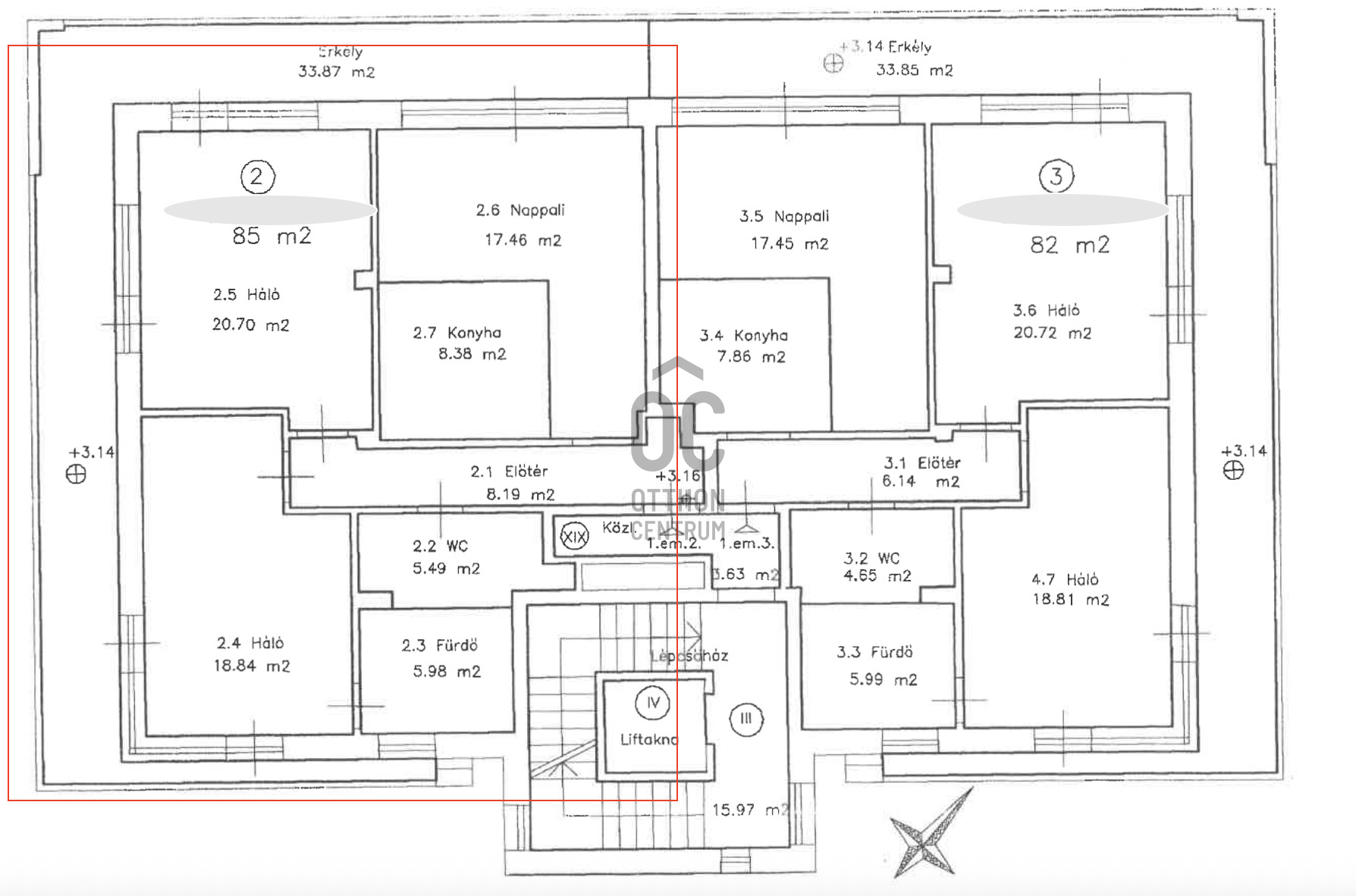
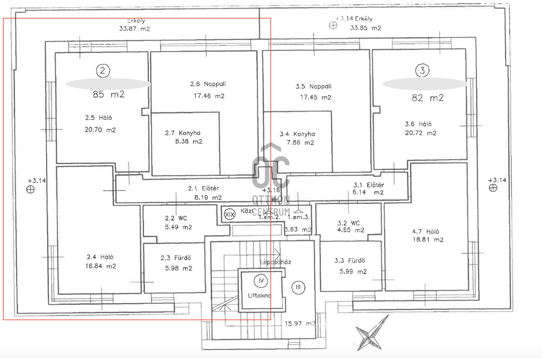
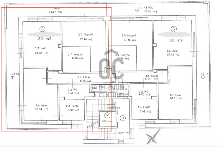
Eladásra kínálunk egy kiváló elrendezésű, 85 m² nettó alapterületű, első emeleti lakást a II. kerület csendes, zöldövezeti részén!
Az újépítésű, prémium társasház magas műszaki minőséget és kényelmet biztosít, élhető terekkel és kiváló infrastruktúrával.
A lakást egy tágas 33.87 m²-es terasz egészíti ki, amely tökéletes helyszíne lehet családi étkezéseknek, napozásnak vagy esti kikapcsolódásnak.
Főbb jellemzők
Szobák száma: 3
Fürdőszobák: 1
Külön WC: 1
Nettó alapterület: 85 m²
Bruttó alapterület: 102 m²
Terasz: 33.87 m² – közvetlen kapcsolattal a nappaliból
Elhelyezkedés: 1. emelet
Elrendezés: modern, logikus térkialakítás
Fűtés: hőszivattyús, padlófűtés
Energiahatékonyság: magas (BB+)
Műszaki jellemzők
Hőszivattyús hűtő-fűtő rendszer és padlófűtés
Loxone okosotthon rendszer
Prémium minőségű burkolatok, szaniterek
Elektromos autótöltési lehetőség
Parkosított kert automata öntözőrendszerrel
Kaputelefon rendszer
Lift és akadálymentes közlekedés
Zöldtető és korszerű hőszigetelés
A lakáshoz opcionálisan megvásárolható tágas parkolóhely (15 M Ft/db), valamint egy 12 m²-es, dupla mosogatós tárolóhelyiség (10 M Ft), mely praktikus bővítése lehet az ingatlan kényelmének.
Parkolás
A pinceszinten elhelyezett, kényelmes méretű gépkocsibeállók biztosítják a lakók parkolását.
A parkolókból közvetlenül megközelíthető a lift és a lépcsőház, így teljes kényelemben juthatunk fel a lakásokhoz.
Környezet
A környék nyugodt, csendes, zöldövezeti, ugyanakkor kiváló közlekedéssel és infrastruktúrával rendelkezik.
A közelben számos bevásárlási lehetőség, iskola és nemzetközi intézmény található (pl. British International School of Budapest), valamint a Rózsadomb Center, Mammut Bevásárlóközpont, és több természetközeli sétaútvonal is elérhető pár perc alatt.
További részletekért hívjon mielőbb!
Egyedi igényekre szabott lakáshitelekkel állunk rendelkezésére. Bankfüggetlen Hitel Centrumunk az országban elérhető összes bank és hitelintézet ajánlatát versenyezteti az Ön számára díjmentesen.
Munkatársaink nagy szakmai tapasztalattal várják Önt az előre egyeztetett időpontban akár a normál munkaidő után is.
Az újépítésű, prémium társasház magas műszaki minőséget és kényelmet biztosít, élhető terekkel és kiváló infrastruktúrával.
A lakást egy tágas 33.87 m²-es terasz egészíti ki, amely tökéletes helyszíne lehet családi étkezéseknek, napozásnak vagy esti kikapcsolódásnak.
Főbb jellemzők
Szobák száma: 3
Fürdőszobák: 1
Külön WC: 1
Nettó alapterület: 85 m²
Bruttó alapterület: 102 m²
Terasz: 33.87 m² – közvetlen kapcsolattal a nappaliból
Elhelyezkedés: 1. emelet
Elrendezés: modern, logikus térkialakítás
Fűtés: hőszivattyús, padlófűtés
Energiahatékonyság: magas (BB+)
Műszaki jellemzők
Hőszivattyús hűtő-fűtő rendszer és padlófűtés
Loxone okosotthon rendszer
Prémium minőségű burkolatok, szaniterek
Elektromos autótöltési lehetőség
Parkosított kert automata öntözőrendszerrel
Kaputelefon rendszer
Lift és akadálymentes közlekedés
Zöldtető és korszerű hőszigetelés
A lakáshoz opcionálisan megvásárolható tágas parkolóhely (15 M Ft/db), valamint egy 12 m²-es, dupla mosogatós tárolóhelyiség (10 M Ft), mely praktikus bővítése lehet az ingatlan kényelmének.
Parkolás
A pinceszinten elhelyezett, kényelmes méretű gépkocsibeállók biztosítják a lakók parkolását.
A parkolókból közvetlenül megközelíthető a lift és a lépcsőház, így teljes kényelemben juthatunk fel a lakásokhoz.
Környezet
A környék nyugodt, csendes, zöldövezeti, ugyanakkor kiváló közlekedéssel és infrastruktúrával rendelkezik.
A közelben számos bevásárlási lehetőség, iskola és nemzetközi intézmény található (pl. British International School of Budapest), valamint a Rózsadomb Center, Mammut Bevásárlóközpont, és több természetközeli sétaútvonal is elérhető pár perc alatt.
További részletekért hívjon mielőbb!
Egyedi igényekre szabott lakáshitelekkel állunk rendelkezésére. Bankfüggetlen Hitel Centrumunk az országban elérhető összes bank és hitelintézet ajánlatát versenyezteti az Ön számára díjmentesen.
Munkatársaink nagy szakmai tapasztalattal várják Önt az előre egyeztetett időpontban akár a normál munkaidő után is.
Registration Number
P4752-1-01-01-002
Property Details
Sales
for sale
Legal Status
new
Character
apartment
Construction Method
brick
Net Size
85 m²
Gross Size
102 m²
Size of Terrace / Balcony
33.8 m²
Heating
heat pump
Ceiling Height
290 cm
Orientation
North-East
Staircase Type
enclosed staircase
Condition
Excellent
Condition of Facade
Excellent
Condition of Staircase
Excellent
Neighborhood
quiet, green
Year of Construction
2025
Number of Bathrooms
1
Position
garden-facing
Garage
Separately purchasable
Water
Available
Electricity
Available
Sewer
Available
Elevator
available
Storage
Independent
Rooms
living room
17.46 m²
kitchen
8.38 m²
bedroom
20.7 m²
bedroom
18.84 m²
entryway
8.19 m²
toilet
5.49 m²
bathroom
5.98 m²